欢迎来到西安装一网!| 登录免费注册 触屏版
您的位置:装一网>西安站>墨响睿思装饰>促销活动>设计的魅力——法式与中式的激情碰撞

www.zxdyw.com/shop/101041/

地址:陕西省 西安市 灞桥区 堡子村转盘往南半坡国际艺术区内中央通道B1-11

在线报价在线预约

  • 一居室
  • 二居室
  • 三居室
  • 四居室
  • 复式
  • 别墅
  • 其他

联系我们

陕西墨响睿思装饰工程有限公司

地  址:陕西省 西安市 灞桥区 堡子村转盘往南半坡国际艺术区内中央通道B1-11

电  话:0371-58610011

联系人:小墨

促销活动

设计的魅力——法式与中式的激情碰撞

设  计  师: 马畅翼

建筑面积:230平米

装修风格:法式新古典、简约新中式

设计说明: 一个户型的两种花样,法式与中式的激情碰撞,诠释设计的魅力

法式风格,指的是法兰西国家的建筑和家具风格。主要包括法式巴洛克风格(路易十四风格)洛可可风格(路易十五风格)新古典风格(路易十六)帝政风格等,是欧洲家具和建筑文化的顶峰。

其中法式新古典风格设计特点有以下四点:

1、布局上突出轴线的对称,恢宏的气势,豪华舒适的居住空间。

2、贵族风格,高贵典雅。

3、细节处理上运用了线条,制作工艺精细考究。

4、点缀在自然中,崇尚冲突之美


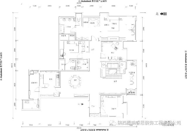
客厅•法式新古典 客厅2•法式新古典过道•法式新古典 餐厅•法式新古典

▲平面布局•法式新古典

简约新中式风格是一种继承了中国古典基本元素,又融合了现代简约的几何图案及线条的设计风格。通过对中国古典设计的理解和提炼,用现代的符号将中国古典的神韵体现出来就是新中式风格。


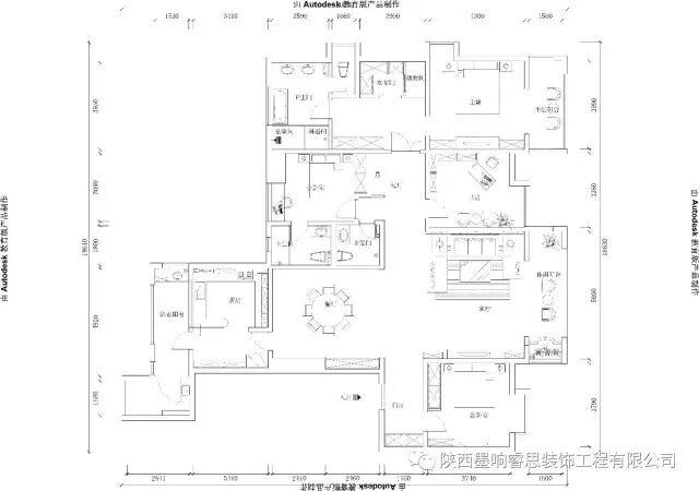
客厅•简约新中式客厅2•简约新中式过道•简约新中式餐厅•简约新中式

▲平面布局•简约新中式



手机版

小程序

公众号