欢迎来到巴中装一网!| 登录免费注册 触屏版
您的位置:装一网>巴中站>喜安至装饰>促销活动>攻略/不请设计师,一个户型能做出11套不同方案吗?

www.zxdyw.com/shop/107091/

地址:四川省 巴中市 巴州区 四川省巴中市巴州区莲花嘴A区贰号楼17楼12号

在线报价在线预约

  • 一居室
  • 二居室
  • 三居室
  • 四居室
  • 复式
  • 别墅
  • 其他

联系我们

四川喜安至装饰有限公司

地  址:四川省 巴中市 巴州区 四川省巴中市巴州区莲花嘴A区贰号楼17楼12号

电  话:0371-58610011

联系人:郑伟

促销活动

攻略/不请设计师,一个户型能做出11套不同方案吗?

内容提示:不请设计师,一个户型能做出11套不同的方案吗?结果显然是不能,所以我们坚信优秀室内设计师的专业知识和丰富的从业经验,能有效帮你解决各类装修设计难题,有必要请个优秀的设计师。咱们看图说话!

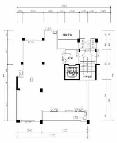
原始平面图


以建筑户型为原型,

针对不同购买人群,

设计符合某种居住结构的平面方案

不同的平面要能体现不同的生活场景...

方案一    开放



常说解放天性,

这里可能就是解放束缚的空间界限。
几个关键点:
卫生间与厨房互通,

厨房与餐厅互通,

卧室与卫生间互通。

这是一个包容的空间,

允许你做些反常规的设置

台盆柜开放设计,

让这个过渡空间更加流动和通透,
它是定义一种开放的生活态度,

处处展现的是一种交流 。



方案二    实用



定位为年轻人实用户型。

空间多变、灵活、开放,

在空间功能上做了灵动的规划布局。


方案三    对称


二房两厅,一厨二卫,

空间布局对称分布,基本没有浪费的地方,

一个阳台,现将南边阳台敲掉,

并入卧室,增加了卧室的舒适度和空间的使用度。



方案四    模数化


将设计做“模数化”考虑,

其实是业内比较忌讳的,

因为他会挫伤设计师创新积极性,

但另一层面说掌握一些基本设计原则也是有助于设计归纳能力的提升,

基于这个原则。

本案探讨的就是这种“方形模数”,

这种定位可以是入图中的储物空间体,
当然也可以演变为其他形式比如卫浴体系、睡眠体系甚至休闲体系。


方案五    方形



本案独选择方形作为实验,

为什么不是圆的,异型的?

其他答案想想大家都会有个共识,

就是方形是最容易重组和搭接的体块,

这也是为什么积木游戏为什么这么受亲睐原由。

 假如模数化是否设计批量生产甚至单一性的元凶,

其实这个是不用担心的,

因为平面的布局只是空间设计的一部分,

后期通过立面装饰或者软装搭配,变化还是很多

当然这是当下精装修房同样面临的挑战。


方案六   场景



定位这个方案主题比较难,

因为在设计过程中很多想法在纠缠,

想表达一种独特意境的场景,

类似电影场景的舞美,

想通过听觉、视觉、触觉各种感觉器官去营造这样一种氛围,

因此也出现了几个电影场景混搭的画面。


方案七   休闲



这个空间两个特色,

进门处的吧台及后面的红酒柜,

入口处的吧台甚至有种接待的功能,

进门就能感受主人不同的生活态度,

同时用红酒柜做背景,

跟是强化了空间的休闲性,

客厅沙发的朝向也是和吧台达到一种呼应,

仿佛酒吧里的休闲卡座,

很舒适也很方便。

它的摆放同时也是轻松的,

非常规的对视背景墙,


方案八    体验



这个方案重点是希望强调“感受”,

表达的媒介就是“门”
“门”在生活中几乎都是“未知”的代名词(门后的世界也是一个未知的探索)
曾经参加过一个很无厘头的讨论,

就是“开门的感受 ”,

当时我的回复就是“感受未知”,

因为当你推开各种门时,

面对即将到来的内容大多是一种未知,

当然也充满期待。
本案通过夹丝玻璃门的材质,

稍稍缓解那份未知,

更多增加一份朦胧虚无,

稍稍增加一些安全感,

门垛在设计中特意做突兀的强调,

为了就是彻底强化这个“装置”以及步入式的感受。

当然由于餐厅是比较对外的,

所以第一重入户门会稍微开放,

当到达第二层通往客厅的门时会更加舒适,

第三重门当然就更加私密,

这是一种无形的空间语言,

两个空间还有通过吊灯来点题,

展示不一样的时空概念


方案九    性感



做这个方案时,也是搜集了一些概念意向图,

很多甚至是SOHO公寓的思路,
家庭办公确实也是眼下很多工作族群向往的,

基于这些基本概念,充电看了MOOOI的一些家具,
思路又更加完善清晰,

客厅我想做些比较特别的设计,

首先是对家私的选择,
最后选定这种互动的弧形沙发,

非常具备表现力,

但放上去觉得有点散,

之后就搭配了一张个性的地毯,
这类地毯最近几年再一些酒店项目运用较广,

除了这种拼凑不规则图案外,

本身还有各种肌理凹凸的变化,
细节很耐看,餐桌想做那样亮光漆面,

超尺度的沙发餐椅也是偶尔灵光一显的决定,

蝴蝶凳挺好玩,
自己一个圈一个圈叠起来的,

都是自然的结晶,

主卧概念一直都是很明确的,

就是书桌与床品的组合,
一直很羡慕这种组合形式,

因为确实对进深要求太高,

家庭里如果能采用确实建议是可以考虑试下。


方案十    禅



当“树与木”的想法跳入我的脑海中时,

还着实小兴奋了一把,

但这次会考虑做得更加纯粹
“禅”这个思路也是在这种轨迹中延续下来
为了配合这种意境,

我想将“东方元素”融入其中
因为“东方概念“一直在外界是神秘的象征
所以在室内设定了高差,

空间层次更加分明,
在半透半隔之间让绿植为空间渲染一层朦胧 
”茶文化“似乎在东方比较盛行
所以 ”茶道室“的出现仿佛又显得顺理成章
东方人自古比较内敛,

这些硬景软景的搭配营造一幕”冥想空间
同时绿植也让空间 呈现一抹绿色,

自然天成家私选用简约线条木质框架并带粗质感的布艺 结合
让舒适与效果并存,

一切为了整个空间氛围的营造
树荫底下的就餐、 茶道室泯茶时的悠然、客厅绿意黯然的家庭聚会....
绝对的幸福空间


方案十一     互动



这个方案的思路是“互动”,

简单理解就是从一个空间透过缝隙能隐约

看到另一个空间的局部,

有点象中国园林的“花窗借景”的感觉,

当然它这种会更加隐晦,

因为大部分都是从间隙中“透”的手法
这种作法的好处是让每个空间形成一种联接互动,

同时非常能满足人的好奇心心理,

全暴露太直白,

若隐若现相反能收到想象空间。

最后

向设计师致敬!




手机版

小程序

公众号