欢迎来到十堰装一网!| 登录免费注册 触屏版
您的位置:装一网>十堰站>十堰上舍装饰>促销活动>【上舍Design·实景】看庭前花开花落—四方新城·匠园

www.zxdyw.com/shop/108899/

地址:湖北省 十堰市 张湾区 十堰市北京路万达商业广场A座2046

在线报价在线预约

  • 一居室
  • 二居室
  • 三居室
  • 四居室
  • 复式
  • 别墅
  • 其他

联系我们

十堰装修网 十堰上舍装修公司 十堰装修公司排名

地  址:湖北省 十堰市 张湾区 十堰市北京路万达商业广场A座2046

电  话:0371-58610011

联系人:

促销活动

【上舍Design·实景】看庭前花开花落—四方新城·匠园

内容提示:匠园的建筑风格,集古典中式和现代简约于一体,立面简洁,以灰、白、青为主色调,以现代建筑技术手段,贴合苏式风貌肌里,巧妙地与纯中式江南园林融汇一起。

 仰首是春,俯首是秋,潮流总是比时代更先老去。

无论是艺术还是设计,聚焦的都是那些经久流年,

时间厚度下沉淀的内敛之美。


品质生活美学情怀设计

Shi Yan, 2019, ShangShe DESIGN


项目地址 | 四方新城·匠园

全案设计 | 上舍设计

项目风格 | 中式

项目面积 | 220㎡ 

项目户型 | 复式

空间摄影 | 流沙摄影



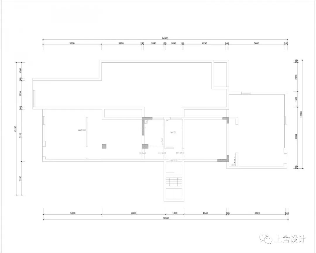
原始结构图


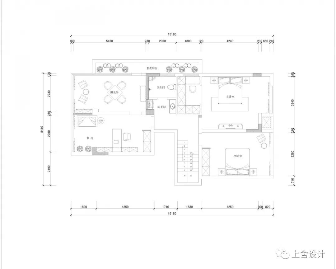
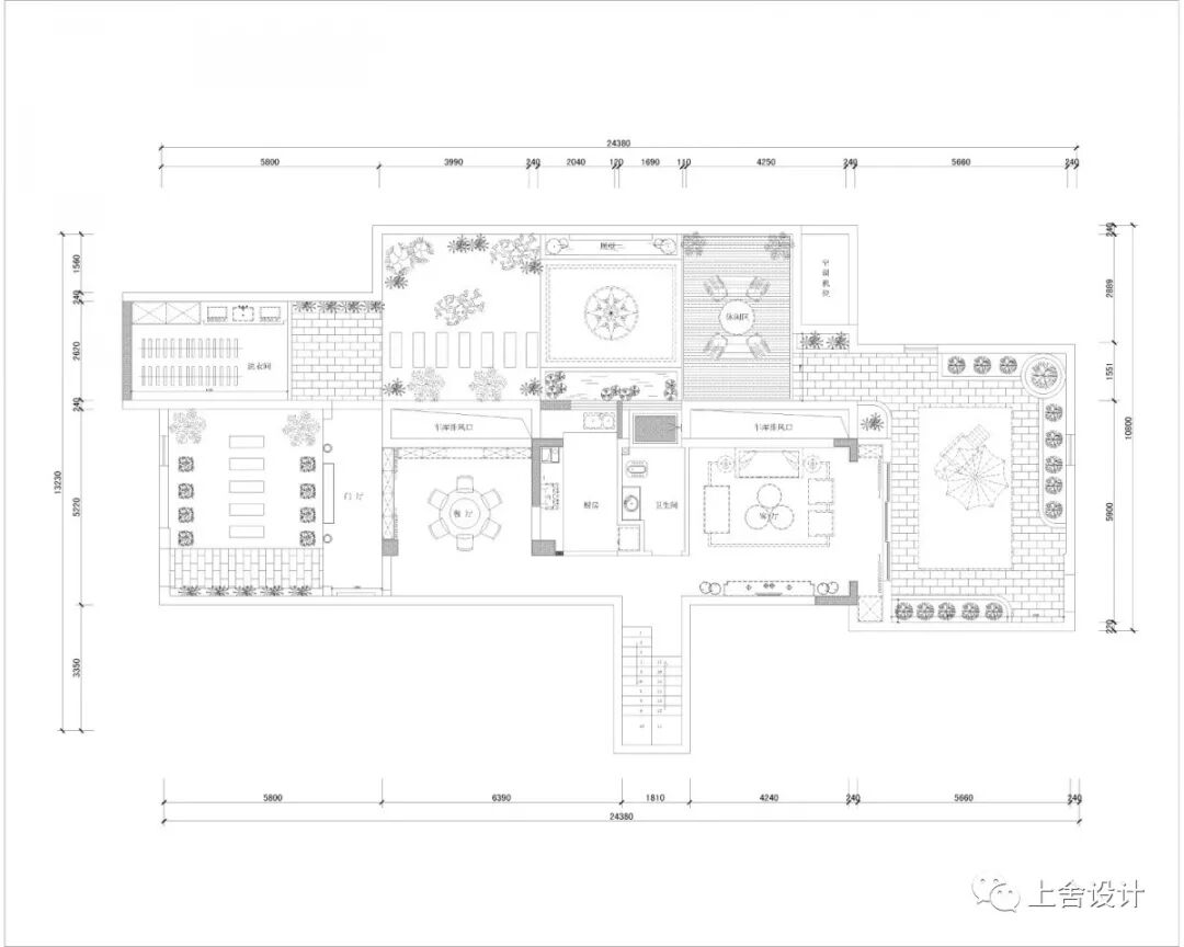
平面布局图


「 Preface / 说在前 」 

本案为复式的户型,设计重点一楼前后以及侧院,二楼卫生间区域扩大,改动影音室门的位置,扩大书房和影音室空间。

业主对于院子的设计非常看重,原本找了施工,打算自己动工。但是到了拆改阶段,发现设计与施工和预期有着比较大的落差。为了让自己的新房更具个性与生命力,业主找到了我们,决定重新设计。




实景拍摄

匠园的建筑风格,集古典中式和现代简约于一体,立面简洁,以灰、白、青为主色调,以现代建筑技术手段,贴合苏式风貌肌里,巧妙地与纯中式江南园林融汇一起。



【前院】


步入院内,曾经在图纸上看到的都变成了现实:俯仰之间皆是夕阳的余晖,超大面积庭院,让阳光与清风的惬意得以施展。


时光沉淀下的中式韵味,散发着岁月的醇香。

成为体验生活美学的

人文场域。

既是当代生活方式,

也是对传统

优雅生活的回忆。




【侧院】



每个人都憧憬着一个属于自己的心灵花园,

它是人们内心最隐密,

最放松和最惬意的理想场所,

很多人从小就生活在老宅子里,

夏天的夜晚在院子里扇扇乘凉,

听老人讲三国、说水浒,

中式庭院才是每个人都梦想的居所。




院子,

还是中国的最美,

它把中国人的含蓄、内敛、唯美,

以及太多美好向往融入了其中。




【后院】


曾经
花繁柳密处,拨得开,才是手段
风狂雨急时,立得定,方见脚根



而今
宠辱不惊,看庭前花开花落
去留无意,望天空云卷云舒



MINI菜园。你可以种几根葱蒜生姜,从厨房里出来随用随摘;甚至载上几株丝瓜,看着藤蔓攀墙而上,蜜蜂绕枝头的情趣。



抄手游廊可供人通行或休憩小坐,即使在连绵大雨或雨雪霏霏的日子里,都可以毫无压力地一览院内景致了。





【客厅】



本案室内风格延续了外观建筑的精神表现,但不是纯粹的传统元素堆砌,将现代和传统元素结合在一起,东方的传统静谧与西方的开放简洁在空间中相互的影响与渗透,完美的结合,贯穿于设计中,塑造一个舒适怡人的居住环境。




国风古韵








【餐厅】



中式古典装修,木质元素必不可少。采用木质圆桌、古典椅,具有浓郁的仿古气息.





【书房】



书房是读书写字或工作的地方,需要宁静、沉稳的感觉,人在其中才不会心浮气躁。



中式书房特有的东方沉淀和古韵风情往往使人身在其中,感受沉静悠然。





【卧室】



每个中国人也许心中都有一段抹不开的中式情节,亦或是泼墨山水、亦或是青瓷勾勒、亦或是雕梁画栋。






【端景】



现代元素的挂画将古典韵味和现代时尚结合




【影音室】


星空吊顶通过独特的设计理念和技术创新,将浩瀚星河点缀在扣板之上,逼真模拟出自然界夜空星光的效果;在惟妙惟肖的星空下,光源的选择以柔光为主,通过科学布光,多种灯光模式组合的混合运用,营造出一个不仅美观更加实用的温馨氛围!



【卫生间】


一日三餐四季,让设计融入生活,将中式传统文化,注入新的想法,赋予现代的诗情画意,使其得以传承与延续。


往期回顾

MORE




上舍设计


-新设计-

让品味与生活共存

-新生活-

让您享受生活

专注内心


ADD: 北京路万达广场商业楼A座2046

TEL: 0719-8033605

18371919625

微信后台可直接留言咨询

感谢关注


手机版

小程序

公众号