欢迎来到十堰装一网!| 登录免费注册 触屏版
您的位置:装一网>十堰站>十堰上舍装饰>促销活动>上舍 实景丨 家的温度与情怀—阳光栖谷·翡翠园220㎡复

www.zxdyw.com/shop/108899/

地址:湖北省 十堰市 张湾区 十堰市北京路万达商业广场A座2046

在线报价在线预约

  • 一居室
  • 二居室
  • 三居室
  • 四居室
  • 复式
  • 别墅
  • 其他

联系我们

十堰装修网 十堰上舍装修公司 十堰装修公司排名

地  址:湖北省 十堰市 张湾区 十堰市北京路万达商业广场A座2046

电  话:0371-58610011

联系人:

促销活动

上舍 实景丨 家的温度与情怀—阳光栖谷·翡翠园220㎡复

内容提示:“ 设计的存在不仅是解决空间和美感,更是全方位的解决落地过程中的每一个细枝末节。”

“ 设计的存在不仅是解决空间和美感,更是全方位的解决落地过程中的每一个细枝末节。”





项目地址 | 阳光栖谷·翡翠园

全案设计 | 上舍设计

项目风格 | 欧式

项目面积 | 220㎡ 

项目户型 | 复式

空间摄影 | 流沙摄影



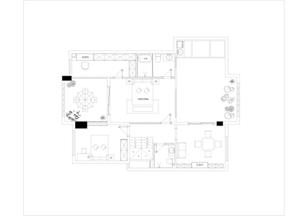
原始结构图




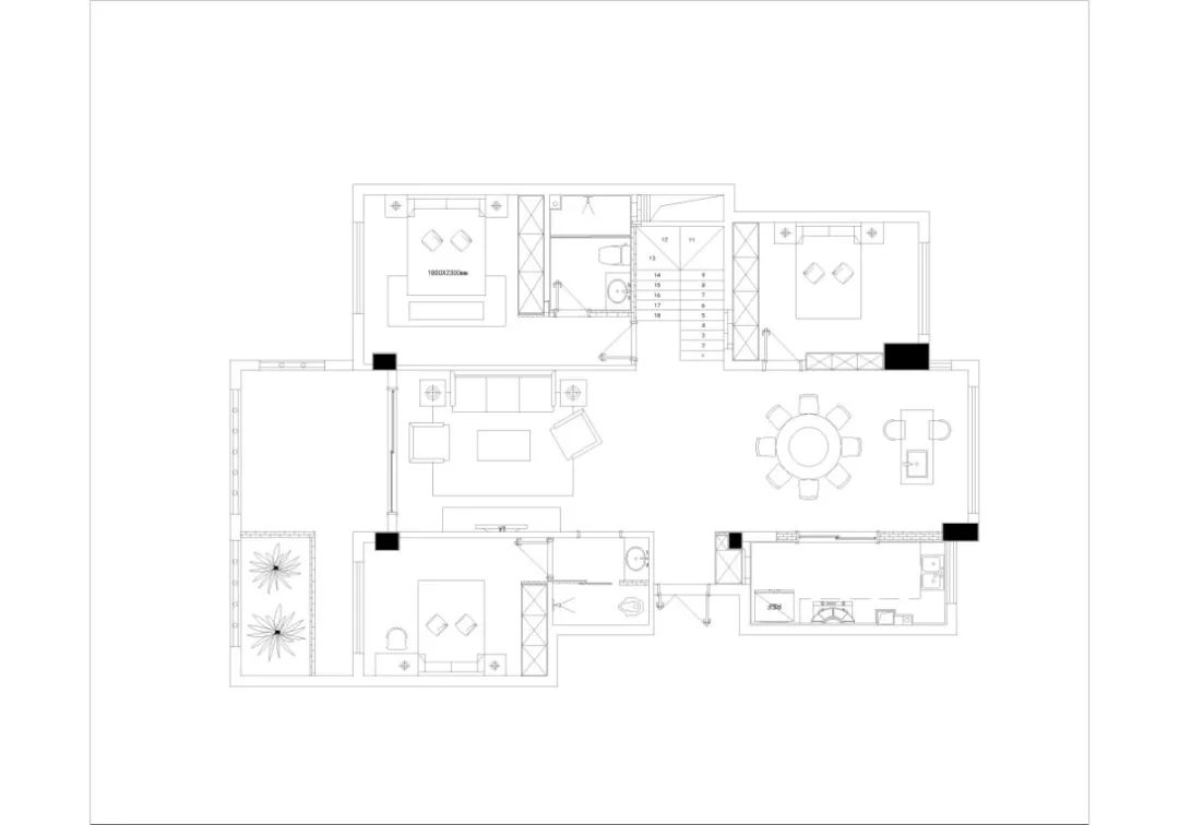
平面布局图




「 Preface / 说在前 」 

喧嚣的城市生活,

心头难免会有一些期许 /

也许是一种平静,静谧与缓和的感触 /

也可能是一种自由生活与灵魂的放松 /

若能在家中享受一场纯粹的生活感触 /

不得不说是一份幸运 /




实景赏析


设计者根据业主的生活背景和性格特征,   

从材质的选择,到施工的每个细节,都渗透着精致的时尚理念,又毫不缺乏家的舒适和温暖。



客厅



空间以极简色调,搭配调色的挂画,呈现着一种坚柔并进的特殊味道,编制出空灵扑拙的安静感与美,在这里,古典和现代设计和谐地结合在一起。




家具的颜色也仅仅是比墙面稍深一些,但是家具有深色的描边,家具的颜色不沉闷深色的家具描边让整个室内风格显得更加稳重端庄;窗帘的颜色和电视背景硬包的颜色遥相呼应,沙发上的抱枕点缀的恰到好处。



餐厅



“天圆地方”是中国的传统宇宙观,“圆”对中国人来说有着极具意义的象征,它代表着团圆、也有着招聚财气和运气的意义。



餐桌和吊顶都运用了“圆”这一元素,相互呼应,凸显了设计师对“家”的独特理念。




每个人心中都有一个属于自己的露台,承载着我们对美好生活的向往。



朝迎阳光,暮送晚霞。




主卧



在主卧的构建上进行了适当的拆除,打破了原有的结构,扩大了空间;





公主房



优雅温婉的浅色系,充满了浪漫主义色彩,它带有童话般的梦幻感,是一种对美好生活的祝愿与期盼。


影音室



家庭影音室的设计,满足了足不出户也能在家观看大片的的需求。




这个家是完完全全属于家人的情感空间,开放、自然,伴随着小朋友的成长,在这里可以卸下一切,或与亲友闲坐,或与自己独处,带着一种度假的心情,每一刻都如此盎然。



END | 谢谢观阅



手机版

小程序

公众号