欢迎来到南充装一网!| 登录免费注册 触屏版
您的位置:装一网>南充站>新浪装修>促销活动>【装小白 扫盲指南】装修预算注意啥?图纸怎么看?

www.zxdyw.com/shop/108979/

地址:四川省 南充市 顺庆区 coco香江3期28号附一

在线报价在线预约

  • 一居室
  • 二居室
  • 三居室
  • 四居室
  • 复式
  • 别墅
  • 其他

联系我们

新浪装修-抢工长-南充站

地  址:四川省 南充市 顺庆区 coco香江3期28号附一

电  话:0371-58610011

联系人:文先生

促销活动

【装小白 扫盲指南】装修预算注意啥?图纸怎么看?

内容提示:这是一条正经的通知: 抢工长装修平台想业主之所想,急业主之所急,致力于为业主扫除装修过程中的盲区,填掉各种坑。【装小白 扫盲指南】新栏目策划上线啦!指南在手,小白变大咖!来不及了,快上车!


这是一条正经的通知:

       抢工长装修平台想业主之所想,急业主之所急,致力于为业主扫除装修过程中的盲区,填掉各种坑。【装小白 扫盲指南】新栏目策划上线啦!指南在手,小白变大咖!来不及了,快上车!



装修工程预算你要知道

在设计师给你量完房后,会给你计算出一份装修工程预算和报价单,你需要知道以下信息:

1.了解装修预算清单基本内容

装修预算清单所包含的内容十分的详细,查看是否有用词不准确、缺词、语言模糊的情况;是否有整个装修工程的情况说明,和对于装修报价的补充说明。

2.根据设计方案进行估算

在进行估算之前,你一定要和设计师一起讨论,让设计师尽快的确定房屋设计方案。

3.了解装修预算费用的计算公式

装修预算金额是家庭装修预算表中的重要组成部分,一般装修的预算都是以装修工程设计图、装修效果图进行设定的,装修预算中的人工费、材料费、机械耗损费都是装修预算费用中的主要指标,其计算公式如下所示:

①、定额工人费=定额工日数×日工资标准

②、定额材料费=材料数量×材料预算价格+机械消耗费 (机械消耗费是材料费的1%-2%)。

装修工程图纸审核技巧

装修设计图纸是家居装修施工的基础,家居的面积、测量、电线分布……无不是从这张图纸所指挥的,当设计师把装修图纸给你看的时候,怎样审核,需要注意什么问题呢?

各类装修主要图纸介绍

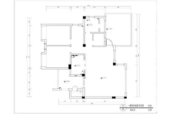
主要图纸也就是装修过程中,主要装修环节的示意图,让户主和施工人员清楚设计者的构想。装修的主要图纸包括原始建筑测量图、平面布局图、天花吊顶布局图等。


原始建筑测量图


原始建筑测量图包括房间的具体开间尺寸、墙体厚度、层高、房间梁柱位置尺寸、门窗洞口的尺寸位置、各项管井(上下水、煤气管道、空调暖管、进户电源)的位置、功能、尺寸等项目,它是一切设计图纸的基础,如果一开始的测量图纸出现偏差,此后的设计图纸和施工都会因此出现误差,导致整个工程无法正常进行。因此,要重点把握原始建筑测量图!

装修平面布局图

装修平面布局图中具备的内容十分之多。其中应具备:墙体定位尺寸,有结构柱、门窗处应注明宽度尺寸;各区域名称要注全,如客厅、餐厅、休闲区等,房间名称要注全,如主卧、次卧、书房等;室内、外地面标高、墙体厚度应注明;如有楼梯,标明平面位置的安排、上下方向示意及梯级计算;门的开启方向;活动家具布置及盆景、雕塑、工艺品等的配置。

天花吊顶布置图


天花吊顶布置图是天花吊顶装修项目中最重要的图纸之一。它要求标明天花造型的尺寸定位、灯具位置及详图索引,并应标注天花底面相对于本层地面建筑面层的高度,同时还要注全各房间的名称。

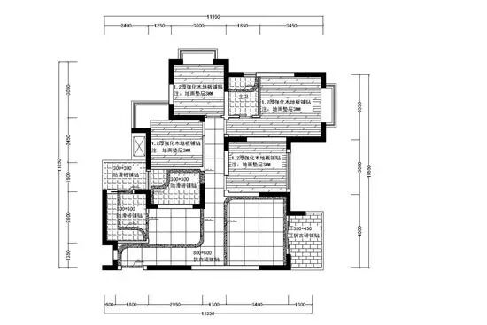
地面材质图

地面材质图,顾名思义是关于地面材质的任何内容的。它标明需要铺设的地面材料种类、地面拼花、材料尺寸及不同材料分界线。

配电系统图


配电图是设计图纸中十分重要的一部分,各种电源插座的位置都需要妥善安排,业主在查看配电图时,需要注意的是插座的位置、数量,位置的安排要根据实际使用的方便性安排,综合考虑门窗、家具的安排,不能让插座被门窗遮蔽,影响正常使用。在此小编需要提醒的是,在数量上也不能一味地追求节俭,要根据家中电器的数量和种类安排,还要适当地留出富余。

建筑改建平面图

建筑改建平面图是根据设计方案将需要改动结构的墙体在图纸上标明的标识,比较常见的表示方法是在图纸上可以用虚线表示需要拆除的墙体,深色表示改建的墙体。

强弱电布置图


强弱电布置图是关于居室内部所有强电和弱电的布置的。房间里所有开关的位置,及每个开关所控制的电器、灯源。

给水走向图

给水走向图是关于厨房、卫生间等处的给排水线路的布置图、给水管道的管径尺寸、取水位置及高度、管线排布系统等是该图的重点。在水路施工中要十分注重,要以此图为基础。

立面图、局部放大图和节点详图


立面图、局部放大图和节点详图即从水平的角度看到的房间局部的剖面的图纸。它包括墙体定位尺寸,各部位装饰墙面造型的立面图形、尺寸、构造材料、面层材料名称;各房间、各部位固定家具造型的立面图形、尺寸、构造材料、面层材料;各固定家具的剖面图形、尺寸。

各固定家具的节点大样图形、细部材料、尺寸、构造做法;墙柱面装饰造型、花台、栏杆、台阶、线角等的尺寸及其它尺寸定位。小编提醒在立面图中,门窗标高和高度要分别注明,相应部位的天花剖面也要一并画出,并标注天花造型部分的尺寸与标高。


如何审核装修图纸

审核图纸需要看清比例、尺寸等信息,谨防设计师和施工队钻小空子,让你做个精明的装修人。

看清图纸的比例


现实很多情况中,很多消费者都只喜欢看效果图,但却往往忽视了施工图,但是,效果图上漂亮的造型,现场制作出来以后,却往往与设计图纸上相差甚远。其实检查一下原因,就是设计师没有按照施工图纸来做设计图纸,而是把图纸按照美丽的图画来制作的。所以,一张设计图纸必须按照严格的比例来制作。

看清图纸的尺寸

另外,有些设计图纸由于设计师没有在准备施工的现场作认真细致的测量,因此导致很多尺寸在设计时有遗漏,尤其是一些关键尺寸如果在设计时没有掌握,有可能在施工时产生设计与施工脱节的情况。

看选择材料是否清晰


大多数朋友常常关注于装潢公司的报价单,担心上当受骗,一项项地仔细检查,其实在设计图纸上也应该标注出来主要材料的名称以及材料的品牌,这对于今后施工人员依照图纸施工很有利。

看制作工艺是否标注

最后,在施工图纸中标注必要的制作工艺是为了一方面是便于施工,同时也能起到约束施工人员在施工过程中偷工减料的作用,保证消费者得到一个与合同洽谈相符的工程项目。

声明:本栏目内容由抢工长综合整理,以学习交流为目的,如有侵权,请联系我们删除,如需转载,请注明出处。


南充抢工长装修网站:http://na.7gz.com/

手机版

小程序

公众号