欢迎来到杭州装一网!| 登录免费注册 触屏版
您的位置:装一网>杭州站>至美焕新>促销活动>量房哪些事

www.zxdyw.com/shop/109377/

地址:浙江省 杭州市 天城路218号

在线报价在线预约

  • 一居室
  • 二居室
  • 三居室
  • 四居室
  • 复式
  • 别墅
  • 其他

联系我们

至美焕新装饰好不好_至美焕新装饰评价-至美焕新电话

地  址:浙江省 杭州市 天城路218号

电  话:0371-58610011

联系人:客服电话

促销活动

量房哪些事

内容提示:量房是装修的第一步,只有对房间各个地方的尺寸都了如指掌,才能更好地进行接下来的装修设计、制定预算方案等工作。明确量房相关知识,轻松解决装修难题。下面分享一下装修量房过程、注意细节,刚出道的设计师和业主朋友们都可以学习一下,如果你中意的设计机构是外地的,想要委托他们做设计,首先要提供量房数据,这个工作是业主自己完成的,所以耐心看完吧。


Part1:装修漫无头绪?从量房基本知识学起


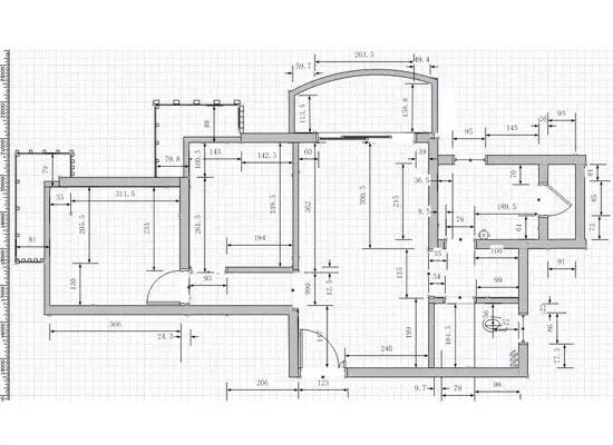
量房是房屋装修的第一步,这个环节虽然细小,但却是非常必须和重要的。它是指设计师或者是业主自己对拟装修的居室进行现场勘测,并进行综合的考察的过程。


一、装修量房的作用


1、了解房屋详细尺寸数据

通过量房准确的了解房屋内各房间的长、宽、高以及门、窗、空调、暖气等的位置,量房首先对装修的报价会产生直接影响。


2、了解房屋格局利弊情况


通过现场量房,设计师会仔细的观察房屋的位置和朝向。以及周围的环境状况、噪音是否过大、空气质量如何、采光如何等,都会直接影响后期的设计。如果遇到一些房子格局或外部环境不好的情况下,就需要设计来弥补。


3、保证后期房屋装修质量


只有量房比较精确,才能做出准确的设计,不至于后期施工时,因为尺寸不对而无法实现,需要进行设计更改或者项目更改。一些项目如上下水暖气煤气位置如果没有测量或者测量不准确,就有可能导致后期购买的坐便器水盆等因尺寸不对无法安装而发生退货、换货的情况。


4、方便设计师与业主实地交流


量房时,设计师和业主一般都会到场,如果业主对房屋的设计有一定的想法,在现场测量的时候,就可以和设计师沟通看这些想法是否可行,交流起来比较有效果。此外,业主如果需要提前订购主材,也需要现场和设计师进行沟通后再做决定。


二、量房的收费情况


一般情况都是请装修公司设计师来量房,关于量房的收费,不同的装修公司有不同的规定,大部分装修公司会免费量房。如果收费的话一般为一次100元左右,如果量好房,业主选择这家公司设计、施工,则这100元自动转化为定金的形式,如果量好房就结束了,则这100元就作为设计师量房的报酬,不予退还。


三、量房前的准备事项

量房前记得携带好房屋图纸:在量房前记得携带房屋建筑水电图以及建筑结构图户型图等。


了解所在物业对房屋装修的规定:量房前还一定要了解房屋所在的小区物业,对房屋装修的具体规定,例如在水电改造方面的具体要求,房屋外立面可否拆改,阳台窗能否封闭等等,以避免不必要的麻烦。


Part2:量房无从下手?看装修量房一般流程


量房需要用到什么工具?一般需要做哪些事?都不知道了吧,那就一起来看看量房的一般流程。


一、准备量房工具


量房时候最基本需用到的工具有卷尺、纸笔,卷尺最好带长度在5米以上的。其他的工具还有相机(手机也可以)、绘图板、激光测量仪等。


传统的用卷尺量房操作起来比较麻烦,而且测量误差也较大。现在量房的工具越来越先进,如激光测距仪,操作简单,轻轻一照就可以将数值反应出来,精确度很高。


二、绘制房间图纸


如果没有携带房屋户型图,就需要现场在纸上画出大概的平面结构图。图不需要太讲求尺寸,只要能进行数据标记就行。


三、实施测量


量房是个琐碎的过程,从量房的动作上来分,基本可分为量、看、摸、照、问


四、拍照留存底档


为了对整个空间有更好的把握,最好在量房的时候能够拍照作留底,有利于后期设计的准确。


五、设计师与业主交流意见


量房时,设计师应与业主进行初步的沟通和交流,看业主对房屋的构想和功能区使用方面的要求,并根据现场情况初步判断业主想法的可行性。


Part3:量房其实不难 看量房具体方法步骤


别看设计师记录的数据繁多而又复杂,其实他们的测量是有一定规律的,按照以下思路来,就能做到有条不紊。


一、量房的三种测量思路


定量测量:主要测量各个厅室内的长、宽、高,计算出每个用途不同的房间的面积。并根据业主喜好与日常生活习惯提出合理化的建议。


定位测量:在这个环节的测量中,主要标明门、窗、空调孔的位置,窗户需要标量数量。在厨卫的测量中,落水管的位置、孔距、马桶坑位孔距、离墙距离、烟管的位置、煤气管道位置、管下距离、地漏位置都需要做出准确的测量,以便在日后的设计中准确定位。


高度测量:正常情况下,房屋的高度应当是固定的。但由于各个房屋的建筑、构造不同,也可能会有一定的落差,在设计师进行高度测量中,要仔细查看房间的每个区域的高度是否出现落差,以便在日后的设计图纸中做到准确无误。


二、量房的一般技巧


量房的正确顺序:量房一般从入户门开始,转一圈量,最后回到入户门另一边,把房屋内所有的房间测量一遍。如果是多层的,为了避免漏测,测量的顺序要一层测量完后再测量另外一层,而且房间的顺序要从左到右。


长高度测量方法:在用卷尺量出具体一个房间的长度、高度时,长度要紧贴地面测量,高度要紧贴墙体拐角处测量。没有特殊情况,层高基本是一定的,找两个地方量一下层高平均就可以了。


门窗等定位方法:所有的尺寸都分段,就像几何一样分割成若干个,量了之后数据随时记录下来,先测量门本身的长、宽、高,再测量这个门与所属墙体的左、右间隔尺寸,测量门与天花的间隔尺寸。


三、量房时的注意事项


量房需要细致,减少误差。有特殊之处用不同颜色的笔标示清楚;在全部测量完后,再全面检查一遍,以确保测量的准确、精细;用卷尺测量长度的话,需要两个人配合才行,否则很容易造成数据不准确。


结语当然老房子的量房工作会相对困难一点,误差也会大一点。一般老房误差10公分左右可以接受,毕竟很多装饰面把墙面都盖住的,不好量结构的。

手机版

小程序

公众号