欢迎来到攀枝花装一网!| 登录免费注册 触屏版
您的位置:装一网>攀枝花站>攀枝花星艺装饰>促销活动>让工地开口说话(九)| 电气工程【3】:布线、检测、绘图

www.zxdyw.com/shop/109922/

地址:四川省 攀枝花市 东区 三森家居建材城6楼

在线报价在线预约

  • 一居室
  • 二居室
  • 三居室
  • 四居室
  • 复式
  • 别墅
  • 其他

联系我们

广东星艺装饰攀枝花分公司

地  址:四川省 攀枝花市 东区 三森家居建材城6楼

电  话:0371-58610011

联系人:魏星

促销活动

让工地开口说话(九)| 电气工程【3】:布线、检测、绘图

内容提示:“让工地开口说话”是星艺装饰一贯秉承的质量锤宣言。严格把控流程节点、工艺节点,是做好品质工程的关键举措。我们坚信:细节决定成败!

 室内电气安装工程,是整个装修工程中的重要组成部分。如施工操作不当,将严重影响业主的正常生活,甚至因短路、漏电等原因而造成财产损失,危及生命安全。因此,电气安装工程施工,必须由专业电工持证上岗,严格按行业标准和国家现行相关标准规范进行施工操作。


一、布线

1、基本要求:

(1)严禁单独回路借线,中途接线,借用老线管。

(2)同一回路电线应穿入一根管内,电线总截面积(包括绝缘外皮)不应超过管内截面积的40%。

(3)同一回路布线应三线同径。

(4)户外用电:由于户外环境常年受高温照晒和雨水侵蚀,普通电线绝缘层易老化破损,导致引发安全事故;而耐气候型绝缘电缆线,都有较厚的外包层,经得起日晒雨淋。因此,通往户外电源线应使用与用电器相匹配的耐候型绝缘电缆线,并可更换。

2、导线分色

一般规定:

220V:相(火)线为红色,零线为蓝色,地线为黄绿双色,灯控线为绿色,双(多)控线为黄色。

380V:相(火)线为黄、绿、红三色,零线为蓝色,地线为黄绿双色。

3、线径要求

(1)入户电源线径10mm²

(2)空调专线:

A、1-1.5P空调线径=2.5mm²

B、2-3P空调线径=4mm²

(3)厨房专线线径=4mm²

(4)冰箱专线线径=2.5mm²

(5)普通电源插座线径=2.5mm²

(6)户内照明线径=2.5mm²

(7)特殊用电设备应根据安装说明书或厂家提供资料确定电源线径。

4、线管穿线

施工说明:

       先将钢丝穿线器一端与电线连接,利用钢丝的弹性和柔韧性将电线导入线管,牵引到所需位置。

图1:穿线器图示

图2:穿线器与电线连接

:使用电胶布包扎电线端头。


图3-4:穿线


5、插座与照明出线长度

  (1)插座出线:200mm;

  (2)天花灯线:超过吊顶天花实际厚度300mm;

  (3)原顶出线:300mm;

  (4)原墙(背景造型加造型厚度)灯线预留长度200mm。

图5-6:插座出线


图7-8:天花灯线


图9:原顶灯线


6、天花出线保护

图10:波纹管连接器展示


图11:连接器与杯梳连接


图12:连接器与波纹管连接

:连接器插入波纹管、其两边卡扣自动嵌入波纹管螺纹槽内,达到固定的目的。


图13:天花出线应做螺旋状缠绕

:禁止打圈缠绕、打死节。

图14:错误与正确的图示对比

7、底盒出线连接

  施工说明:

(1)传统工艺使用电胶布包扎缠绕底盒内分线所裸露的线头,电胶布经过一定年限易老化,从而导致漏电和短路;

(2)电胶布包扎缠绕线头体积相对增大,过多占有底盒内空间,影响电气面板安装质量;

(3)专用电线连接器具有操作便捷、安全、可靠、使用寿命长、耐老化等特点。

图15:电线连接器展示


图16-17:底盒出线连接


图18-19:与面板连接示意


二、检测

1、检测前基本要求:

(1)布线完毕,各分支线路应分组清晰,并做好标记;

(2)施工现场清理干净;

(3)自检合格后,由项目经理提前通知质检人员检测。

图20:各分支线路标记


图21-22:施工现场清理干净

2、检测基本内容:

(1)查看电气定位是否准确,合理;

(2)查看管线走向是否符合设计要求和国家现行有关标准的规定;

(3)查看线管连接和固定是否规范;

(4)检测导线与导线的绝缘电阻系数;

(5)检测导线与大地的绝缘电阻系数;

(6)检测导线与导线的通断电阻系数。


3、检测方法

图23:兆欧表图示介绍

图24:检测


图25-27:导线与导线的绝缘检测

(1)  将被测定的两端分别连于兆欧表上的 “L” 及 “E” 两个接线柱上;

(2)按额定转速顺时针转动摇柄,电阻系数大于200兆欧为合格。

图28-31:导线与大地的绝缘检测

一般规定:

(1)将被测端“E”接于电箱汇流排上,另一端“L”依次接在相线、零线上。

(2)按额定转速顺时针转动摇柄,电阻系数大于200兆欧为合格。


图32-36:导线与导线的通断检测

一般规定:

(1)将被测两端分别接于兆欧表“L"和”E“两接线柱上,再将相对应颜色的电缆芯相碰。

(2)按额定转速顺时针转动摇柄,通断电阻系数趋向于0为合格。

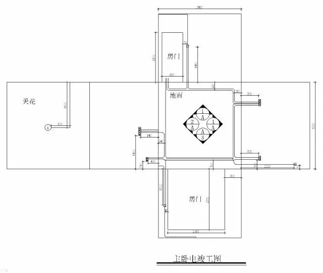
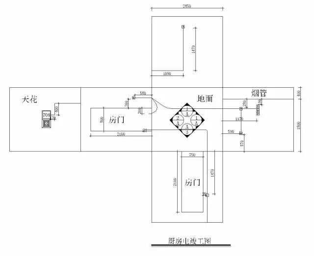
三、绘制电路竣工图

基本要求:

(1)水、电检测合格后,及时通知绘图员实地测量,同时拍摄图片存档;

(2)测量、绘图应由同一名绘图人员完成;

(3)现场绘制包含地面、四周墙面、顶棚等内容的六面展开图,并根据所绘图纸详细标注测量数据。

图37-41:测量及电路图绘制



电路竣工图的绘制意义:

1、由于电路管线暗敷于墙面、地面,属前期隐蔽工程,经过镶贴、填充、封闭等施工过程,原有管线已无从查找,后期安装工程只能依靠准确的电路竣工图;

2、便于在使用过程中的维修和改造工程,通过竣工图可清晰准确的查找管线的走向和分布情况;

3、了解管线走向、杜绝安全隐患,避免和减少损失。


四、封槽

基本要求:

(1)线管敷设各项检测已合格;

(2)隐蔽工程量已签字确认;

(3)底盒已保护;

(4)砂浆填充应分次进行;

(5)封槽砂浆不得高于原墙面;

(6)宽度超过100mm线槽应挂网做防开裂处理。

图42-44:底盒保护

挂网封槽施工步骤:洒水湿润砂浆填充 挂网砂浆找平洒水保养

图45:基底洒水湿润

 :预防因基底干燥吸水过快,影响砂浆与基底结合质量。


图46:砂浆填充

:将线管间隙完全填平并压实


图47:填充层搓平

:填充层砂浆应完全掩盖线管并搓平,预留出原墙面批荡层的厚度,便于挂网。


图48-49:挂钢丝网

:固定严密,无起拱、回弹现象。


图50-52:砂浆找平


图53:24小时内洒水保养



致力品质  致力幸福



─────    END   ───── 



手机版

小程序

公众号