欢迎来到北京装一网!| 登录免费注册 触屏版
您的位置:装一网>北京站>北京慧家装饰>促销活动>慧家装饰案例分享:慧家干货!小户型的舒适设计!

www.zxdyw.com/shop/111234/

地址:北京市 北京市 大兴区 丽园路7号港悦大厦603(地铁枣园站c口南500米)

在线报价在线预约

  • 一居室
  • 二居室
  • 三居室
  • 四居室
  • 复式
  • 别墅
  • 其他

联系我们

北京慧家装饰工程有限公司

地  址:北京市 北京市 大兴区 丽园路7号港悦大厦603(地铁枣园站c口南500米)

电  话:0371-58610011

联系人:张总

促销活动

慧家装饰案例分享:慧家干货!小户型的舒适设计!

内容提示:今天慧家在这里要分享的是一套面积仅48平米的老房改造案例,原仅有1房1厅1卫的格局,为满足一家五口人的需求,需要三个独立的卧室空间,这对设计师于鑫来说是极具挑战性的。好在房子在顶层,有个阁楼,经过于鑫的巧妙改造后,不仅实现了一房变三房,且美观与实用性兼具。

今天慧家在这里要分享的是一套面积仅48平米的老房改造案例,原仅有1房1厅1卫的格局,为满足一家五口人的需求,需要三个独立的卧室空间,这对设计师于鑫来说是极具挑战性的。好在房子在顶层,有个阁楼,经过于鑫的巧妙改造后,不仅实现了一房变三房,且美观与实用性兼具。


图赏


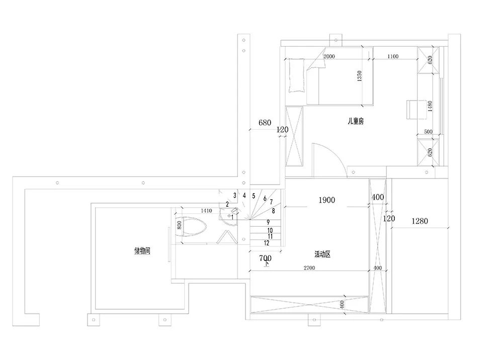
一层平面布局图

▲阁楼平面布局图


入户

利用入户门移位+卫生间退位,打造了一个功能性的过道。

进门的柜子集多功能于一身,各种电器有了容身之所,中间层装了菜盆,还有烤箱,早餐就在这里解决了。


客厅

将原客厅一分为二,利用玻璃移门隔成了餐厅和父母房。

卡座式餐厅设计,可以说是小户型的法宝,外观简洁,却有着越大的空量。

到顶的餐边柜,向上的空间也得到了充分利用。

进门区使用流行的色砖地砖,充满文艺气息,客厅区域铺的是木地板,温馨舒适。

父母房放的是可以收起变成沙发的壁床,可变成待客区。


主卧

通过改动房门位置成功开辟出一个衣帽间,一道厚重的布帘既实现了遮挡的目的,也节省了造价和开门空间。


楼梯

阁楼

将阁楼合利的用起来了,不仅多出了一间房,而且也让孩子有了足够的活动空间。

玻璃设计,采光更好,也更安全。

手机版

小程序

公众号