欢迎来到龙口装一网!| 登录免费注册 触屏版
您的位置:装一网>龙口站>龙口城市人家>促销活动>【开工大吉】龙口城市人家恭祝宏润花园徐先生 开工大吉

www.zxdyw.com/shop/113693/

地址:山东省 烟台市 龙口市 龙口市黄城南山路城市人家(人缘宴会厅北临)

在线报价在线预约

  • 一居室
  • 二居室
  • 三居室
  • 四居室
  • 复式
  • 别墅
  • 其他

联系我们

龙口华杰城市人家装饰工程有限公司

地  址:山东省 烟台市 龙口市 龙口市黄城南山路城市人家(人缘宴会厅北临)

电  话:0371-58610011

联系人:孙振鹏

促销活动

【开工大吉】龙口城市人家恭祝宏润花园徐先生 开工大吉

内容提示:▶2017年9月10日,龙口城市人家装饰全体员工热烈祝贺宏润花园徐先生开工大吉,感谢您及家人对我们前期工作的肯定与信任,龙口城市人家将为您竭诚服务。

2017年9月10日,龙口城市人家装饰全体员工热烈祝贺宏润花园徐先生开工大吉,感谢您及家人对我们前期工作的肯定与信任,龙口城市人家将为您竭诚服务。


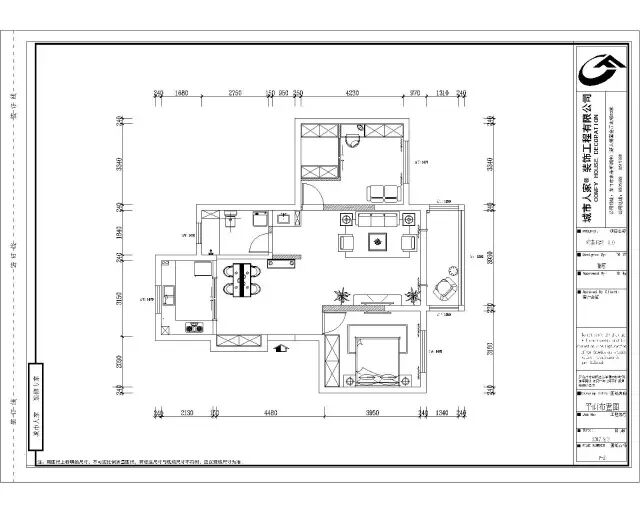
设计风格:现代简约风格

项目面积:110㎡

小区名称:宏润花园

建筑户型:二室二厅

设计说明:沟通的过程很细致,大到空间布局、色调表现,小到材质肌理、寻常小物件,这个家,脉络清晰的跟着设计方向,走到开始实施。一套案子,能反映着设计最初的想法,是我们的欣慰,也是对业主最大的责任。一套案子的呈现,需要业主,需要设计师,需要施工方,更需要彼此间的信任。专注于服务好每一位客户,落地实景,这就是我们平凡而简单的设计力量。


主创设计:设计咖

设计职称:主笔设计师

设计经验:7年

设计作品天韵尚城、龙城国际、宏润花园、龙泽华府、松涛苑等

徐先生户型图


电视墙效果图展示


餐厅效果图展示


卧室效果图展示


卧室效果图展示


客厅效果图展示


装修效果俯视图展示


▲设计师、监理和项目经理举杯祝贺徐先生雅居开工大吉


▲设计师、业主和项目经理等人进行业务对接


城市人家专属-十大节点管控验收标识


城市人家对楼道走廊和门进行保护


业主徐先生举锤开工动土


城市人家,您身边的装修专家 ,选择城市人家就是选择一份保障。

龙口城市人家装饰公司咨询热线:0535-8505688 8510588

24小时咨询热线15589623102 QQ:764303523(装修专家互动)
【编辑短信(小区名称+户型面积+风格)发送到15589623102,装修专家为您提供专属服务!】

龙口城市人家微信公众号

↓↓↓关注有惊喜 ↓↓↓

手机版

小程序

公众号