欢迎来到上海装一网!| 登录免费注册 触屏版
您的位置:装一网>上海站>上海尚官美学装饰>促销活动>【Shangguan】作品|美式风格—欧罗巴自由

www.zxdyw.com/shop/120427/

地址:上海市 上海市 徐汇区 宜山路700号普天信息产业园A7楼606室

在线报价在线预约

  • 一居室
  • 二居室
  • 三居室
  • 四居室
  • 复式
  • 别墅
  • 其他

联系我们

上海尚官建筑装饰有限公司

地  址:上海市 上海市 徐汇区 宜山路700号普天信息产业园A7楼606室

电  话:0371-58610011

联系人:尚官美学

促销活动

【Shangguan】作品|美式风格—欧罗巴自由

内容提示:美式风格因其独特的历史背景,形成欧洲文化古典与自由相碰撞的独特质感。具有神话色彩的欧罗巴大陆版块,衍生着自由与多元化的精神韵律。设计者结合功能性,用空间刻画延续着那段历史

                                                      【客厅】

                                                      【餐厅】

【卧室】

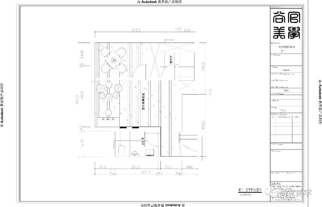
地下室因家庭的音乐艺术氛围 为女主人和小孩打造了音乐舞蹈室 地下室则成为全家人休憩 娱乐的私人空间

一楼经过设计师的改造 形成独特的朝向和自然形成的空间分割

进户左右两侧为鞋帽归和衣帽柜

向前延伸回即可看到钢琴位的摆放

楼梯间顺势做成了不规则的扇形楼梯

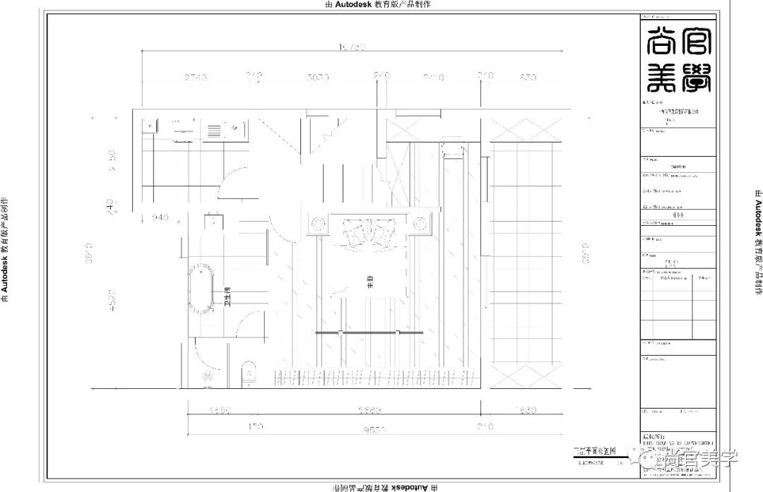
二层为父母和小孩的房间 南侧阳台为父母房间内的观光阳台

北侧保留了洗晒的功能阳台

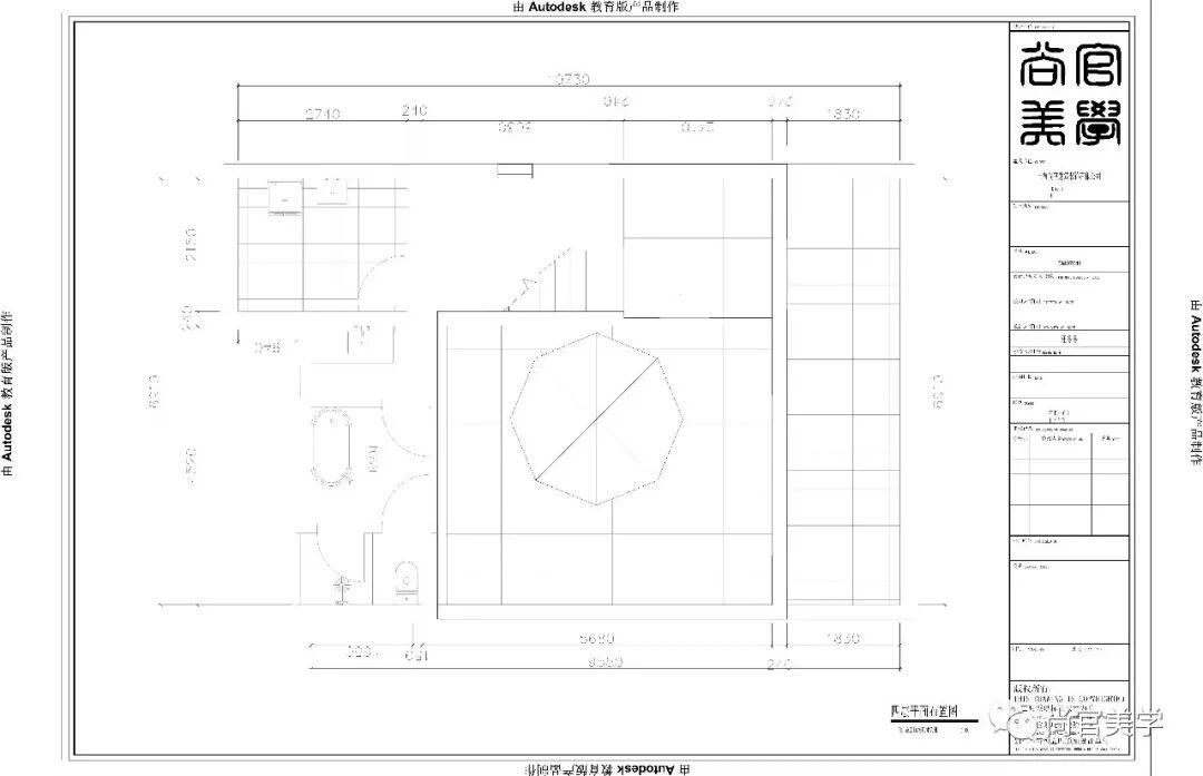
三层整层为主卧的套间 涵盖了书房 衣帽间

卫生间的设计由于主人的习惯 更偏向于西方的格局分配

顶层则保留了露台 设计师在露台四周围栏处考虑了灯光设计

主人则用于聚会、BBQ 得到更合理的利用


手机版

小程序

公众号