欢迎来到杭州装一网!| 登录免费注册 触屏版
您的位置:装一网>杭州站>临安中博装饰>促销活动>临安新房设计:现代简约风,每一个细节都是你喜欢的样子

www.zxdyw.com/shop/120586/

地址:浙江省 杭州市 临安区 临安中博

在线报价在线预约

  • 一居室
  • 二居室
  • 三居室
  • 四居室
  • 复式
  • 别墅
  • 其他

联系我们

浙江中博家居设计装饰工程有限公司临安分公司

地  址:浙江省 杭州市 临安区 临安中博

电  话:0371-58610011

联系人:中博装饰

促销活动

临安新房设计:现代简约风,每一个细节都是你喜欢的样子

内容提示:这间住宅以现代简约风为主,布局上有功能齐全还配有衣帽间和茶室。整体采用灰色调作为基础色,融入胡桃木和爵士白大理石,为了不让房子显得沉闷,再加入橘色、黄色做色彩点缀,整体简洁大方、舒适大气。

                                                                                               房屋信息


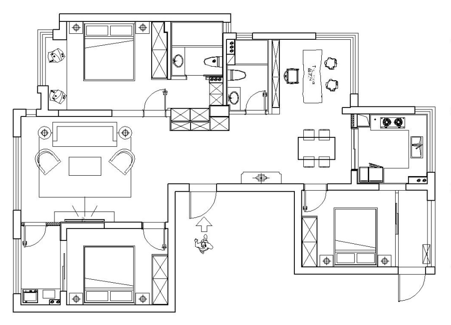
                    户 型:四室两厅两卫

                    面 积:133m²

                    风 格:现代简约

图片

                                                                                                       (原始平面图)

图片

(平面布置图)


户型南北通透,属于比较方正的,客厅和两个卧室朝南,背面留一客房与茶室。

在满足需求的同时还做了一些小设计与巧思,让整个家更加舒适温馨。



玄 关

图片



客户非常喜欢胡桃木的温润与内涵,所以玄关整体都采用胡桃木打造。

入户玄关尺寸留了将近两米多,通过凹凸打造出层次感。同时,玄关背后还藏了一个步入式衣帽间。图片


客 餐 厅

图片

图片

图片

客厅中没有过多繁杂的装饰,地面瓷砖的深灰色和茶几桌面的浅灰色两种颜色相互呼应,沉稳大气。棕色的沙发搭配米色的窗帘优雅知性。

图片

图片

不同材质和颜色的抱枕、不规则形状的吊灯、明亮的花束和绿植在细节上也加分不少,去除烦闷让空间更鲜活。

图片

餐厅在玄关右侧,爵士白大理石餐桌、黑白皮质餐椅和精致设计感十足的吊灯加上从落地窗洒进来的柔和光线,立马营造出时尚前卫的感觉。

图片

图片

图片

男主人非常喜欢喝茶,明亮舒适的茶室是男主人的每天去的最多的地方,还时不时约上三五好友前来小聚,以茶会友。

图片


厨 房

图片

灰色系的U型厨房,宽敞明亮。一体式打造的橱柜,设计合理,储物空间大。柜门材质选择了更具质感的磨砂款,低调大气。


图片


卧 室

图片

图片

卧室回归自然以木为主,原木色的实木地板搭配温润内涵的胡桃木衣柜,让人不自觉身心放松。

图片


图片

通往主卫的走廊,做了衣帽间的设计。双倍储物空间让收纳变得更游刃有余。

图片

卫生间采用了大量不同颜色的大理石,随处可见的收纳空间让使用更加便利。淋浴区域用玻璃分隔,做到了干湿分离。

图片

图片

次卧选用真丝缎面材质的床上用品,质感细腻亲肤让睡眠变成另一种享受。

图片

生活阳台还打造了小的储物柜,增加更多的收纳空间。中博特别赠送的奥普全自动晾衣架,让晾晒不再繁琐。

如果你也想要这样设计,就赶紧联系我吧18868135397(微信同号)




手机版

小程序

公众号