欢迎来到杭州装一网!| 登录免费注册 触屏版
您的位置:装一网>杭州站>临安中博装饰>促销活动>临安别墅设计:光明御品280方联排别墅,法式风情

www.zxdyw.com/shop/120586/

地址:浙江省 杭州市 临安区 临安中博

在线报价在线预约

  • 一居室
  • 二居室
  • 三居室
  • 四居室
  • 复式
  • 别墅
  • 其他

联系我们

浙江中博家居设计装饰工程有限公司临安分公司

地  址:浙江省 杭州市 临安区 临安中博

电  话:0371-58610011

联系人:中博装饰

促销活动

临安别墅设计:光明御品280方联排别墅,法式风情

内容提示:轻松惬意又慵懒迷人法式的格调是由内而外散发出来的优雅舒适、认真与随性。本案将优雅带入生活,彰显出独有的韵味和格调,从整体分化到细节,从细节彰显匠心!这种见微知著的考究与文化底蕴,让人惊叹不已!

轻松惬意又慵懒迷人法式的格调是由内而外散发出来的优雅舒适、认真与随性

本案将优雅带入生活,彰显出独有的韵味和格调,从整体分化到细节,从细节彰显匠心!这种见微知著的考究与文化底蕴,让人惊叹不已!


房屋信息

                    坐 标:光明御品

                    户 型:联排别墅

                    面 积:280m²

                    风 格:法式风格

图片

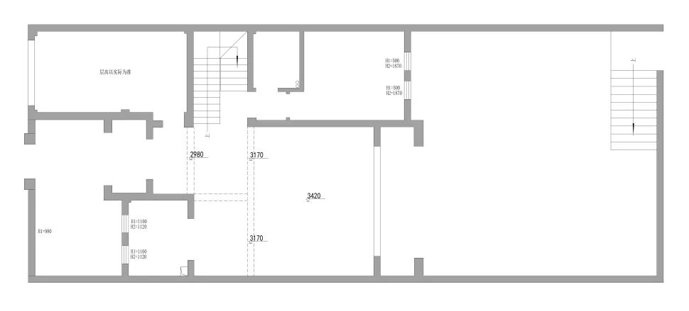
(一楼原始平面图)


图片


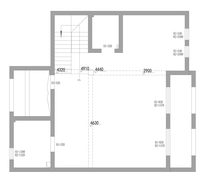
(二楼原始平面图)

图片


(设计后,一楼彩屏图)图片

(设计后,二楼彩屏图)

设计师改造原来客厅门厅位置,使其更通透宽敞。通过改变外卫设置,利用楼梯空间使其更合理。充分利用车库层高,让现浇楼层使用面积更充分。

#玄关

图片

独有着法式韵味的装饰风格,不同于传统的繁奢,经典又耐看。

#客厅

图片

图片

客厅以简约的线条代替复杂的花纹,采用更为低调大气的颜色,既保留了古典欧式的典雅与豪华,又更适应现代生活的休闲与舒适。

图片

图片

中博装饰精工匠作工艺,使整个空间富含艺术和浪漫气息。从细腻优雅的法式风格家具里,感受韵律美,丝毫不逊色于法式建筑,让人为之沉醉。

图片

图片

#餐厨区

图片

图片

满满的优雅的艺术格调,古典浪漫的餐桌,配合精致水晶吊灯,在这柔和大气的氛围下,众客齐聚,在餐桌上尽情享用美食,必能尽到主人的宾客之仪。 

图片

图片

客餐厅一体,整体空间更通透宽敞。餐厅以暖白色为主,加以黑色,金属色点缀。处处体现着低调奢华有内涵。

图片

厨房延续了白色基调,宽敞明亮。一体式设计的橱柜,布局合理收纳方便。在这样的环境中,为家人烹饪出各式各样的美味,心情也是美丽的。

图片

通往二楼的楼梯间,设计师设计了储藏室,充分利用家里的每一寸空间。

#房间

图片拉开窗帘,趁机倾泻而来的晨光,像一条不可抑制的决堤大河,在广袤的宇宙中自由地穿梭,这,又开始了新的一天!

图片

注重空间感和立体感是法式巴洛克风格的灵魂,别致的吊顶和吊灯是卧室拥有强劲的表现力和华丽。

图片

室内以格调优雅的爵士白为基调,整体上着以灰色和金属色搭配。

图片

床头尾的精细雕花,庄重大方、典雅气派,能够充分彰显主人之高贵身份与地位。

图片

这里是女主人私人设计的一角,庄重华丽的银色收纳柜是在成千上万的柜子中脱颖而出的选择。

低调到拥有极细沙发脚的单人沙发,看似不起眼实际很名贵的坐垫和不放大都发现不了的设计师款的小茶几。这些都是女主人精致到骨子里的对品质生活的追求。

图片

房间还配有独立的衣帽间和洗手间。

图片

设计将空间线条打造得十分有条理,便利的干湿分离设计,经典的金属描边设计的浴具,在柔和温暖的灯光下,宛如里尔克的诗歌般,典雅、浪漫。

图片

一个恬静的午后或是宁静的深夜,踱步书房里,翻开书的扉页,陶醉在书中的世界,一光一景之中,让人仿佛又找回在街角的书店邂逅一本深爱之书的喜悦。

图片

图片

“影音室”采用嵌入式的安装方案,铺设时,在龙骨与墙面之间填充吸音材料,以此起到吸音、隔音的效果。

设计师还提前计算好扬声器的安装位置,让观影者拥有最佳体验,在家里就可以拥有私人影院。

如果每一间房子都有生命,

那么你赋予它什么,它就展现给你什么。

中博装饰百强设计大咖让您的新家保持优雅生活美学,释放个性的力量,回归自我空间。

如果您也想要中博百强设计大咖为您的新家专属设计

那就赶紧联系我们吧,中博装饰临安分公司服务专线:13868199582(微信同号)






手机版

小程序

公众号