欢迎来到无锡装一网!| 登录免费注册 触屏版
您的位置:装一网>无锡站>无锡速美超级家>促销活动>96㎡温情北欧风,满足你所有的细节控!

www.zxdyw.com/shop/131017/

地址:江苏省 无锡市 新吴区 长江北路269-46号(光大银行旁)

在线报价在线预约

  • 一居室
  • 二居室
  • 三居室
  • 四居室
  • 复式
  • 别墅
  • 其他

联系我们

无锡东易日盛速美超级家

地  址:江苏省 无锡市 新吴区 长江北路269-46号(光大银行旁)

电  话:0371-58610011

联系人:仇伟

促销活动

96㎡温情北欧风,满足你所有的细节控!

内容提示:做个生活的有心人,总能在不经意间邂逅温暖。今天介绍的案例,是一套96㎡北欧两居,温馨四溢,精致有范儿,生活充满了质感。

做个生活的有心人,总能在不经意间邂逅温暖。

今天介绍的案例,是一套96㎡北欧两居,温馨四溢,精致有范儿,生活充满了质感。


北欧风分两种:

北欧自然风


北欧现代风


在屋主美好生活的蓝图中,家是温馨简约、清新明亮的,和设计师沟通看案例过程中,一眼便认定了北欧现代风。


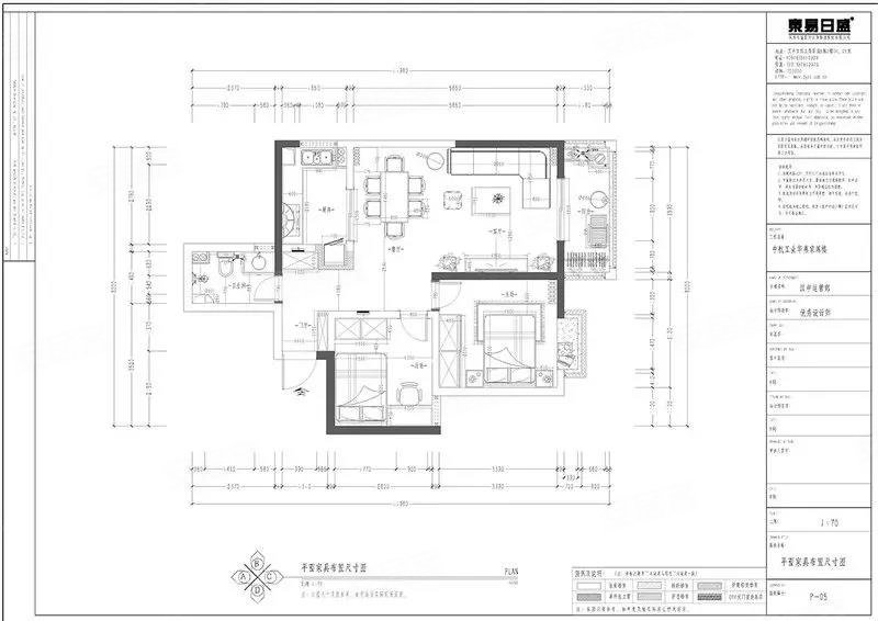
96㎡-两居-北欧

业主需求:屋主是一对儿刚结婚不久的小夫妻,男主是IT届不可多得的暖男,女主是细节控,还有个可爱的女儿。两人内心都存在一份特有的温柔,希望自己的家温馨明亮,充满质感。

设计理念:注重色彩和线条的变化,通过丰富的细节设计,让空间更贴近都市年轻人的品味。功能上,用恰到好处的柜体设计增加空间利用率。


客厅

白+灰的简约空间里需要一些色彩元素,沙发墙低饱和度的一抹绿便提亮了整个空间的视觉效果。

不论是搭配几何图形的地毯还是原木色家具,视觉上都很协调,加以明黄色点缀,不仅有质感更有温暖。


餐厅客厅南北相连,双向阳台光线充足,明亮通透。

黑色铁艺书架,不规则落地灯、吊灯,彰显空间质感与精致。

北欧风的经典元素——浅灰色的布艺沙发,搭配原木色圆形茶几,文艺感油然而生


客厅最有特色的一角便是白色文化砖设计的电视背景墙,简约而时尚


餐厅

双向阳台,餐厅的采光是极好的。

墙面与客厅背景墙颜色呼应,搭配绿色配饰。餐厅原木色家具与客厅家具呼应。可见细节控女主之精致

在墙面上设置一个多功能酒柜,坐塌镶嵌于酒柜中央,充分利用了餐厅空间。

一个简约又温馨的餐厅,是那么的明朗,让人在就餐中感受轻松和愉快。


厨房

厨房空间充分体现了北欧风家装风格,原木色家具的布置和几何图案的运用,纯粹而不落俗,特别讨巧。


卧室

主卧整体是对称格局,背景墙依然沿承客厅墙面设计。


暖男爸爸是很想给女儿打造一个小城堡的,首选了少女心的粉色做主色调,浅浅的原木色地板搭配粉色也不会有跳脱感。


卫生间

卫生间用灰色墙体做了干湿分离,隔空墙既增加了干湿空间的距离,又得到了充分利用。

每一寸空间都恰到好处,设计师在细节上再一次征服了细节控女主。



好消息!

无锡东易速美超级家22周年庆典

礼惠全城,无惠不狂欢!

8.18华夏家居港与您不见不散~

现在预约小编,活动当天可免费领取价值199元美菱塔扇

关于更多优惠内容,请关注【无锡速美超级家】公众号!

听说,还有神秘大奖装修免单抽奖环节哦~

手机版

小程序

公众号