欢迎来到无锡装一网!| 登录免费注册 触屏版
您的位置:装一网>无锡站>无锡速美超级家>促销活动>110㎡简美式的家,温暖又安心,给你满满安全感!

www.zxdyw.com/shop/131017/

地址:江苏省 无锡市 新吴区 长江北路269-46号(光大银行旁)

在线报价在线预约

  • 一居室
  • 二居室
  • 三居室
  • 四居室
  • 复式
  • 别墅
  • 其他

联系我们

无锡东易日盛速美超级家

地  址:江苏省 无锡市 新吴区 长江北路269-46号(光大银行旁)

电  话:0371-58610011

联系人:仇伟

促销活动

110㎡简美式的家,温暖又安心,给你满满安全感!

内容提示:简美风格是美式古典 风格的延续,整体空间的搭配常能给人舒适、温和的感觉,所传达的自在感和氛围感,构成了美式休闲、自由不羁的浪漫情调。

生活节奏越来越快的当下,常常忽略了家人与朋友,当情感失去了寄托,唯有家,才能重新唤起我们对美好的渴望。


家是温馨的港湾,更是每个人心中的一方净土, 描摹了无数次家的模样,发现温暖又厚重的简美风,给的了我无与伦比的安全感。


简美风格是美式古典 风格的延续,整体空间的搭配常能给人舒适、温和的感觉,所传达的自在感和氛围感,构成了美式休闲、自由不羁的浪漫情调。


案例赏析

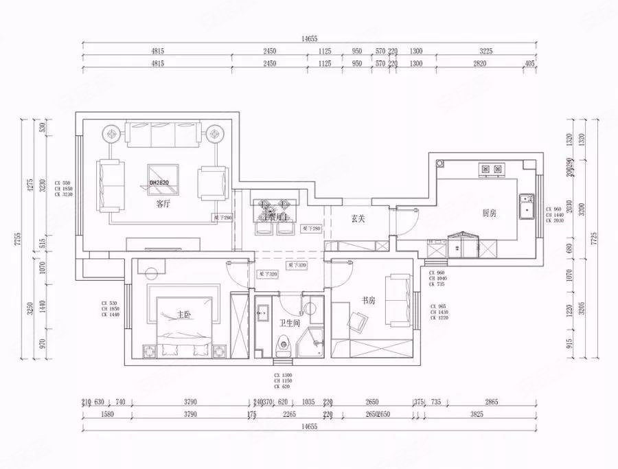
▲平面布局图


简美风的家,没有过多复杂的空间布局,每处都格外的干净利落。

纯净的白搭配温暖的原木色,勾勒出家的温度,到顶的玄关柜,让打扫不再扰人,设计体贴又舒心。


客厅墙面整体是浅黄色乳胶漆,简单的石膏线吊顶,沙发和电视背景墙有一些造型,都是很简单的美式风格造型。


3+1+1的组合沙发组合,米色好灰色布艺,搭配深颜色的电视柜,客厅看起来简单大方。


餐厅餐桌椅也是米色搭配深木色的,一侧餐椅巧妙的利用了户型凹陷结构,做成了收纳柜式椅子,既美观大方又增加了收纳空间。


U型的厨房布局,最是人性化,深色的橱柜、浅黄色墙面砖、白色的操作台面,看起来干净而整洁。


主卧风格安静沉稳,铜色吊灯的点缀提升空间质感,带来时尚的味道。


次卧室平常作为书房使用,但其实沙发暗藏玄机,当家里有客人留宿时,撤掉沙发罩,分分钟变身折叠床,简直不要太方便~


还想了解哪种风格家装,

就请关注速美超级家小编吧!

智慧生活,从家装开始~


手机版

小程序

公众号