欢迎来到武汉装一网!| 登录免费注册 触屏版
您的位置:装一网>武汉站>武汉江南美装饰>促销活动>90m²旧房重生 || 兼顾收纳和整洁的秘密,在这里!

www.zxdyw.com/shop/13636/

地址:湖北省 武汉市 武昌区 徐家棚水岸国际商业街K3栋

在线报价在线预约

  • 一居室
  • 二居室
  • 三居室
  • 四居室
  • 复式
  • 别墅
  • 其他

联系我们

武汉江南美装饰设计工程有限公司

地  址:湖北省 武汉市 武昌区 徐家棚水岸国际商业街K3栋

电  话:0371-58610011

联系人:徐经理

促销活动

90m²旧房重生 || 兼顾收纳和整洁的秘密,在这里!

内容提示:这是一套旧房翻新,原本的户型也是很不错的,除了卧室那的那面墙上,门太多!业主的要求也很简单:1、改变卧室门的方向;2、在保证收纳足够的情况下,还要保证空间的干净整洁!
 

人生如旅途,我们一边再见,一边遇见!


这是一套旧房翻新,原本的户型也是很不错的,除了卧室那的那面墙上,门太多!

业主的要求也很简单:1、改变卧室门的方向;2、在保证收纳足够的情况下,还要保证空间的干净整洁!

原 始 户 型


户型还算比较方正,客厅的采光主要来源于厨房,把两个房间门的方向调整了方向。

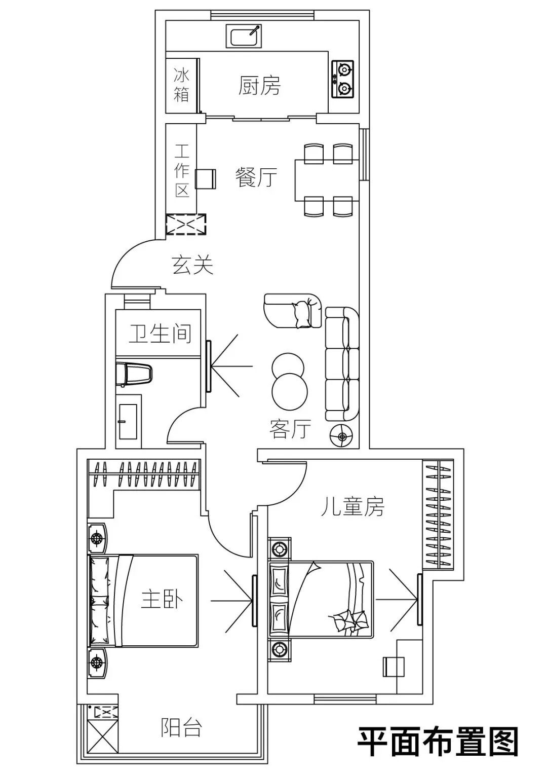
平 面 布 置 图


• U型的厨房,可以让橱柜面积最大化

• 餐厅边是餐桌,一边做成长形工作区

• 玄关左手边可做成到顶的玄关柜

• 卫生间的一字型淋浴房

• 主卧阳台放洗烘一体机,也是晾晒区

玄  关


进门左手边做成了到顶的玄关,即保证了足够了储物,也能把餐厅处的办公区隔离开来。


抖音上网红的旋转鞋柜。

客  餐  厅


原本两个卧室的门都对着客厅,休息和隐私性都略差,且两条动线都穿过客厅,放沙发和茶几都碍事。


改变卧室门的方向之后,两条动线并为一条,客厅变宽敞了,也能有一整面的墙来安排黑板墙


由于客厅采光略差,照明就采用的无主灯设计,让客厅各个区域都尽可能保持有光源能照射到。


厨房有一整面的窗户,为了尽可能增强客餐厅的采光,厨房门采用了细边框的玻璃门。


餐厅另一边做成了细长型的书桌,偶尔的加班也可以在家完成,晚上也不会打扰到家人的休息。

厨  房


U字形的厨房,让厨房的操作空间和储物都够够的。


双开门的冰箱刚好够尺寸,让厨房看着就是一个整体。


浅灰色橱柜搭配白色台面,地面搭配小花砖,清新高级的质感立马出来了。

卫  生  间


卫生间做了干湿分离,里面的淋浴房足够大,也方便给孩子洗澡,浴室柜和地面都保持与厨房一个气质,浅灰色的浴室柜搭配清新个小花砖,卫生间也变得可爱多了。

 





 

主  卧


为了改变次卧门的方向,借用了一点主卧的空间,进门右手边凹进去的空间,正好做成L型的衣柜,增加收纳空间。


主卧的阳台既是洗衣区,也是晾晒区,从阳台到卧室都采用大面积的素色,用黑色、灰色做点缀,让卧室也显的干净整洁。

小  孩  房


次卧是宝贝女儿的房间,虽然现在还蛮小,但是喜欢的玩偶和属于自己的小世界都已经准备好了。


门后砌的轻体墙,内凹了一点,刚好做个壁龛。


房间里原本衣柜的位子就是内凹的,关上柜门,刚好跟墙面是一个整体,嵌入式的衣柜让房间的每个面都是平的,也显的空间更大了。

整体的改动不是很大,但是也给未来留下了更大的可能性。


//

未来可期

//


——  THE END  ——


江南美装饰  ●  11周年庆  ●  把梦想带回家

8大辅料工艺升级

3万全房家具免费送

新房装修/旧房翻新/精装房改造

优惠大到想不到!

发送短信“姓名+小区+面积”至

13437171829获得详细报价并且装修立减5000元

(只有找我才有的福利哦)



手机版

小程序

公众号