欢迎来到大同装一网!| 登录免费注册 触屏版
您的位置:装一网>大同站>祥然装饰>促销活动>【案例分享】200平米后现代风格

www.zxdyw.com/shop/14984/

地址:山西省 大同市 城区 大同市

在线报价在线预约

  • 一居室
  • 二居室
  • 三居室
  • 四居室
  • 复式
  • 别墅
  • 其他

联系我们

大同市祥然装饰有限公司

地  址:山西省 大同市 城区 大同市

电  话:0371-58610011

联系人:张婷婷

促销活动

【案例分享】200平米后现代风格

内容提示:山西美尔居装饰,新引进VR系统,让您带上眼镜,在公司就可以体验房子入住后的效果。甚至可以开关门、移动家具位置、开开关、电视等等。体验热线:17335026242.

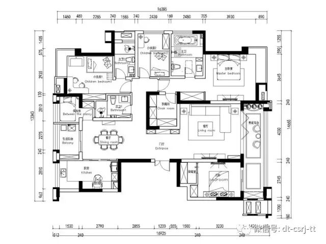
【客户】赵先生

【面积】200平米

【装修风格】后现代风格

【设计师】张婷婷

【联系电话】17335026242

业主是一对不到30岁的夫妻,从事艺术工作,充满后现代的设计感,业主对方案十分的满意。

业主楼层在21楼,采光好,所以整体色彩虽然偏深,但是后期居住效果还是很不错的哦。

山西美尔居装饰,新引进VR系统,让您带上眼镜,在公司就可以体验房子入住后的效果。甚至可以开关门、移动家具位置、开开关、电视等等。

体验热线:17335026242.



手机版

小程序

公众号