所在楼盘:滇池福苑
装修风格:新中式
装修户型:跃层
面积:200㎡
装修预算:20万元
装修套餐:全包
感觉:温暖
效果图名称:新中式200平米跃层温暖装修效果图
设计理念:
此案例位于昆明市滇池路福苑小区,业主是位40多岁女客户,对生活比较有品位。户型比较方正,中空过于浪费,所以钢架搭出作为一个休闲平台。敞开式的书房体现出业主的品位及文化内涵
新中式温暖客厅装修效果图
背景墙采用皮革软包温馨舒适,以简洁的氛围衬托出主人简单的生活态度,摒弃了无谓、繁复的造型。体现出空间本质的美感。
新中式温暖餐厅装修效果图
餐厅旁边作为酒柜实用大气,厨房与客厅的半开放式设计把居室空间打通,扩大了视觉的感受范围。
新中式温暖客厅侧面装修效果图
沙发下面采用灰镜饰面不会显得压抑,设计师力求色彩与材质和谐完美,将现代经典家居与饰品点缀其间,使家鲜活起来,并且具有内敛的生活情境。
新中式温暖书房装修效果图
过道楼梯间采用仿古砖加工作为造型,让空间除了有自然质感以外,可以创造出优雅又朴素的空间情境!
新中式温暖书房装修效果图
二楼书房作为敞开式,书柜大气儿文雅。在注重装饰和美观的同时也有着传承传统的意义。


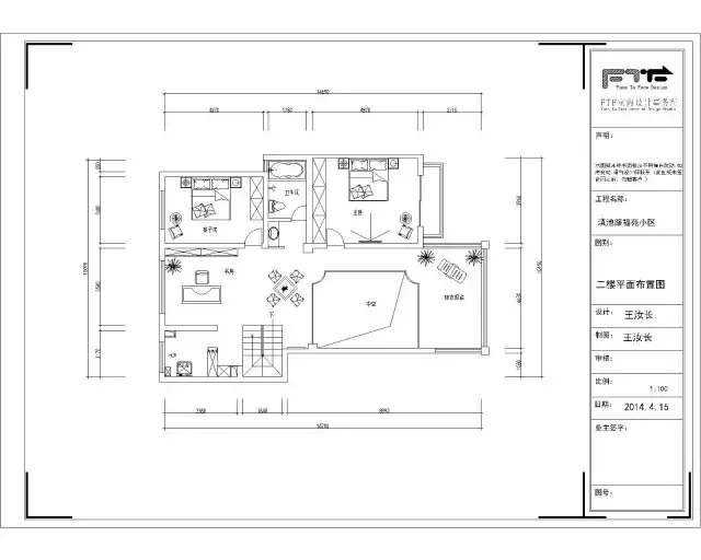
户型图
这样的装修你喜欢吗?关注下面装修其实很轻松!
★文章顶部点击【关注】我们,每天分享有价值的资讯
★如有房子装修加Q:878616286 或电话联系:18487143378(刘先生)免费上门量房做预算和方案,满意后再定装修
★快速报价:http://m.yihaojiaju.com/km/baojia/?from=zmt_liuruixin