欢迎来到汕头装一网!| 登录免费注册 触屏版
您的位置:装一网>汕头站>汕头华浔品味装饰>促销活动>128㎡轻松舒适北欧风,用一间房来做衣帽间,真土豪!

www.zxdyw.com/shop/16164/

地址:广东省 汕头市 龙湖区 金砂东路星湖丽景大厦108号铺

在线报价在线预约

  • 一居室
  • 二居室
  • 三居室
  • 四居室
  • 复式
  • 别墅
  • 其他

联系我们

广东华浔品味装饰集团中山有限公司汕头分公司

地  址:广东省 汕头市 龙湖区 金砂东路星湖丽景大厦108号铺

电  话:0371-58610011

联系人:夏经理

促销活动

128㎡轻松舒适北欧风,用一间房来做衣帽间,真土豪!

内容提示: 本案是一套面积为128平米的舒适北欧风格设计,整体给人简素大方的直观感受,客厅、餐厅和卧室的装饰画虽素材不一,但格调一致,不同空间却能联系在一起。还有很多的细节设计都值得学习借鉴,一起来看看吧!

        本案是一套面积为128平米的舒适北欧风格设计,整体给人简素大方的直观感受,客厅、餐厅和卧室的装饰画虽素材不一,但格调一致,不同空间却能联系在一起。还有很多的细节设计都值得学习借鉴,一起来看看吧!


图   赏


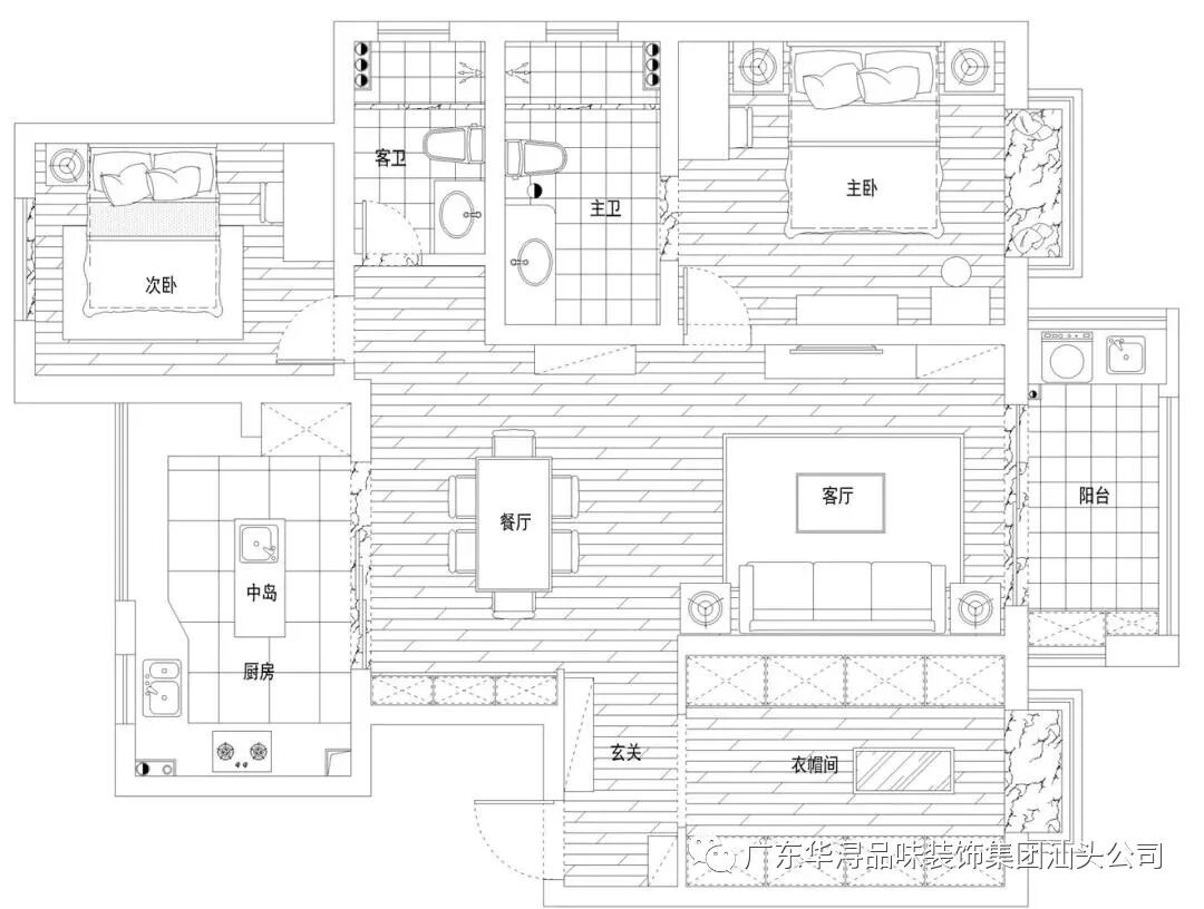
▲平面布局图


|  玄  关  |



     进门放置了一个换鞋凳,还能收纳几双平时常穿的鞋子。


|  客  厅  |



     客厅是北欧经典的搭配,白色为基色,简洁大方,搭配优雅舒适的灰色布艺沙发,原木色茶几和电视柜,增添了家的温馨感。



      沙发背后的复古装饰画,同时还带有一些少数民族的特色。


|  餐   厅  |



      餐桌左侧墙面是一个玻璃的动漫展示柜,心爱之物有了安放之处,也成为餐厅最有个性的一面墙。



      禅意极简的实木餐桌椅,结合顶上四盏吊灯,呈现出一个优雅自然的空间感。


|  厨    房  |



       宽敞的厨房空间布置了一个中岛台,用于备餐,或是成为两个早餐的吧台,实用又惬意。



        配合墙面丰富的收纳,锅碗瓢盆还有各式餐具也有了好归宿。


|  卧    室  |



       卧室自然简约,原木家具结合灰色的布艺,温馨舒适。飘窗上的绿植为卧室增添了一些自然的活力。



     床尾是梳妆台和斗柜,满足了收纳需求,也满足了女主人的爱美心理。


|  衣   帽   间  |



      玄关旁的衣帽间是搁板+挂衣杆+鞋柜的配合,以两席素色窗帘作为隔断,映入眼帘的井井有条显得格外的方便有序。这样的衣帽间,小编也好想要一间。


|  阳    台  |



       以百叶帘为帘,摆上一套休闲桌椅,非常简单而又惬意的小阳台。



       另一侧则打造成了洗衣区,台盆和收纳柜的设计都是很实用的。

公司地址:汕头市龙湖区金砂东路161号星湖丽景大厦1栋108号商铺(帝豪酒店斜对面)

                汕头市澄海区玉亭路与玉潭路交界处中冠明珠1栋3号商铺

公司网址:http://st.hxdec.com

公司电话:0754-82533999     13727693399

手机版

小程序

公众号