欢迎来到晋城装一网!| 登录免费注册 触屏版
您的位置:装一网>晋城站>德意之家装饰>促销活动>【德意心故事】客户有“三多”,看德意设计师巧化解

www.zxdyw.com/shop/16432/

地址:山西省 晋城市 晋城市月星商业广场A6栋德意之家装饰

在线报价在线预约

  • 一居室
  • 二居室
  • 三居室
  • 四居室
  • 复式
  • 别墅
  • 其他

联系我们

德意之家装饰工程有限公司

地  址:山西省 晋城市 晋城市月星商业广场A6栋德意之家装饰

电  话:0371-58610011

联系人:

促销活动

【德意心故事】客户有“三多”,看德意设计师巧化解

内容提示: 随着年根临近,锦旗又添新故事。家住司徒小镇的梁女士为了感谢德意之家的装修团队,特意送来一面锦旗。


微信图片_20201215104630.jpg

     随着年根临近,锦旗又添新故事。家住司徒小镇的梁女士为了感谢德意之家的装修团队,特意送来一面锦旗。


DESIGN用心服务·为爱装修


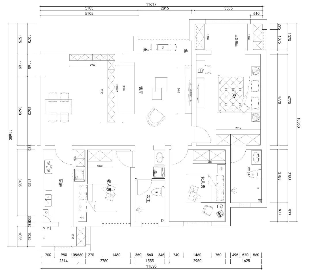
     据小编了解,梁女士是朋友推荐而来,抱着试探的态度来到德意之家看装修。接待她的是文东亮设计师。“我家三代人居住,人口多,东西多,一定要把区域划分做好啊,还有储物功能。”梁女士把自己最担心的两点告诉设计师。

     人口多、东西多、储物柜多,面对客户提出的“三多”难题,德意的设计师是如何解决的呢?详细沟通后,设计师文东亮立刻上门量房,设计图纸,3版平面设计图纸完成后与梁女士进行了二次见面。每一版方案都做了不同的区域规划,最大程度的满足梁女士的需求。

     看到设计师的认真专业,梁女士当即选定了德意装修。后期设计效果图的沟通进行的很顺利,梁女士提出需求与担心,设计师积极调整方案并解答疑虑。

图片     问到设计师文东亮对这个案例的感受时,他说:“功能至上是第一,整个空间做了大量的储物空间,通过合理分区满足三代人的需求,注重各个人群的使用习惯。     比如,客餐厅与厨房的位置动线流畅性,主卧衣柜的摆放,老人房的配色与材质选择等。通过对空间比例的协调,以及局部细节的处理,让它们产生一种彼此呼应的对话关系。”

     5月份来德意看装修,6月份签订德意合同,当月开工。新年来临,正好可以住新家。这是德意速度。

     以客户需求为首要目的,通过设计师的设计,满足家的舒适感,并传递主人的精神生活。这是德意态度。

     德意,在路上。。。

微信图片_20201215112856-.jpg

△客厅


微信图片_20201215112827-.jpg

△女儿房

图片

微信后台留言

姓名丨联系方式丨楼盘丨面积

拨打月星店0356-3057888

或锦尚店0356-3052333

了解更多家装资讯


手机版

小程序

公众号