欢迎来到襄阳装一网!| 登录免费注册 触屏版
您的位置:装一网>襄阳站>美和世家装饰>促销活动>【平安居装饰】恭喜平安居装饰一日喜签三单

www.zxdyw.com/shop/19234/

地址:湖北省 襄阳市 襄州区 车城南路英伦华府7-109门面

在线报价在线预约

  • 一居室
  • 二居室
  • 三居室
  • 四居室
  • 复式
  • 别墅
  • 其他

联系我们

湖北美和世家装饰设计工程有限公司

地  址:湖北省 襄阳市 襄州区 车城南路英伦华府7-109门面

电  话:0371-58610011

联系人:邓云龙

促销活动

【平安居装饰】恭喜平安居装饰一日喜签三单

恭喜工会家属院周女士、老河口水岸新城曹女士、民发世界城赵女士与平安居装饰公司签约,作为平安居人,我们感到无比的荣幸与兴奋!由衷感谢对设计师及公司的信任与支持,今后,我们将以更迅速专业的服务,回报您对我们的信任,同时,我们也将提供更多、更新的家装信息,以服务您及您关心的人。致上我们最诚心的祝贺!


小区:工会家属院

户型:3室2厅 150平

风格:简约

设计师:易俊


设计师易俊与工会家属院周女士签订合同并合影


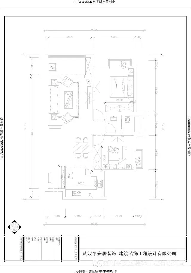
工会家属院平面布置图


小区:老河口水岸新城

户型:4室2厅 169平

风格:简欧式风格

设计师:肖世文


项目经理和工程经理开工并与水岸新城曹女士合影

水岸新城平面布置图


小区:民发世界城浅水湾

户型:2室2厅 95平

风格:简约

设计师:肖世文


设计师肖世文与赵女士签订合同并合影


世界城浅水湾平面布置图


欢迎大家前来参观、来电咨询~~~

我们一定竭尽全力为您打造具有专属感的精美私人生活空间!


即日起,进店平安居装饰咨询就有礼品相送!

活动规则

一:装修八七折起,团购八五折起。


二:关注襄阳平安居装饰工程有限公司(微信号:订阅号-襄阳平安居装饰工程有限公司) 转发此链接到朋友圈,点赞!每个微信号转发此信息十五天, 或者集齐点赞68个!就有价值88元精美礼品相送!


三、进店咨询装修!扫描二维码就送价值88元精美礼品!

(每个微信号评论兑礼不累加,最多限兑一次 。活动截止时间2015年5月30号)


平安居装饰先做人后做事,先装修后付款,套餐更优惠!

襄阳店地址一:樊城区朝阳路泰跃朝阳小区门面 电话:3573777 qq:2502864509

襄阳店地址二:襄州区车城南路冯营车站旁 电话:2867788 qq:211830588

武汉店:江岸区二七路145号 电话:027-82886626

手机版

小程序

公众号