欢迎来到襄阳装一网!| 登录免费注册 触屏版
您的位置:装一网>襄阳站>美和世家装饰>促销活动>恭喜平安居装饰喜签人民广场餐厅店!欢迎大家参观咨询!!

www.zxdyw.com/shop/19234/

地址:湖北省 襄阳市 襄州区 车城南路英伦华府7-109门面

在线报价在线预约

  • 一居室
  • 二居室
  • 三居室
  • 四居室
  • 复式
  • 别墅
  • 其他

联系我们

湖北美和世家装饰设计工程有限公司

地  址:湖北省 襄阳市 襄州区 车城南路英伦华府7-109门面

电  话:0371-58610011

联系人:邓云龙

促销活动

恭喜平安居装饰喜签人民广场餐厅店!欢迎大家参观咨询!!

喜人民广场朱老板与平安居装饰公司签约,作为平安居人,我们感到无比的荣幸与兴奋!由衷感谢对设计师及公司的信任与支持,今后,我们将以更迅速专业的服务,回报您对我们的信任,同时,我们也将提供更多、更新的家装信息,以服务您及您关心的人。致上我们最诚心的祝贺!

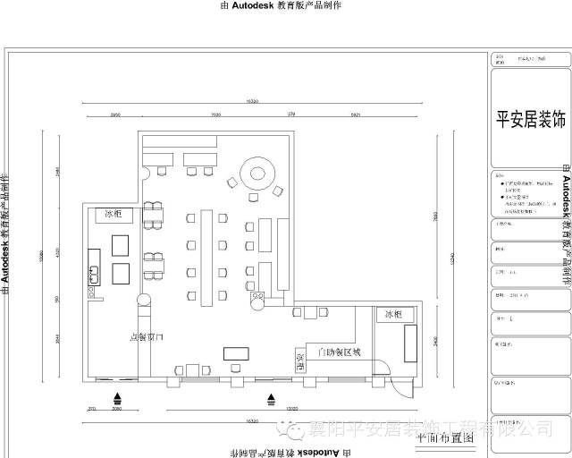
工程:人民广场餐厅店135平

设计师:何金凤


设计师何金凤与朱老板签订装修。

餐厅店门头效果图

餐厅店内部效果图


餐厅店平面布置图


欢迎大家前来参观、来电咨询~~~

我们一定竭尽全力为您打造具有专属感的精美私人生活空间!


五一活动详情

一:装修八七折起,团购八五折起。


二:进店咨询装修!扫描二维码就送有精美礼品相送!


三:关注襄阳平安居装饰工程有限公司(微信号:订阅号-襄阳平安居装饰工程有限公司) 转发此链接到朋友圈,点赞!每个微信号转发此信息十天, 或者集齐点赞68个!就送话费啦!!!!!

(每个微信号评论兑礼不累加,最多限兑一次 。活动截止时间2015年5月30号)

襄阳店地址一:樊城区朝阳路泰跃朝阳小区门面 电话:3573777 qq:2502864509

襄阳店地址二:襄州区车城南路冯营车站旁 电话:2867788 qq:211830588

武汉店:江岸区二七路145号 电话:027-82886626



襄阳平安居装饰公司 只做环保好装修!

1、公司简介:


平安居装饰创建于2007年,在湖北家居产业已形成规模化、专业化、品牌化、集团化、产业化的领先优势 。 平安居集团以“管理降成本,质量求发展”为宗旨, 以平安居品牌为平台, 以“先装修 后付款”模式的家居产业链为主线,立足在湖北高端家居装饰设计与施工、材料和家具及配饰供应、房地产楼盘精装修、商业空间设计等多个方向,对相关产业领域进行深度家居集成和资源优化整合,构建起湖北优质竞争力的装饰产业和品牌梯队,引导行业发展新趋势。

“平安居装饰”融合世界传统文化和国际家居时尚,以大宅大设计的宗旨,有机绿色装修的执着,工程不发包的运营为消费者创造出时尚而具品味的生活方式。

2、襄阳平安居装饰承诺:

一、先做人 后做事;二、先装修 后付款;三、0利息贷款装修;四、材料环保,假一罚十

3、襄阳平安居装饰近景展

平安居装饰前台

平安居装饰大厅环境

襄阳平安居装饰会议室:这里是设计师们尽情抒发各自创意的地方,最多的交流使得最大程度的解决客户所提出的装修要求

襄阳平安居装饰工作区:办公区真的很有秩序,平安居装饰的设计师们各个充满了对工作的无限热情,想不信任平安居装饰都难。

充满设计感的会客厅,简约而不单调的装修风格顿时使人心情舒畅;绿色植被彰显了平安居装饰的环保理念,低调而不失内涵的设计感随处散发,宾至如归的待客之道是平安居装饰的最终目标,来到这里不会压抑你的装修创意,反而会激发你的创意,顶级设计师定会为您打造最适合您的居室空间。


襄阳平安居装饰建材样品展区。为了方便业主们的装修公司,为其节省最宝贵的时间,平安居装饰为业主们配备了样品展区,不同品牌的建材尽收眼底,业主们不用再跑遍全城去选购建材,高效率的解决客户心中全部顾虑,环保建材产品的推荐更多的为客户考虑,为满足业主的环保需求。


平安居装饰先做人后做事,先装修后付款,套餐更优惠!还在等什么拿起您的电话拨打吧!

襄阳店地址一:樊城区朝阳路泰跃朝阳小区门面 电话:3573777 qq:2502864509

襄阳店地址二:襄州区车城南路冯营车站旁 电话:2867788 qq:211830588

武汉店:江岸区二七路145号 电话:027-82886626

手机版

小程序

公众号