欢迎来到苏州装一网!| 登录免费注册 触屏版
您的位置:装一网>苏州站>苏州尚层装饰>促销活动>80后游戏工程师500㎡极简复式大宅,越看越爱

www.zxdyw.com/shop/21173/

地址:江苏省 苏州市 工业园区 苏州市工业园区圆融时代广场平安大厦9楼

在线报价在线预约

  • 一居室
  • 二居室
  • 三居室
  • 四居室
  • 复式
  • 别墅
  • 其他

联系我们

苏州尚层装饰

地  址:江苏省 苏州市 工业园区 苏州市工业园区圆融时代广场平安大厦9楼

电  话:0371-58610011

联系人:

促销活动

80后游戏工程师500㎡极简复式大宅,越看越爱

内容提示:如何慢慢地把一个家构筑成形,每个家的主人都有自己的想法。然而这些方法往往都源自,我们内心深处的价值观念。简约生活不等于奢华或懒惰,也并非强迫自己舍弃心爱之物,它的真意是去探寻我们真实所需。
80后游戏工程师500㎡极简复式大宅,越看越爱

白色空间 精神领地

-让家成为心灵绿洲-

VOGLASS VILLA DC &2020

极简纯粹 | 光影静谧 | 心之居所


..................................................

如何慢慢地把一个家构筑成形,

每个家的主人都有自己的想法。

然而这些方法往往都源自,

我们内心深处的价值观念。

简约生活不等于奢华或懒惰,

也并非强迫自己舍弃心爱之物,

它的真意是去探寻我们真实所需。

80后游戏工程师500㎡极简复式大宅,越看越爱

▲-2F

80后游戏工程师500㎡极简复式大宅,越看越爱

▲-1F

80后游戏工程师500㎡极简复式大宅,越看越爱

▲1F

80后游戏工程师500㎡极简复式大宅,越看越爱

▲2F

80后游戏工程师500㎡极简复式大宅,越看越爱

「泷悦长安」

80后游戏工程师500㎡极简复式大宅,越看越爱

泷悦长安∣极简∣500㎡∣北京∣梁杰

本案位于北京,是一个80后游戏工程师的家,此套作品也荣获尚层别墅装饰第六届红玺杯设计大赛金奖,在设计师梁杰看来,设计的本质是人回归真实空间,所有的出发点都是一切去适应人,而不是需要人去适应某个物件。


他认为,设计是一个不断解决问题的过程,不要用自己的方式给居住者假定很多虚拟的假象及场景,好的设计是人在空间的生活是享受的,不需要刻意地经营和维护。

01

Entrance/玄关

推门而入,黑与白作为空间的主色调,纯净中潜藏无限生机,正是极简美学强调的纯粹意境。


光影作为媒介,模糊空间中的柔性边界,如微风轻拂,于此偷得浮生半日闲。

80后游戏工程师500㎡极简复式大宅,越看越爱

素白的墙面与斑驳的格栅光影,在空间中呈现不同层次的纹路与美感,时间和空间在此相互依存,表达着事物的演化秩序。

80后游戏工程师500㎡极简复式大宅,越看越爱

空间的线条衔接顺滑,设计在简洁明快的空间气质中,置入黄铜色金属衣帽架,以唯美的艺术语言,打破过往沉闷的空间体验。

80后游戏工程师500㎡极简复式大宅,越看越爱

远远看去,时间放慢,生活邂美学,艺术融于生活,空间一切设计都化繁为简,简约到深处慢慢产生一种情愫。

02

Entrance/餐厅

与常规住宅布局不同的是,设计师摒弃掉传统客厅设置,将一层区域全部预留给用餐空间。这份大胆的“留白”,正是屋主人生活方式的最好体现。

80后游戏工程师500㎡极简复式大宅,越看越爱

空间一二层的连接处刻意显露出阶梯形成的类似锯齿图形,为白净的空间介入一层强烈的戏剧感与节奏性。

80后游戏工程师500㎡极简复式大宅,越看越爱
80后游戏工程师500㎡极简复式大宅,越看越爱

光影、虚实、律动、形态,在看似简洁的空间内达至极佳的平衡与和谐,触动浏览者的内心。

80后游戏工程师500㎡极简复式大宅,越看越爱

阳光照耀下,朴质的木地板、素色墙面、清透的落地窗......无一不呈现出气质不凡的品味。

03

Entrance/西厨

开放式的西厨空间,与客厅、餐厅相连,可以享受充足的阳光气息,开阔的岛台是精致生活的美好体现。

80后游戏工程师500㎡极简复式大宅,越看越爱
80后游戏工程师500㎡极简复式大宅,越看越爱
80后游戏工程师500㎡极简复式大宅,越看越爱

白色是一种极好的色彩,将光与影的展示效果达到最大化,营造出现代朴质的自然反朴,满足艺术审美的极致追求。

80后游戏工程师500㎡极简复式大宅,越看越爱
80后游戏工程师500㎡极简复式大宅,越看越爱

整个空间清晰明亮素雅,柜体造形的延伸、交迭以及墙面适度的留白,均凝聚着空间的形与神,静谧的空间里流淌着浓浓的时尚气息与艺术氛围。

80后游戏工程师500㎡极简复式大宅,越看越爱
80后游戏工程师500㎡极简复式大宅,越看越爱

音乐评论家卡米尔·毛克莱认为,“光在印象主义者画作中的运用有如主题在音乐里交响式延伸一样。”


光线的存在重构了物体一成不变的“固有色",相互依存的黑白灰变格成模糊的画面印象,重述一个“光与色”的羁绊故事。

04

Entrance/卧室

延续空间的整体格调,从色彩、材质到灯光,主卫运用了大量深色元素。

80后游戏工程师500㎡极简复式大宅,越看越爱
80后游戏工程师500㎡极简复式大宅,越看越爱

参差格栅排列的墙壁一明一暗,以顶部射灯作为唯一的修饰,不论是墙的层次感还是纯白色浴缸,都把光影和现代艺术的魅力发挥到极致。

80后游戏工程师500㎡极简复式大宅,越看越爱
80后游戏工程师500㎡极简复式大宅,越看越爱

转身进入主人休息区,乐章节奏放缓,呢喃中吟唱着深沉而静谧的私人时光。白色乳胶漆与灰色水磨石在暖咖色灯光的映衬下,散发出硬朗又迷人的质感,城市喧嚣,但生活的幸福感只属于此刻。

05

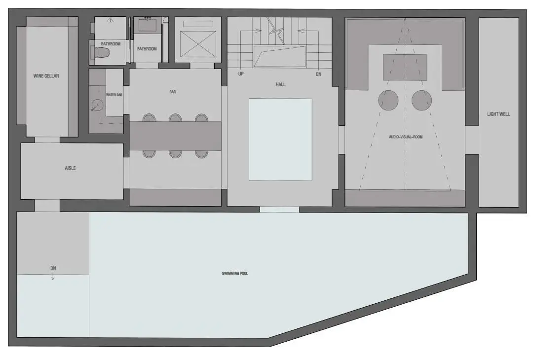
Entrance/地下一层游泳池

如何建立起人与空间的关系?梁杰在地下一层空间建立起主人的“专属性”。

80后游戏工程师500㎡极简复式大宅,越看越爱
80后游戏工程师500㎡极简复式大宅,越看越爱

泳池氛围如同海底隧道般安静神秘,精心挑选的马赛克凸显肌理,与此同时,在泳池除湿、防冷凝水等功能细节上为生活品质用心考虑。

06

Entrance/地下二层健身区

负二层健身区在细节处更为大胆,满幅卡通画面瞬间点燃身体动能的化学反应,在顶面的软膜天花搭配下,仿佛置身于空间站中,随时开启一场燃力十足的旅程。

80后游戏工程师500㎡极简复式大宅,越看越爱
80后游戏工程师500㎡极简复式大宅,越看越爱

地下两层的中庭空间,被一处视野通透的玻璃连接着,带着几分勇士精神,展开不被定义的生活冒险。

80后游戏工程师500㎡极简复式大宅,越看越爱

大面积壁画充分折射出屋主人的个性特点,年轻自我,不拘一格。除去整体贯以始终的简洁线条与纯色基调,娱乐空间在细节处被注入了许多活力。这些活力元素巧妙地穿插在冷静的空间结构中,跳脱却不张扬,与环境完美融合。

80后游戏工程师500㎡极简复式大宅,越看越爱

所有相遇都有原因,极富个性的年轻业主与实现个性的设计师,需求与创意,对生命最本质的探索和对生活最纯粹的追求……恰逢适宜,出现在该出现的时刻,最终成就这一精品。


生活的“有无”,源于内心所追求的处世态度。回归本初,还原纯粹,在无我之境中追寻空间与自我的真实状态,领悟“无声胜有声”的生活真谛。

手机版

小程序

公众号