欢迎来到合肥装一网!| 登录免费注册 触屏版
您的位置:装一网>合肥站>紫苹果国际设计>促销活动>【紫>原创】长安天玺298㎡优雅简欧设计案例赏析

www.zxdyw.com/shop/21229/

地址:安徽省 合肥市 蜀山区 华地金融中心A栋19楼

在线报价在线预约

  • 一居室
  • 二居室
  • 三居室
  • 四居室
  • 复式
  • 别墅
  • 其他

联系我们

上海紫苹果装饰有限公司合肥分公司

地  址:安徽省 合肥市 蜀山区 华地金融中心A栋19楼

电  话:0371-58610011

联系人:亚亚

促销活动

【紫>原创】长安天玺298㎡优雅简欧设计案例赏析

内容提示:本案业主是一位年轻有为的成功人士,安静沉稳的性格,不喜欢浮夸的设计与装饰,偏爱明亮、简约时尚有韵味,所以设计师根据业主与其爱人的想法把风格定位为简欧,简欧风格从简单到繁杂、从整体到局部,精雕细琢,给人一丝不苟的印象。成熟的人,都有其鲜明的个性和特点,这就是其风格所在,装修也一样,经过多年的发展和历练,各种装修手法自成一体,风格呈多样化。简欧也是现代风范的演化,其风格有一定的混杂。正是这个特点得到越来越多人的喜爱。

设计师:孙林峰

项目介绍

项目名称:长安天玺

户型面积:298㎡

户型结构:复式

设计风格:简欧风格

家,是心灵的栖息地,让你放下包袱做回最真的自己;家,是温馨的港湾,与家人分享喜悦与忧愁。

本案业主是一位年轻有为的成功人士,安静沉稳的性格,不喜欢浮夸的设计与装饰,偏爱明亮、简约时尚有韵味,所以设计师根据业主与其爱人的想法把风格定位为简欧,简欧风格从简单到繁杂、从整体到局部,精雕细琢,给人一丝不苟的印象。成熟的人,都有其鲜明的个性和特点,这就是其风格所在,装修也一样,经过多年的发展和历练,各种装修手法自成一体,风格呈多样化。简欧也是现代风范的演化,其风格有一定的混杂。正是这个特点得到越来越多人的喜爱。

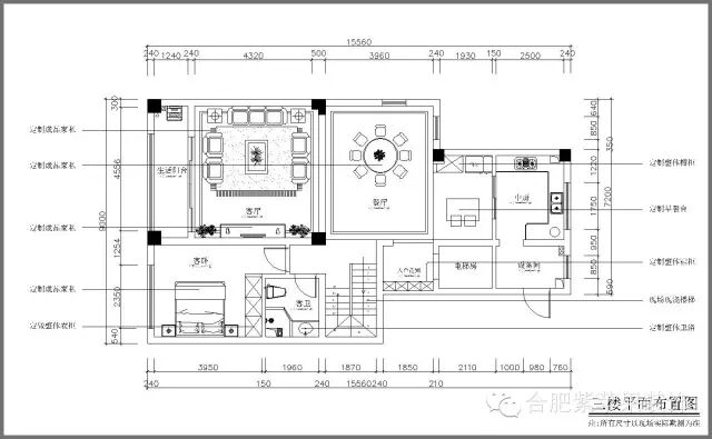
客厅设计效果图 本案户型是复式楼,三楼为客厅与餐厅,主要以会客休闲为主,墙面装饰均用环保材料。沙发背景墙是女主人的最爱,恬静优雅。电视背景墙采用石材,硬朗的气质与沙发背景墙的柔软相呼应。


餐厅设计效果图 圆形吊顶搭配圆形餐桌,墙面装饰为餐厅增添一抹亮眼的色彩,厨房边上是一个早餐台,享受温馨的早餐时光。

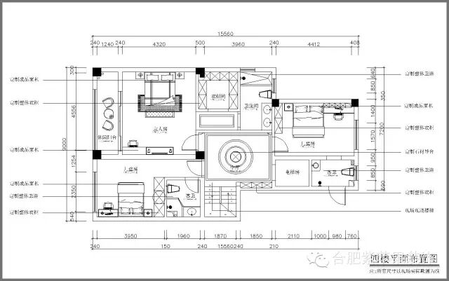
四楼过度空间设计 四楼主要是主卧与小孩房,每个房间都有独立卫生间,方便使用。


家就应该轻松、简单,具有包容性,设计师用完美的设计以及精益求精的细节处理,为业主打造舒适温馨的家居空间。

欢迎各位前来工地参观哦!同时我们还准备好了全部的户型设计解析方案等你来鉴赏!预约参观工地、与设计师面谈,请拨打18656072575小编微信/QQ:1181339268联系小编哦!

手机版

小程序

公众号