欢迎来到包头装一网!| 登录免费注册 触屏版
您的位置:装一网>包头站>包头海天尚流>促销活动>【海天整装家居体验馆】设计师:李凯 | 案例作品:136㎡维多利华府-现代中式

www.zxdyw.com/shop/2341/

地址:内蒙古自治区 包头市 昆都仑区 友谊大街

在线报价在线预约

  • 一居室
  • 二居室
  • 三居室
  • 四居室
  • 复式
  • 别墅
  • 其他

联系我们

包头海天尚流装饰工程有限责任公司

地  址:内蒙古自治区 包头市 昆都仑区 友谊大街

电  话:0371-58610011

联系人:海天装饰

促销活动

【海天整装家居体验馆】设计师:李凯 | 案例作品:136㎡维多利华府-现代中式

内容提示:包头市海天印象装饰工程有限公司成立于2003年,是包头百姓认可的第一装饰品牌,长期专注于为社会精英阶层提供一站式住宅解决方案。经过十三年的发展,已形成了涵盖多个住宅装饰设计、工程施工、主材代理、配套体系完善的全产业链经营模式。


——设计师:李凯

小区:维多利华府

关键词:136㎡  现代中式   灯光   木质

我们的设计从“家”的视角出发,设计师坦言“所谓美的生活,对于每个人来说,肯定会因为个人喜欢、职业等有不同的呈现,但是美的生活一定是可以带来愉悦感和幸福感的”。


设计师

设计师:李凯

从业8年,现任海天整装家居体验馆设计师。毕业于内蒙古美术学院;清华大学美术学院进修。北京居然之家乐屋装饰有限公司;北京逸道空间。

设计理念:设计师包括功能、材料、工艺、造价、审美形式、艺术风格、精神意念等各种因素综合的制作。设计是一种追求完美的生活态度,设计是一种追求品位的生活概念。

主要作品小区名称:北京绿城百合,农展南里,恋日家园,阳光波尔多,御翠尚府,万郡大都城,景天花园,森茂华庭,维多利华府,锦尚国际,正翔国际,三江尊园等。


海天整装家居体验馆

设计项目:维多利华府

首席设计师:李凯

风格定位:现代中式

施工面积:136㎡

施工单位:海天国际

设计说明:中国文化和禅意在空间中营造的氛围渲染,中式在追求的精神内核和多样性时,所怀抱的水墨留白而感动。 一种看似“简净”的设计,含蓄里带着屋主自我主张的那种对人文的理解和态度。



「 原始结构图 」



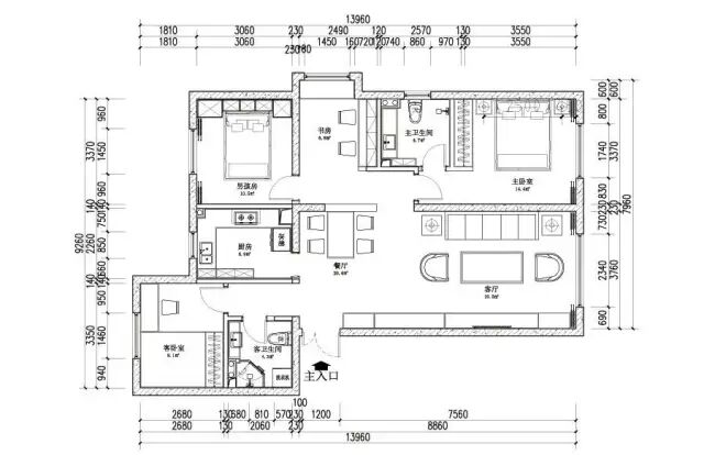
「 平面布局图 



「 客厅 」



「 餐厅 」



「 书房 」



「 卧室 」



手机版

小程序

公众号