美的家装饰设计师陈晓亮、李洁、石伟凭借一套《龙湖源著》案例作品展现了其超凡的设计创造力、设计创新水平、项目影响力、综合功能等,一举夺得“2013-2014年度国际环艺创新设计作品大赛住宅空间方案类二等奖”。
一、获奖作品赏析
【获奖作品】龙湖源著
【作品风格】现代简约
【设计师描述】
●简约主现代主义。简约风格的特色是将设计的元素、色彩、照明、原材料简化到最少的程度,但对色彩、材料的质感要求很高。因此,简约的空间设计通常非常含蓄,往往能达到以少胜多、以简胜繁的效果.
●以简洁的表现形式来满足人们对空间环境那种感性的、本能的和理性的需求,这是当今国际社会流行的设计风格——简洁明快的简约主义。而现代人快节奏、高频率、满负荷,已让人到了无可复加的接受地步。人们在这日趋繁忙的生活中,渴望得到一种能彻底放松、以简洁和纯净来调节转换精神的空间,这是人们在互补意识支配下,所产生的亟欲摆脱繁琐、复杂、追求简单和自然的心理。
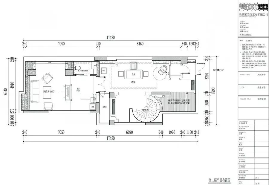
【户型分析】负一层
【户型分析】一层
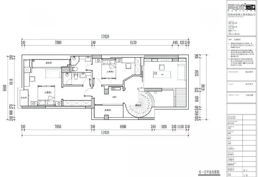
【户型分析】负二层
【方案设计】
【获奖作品效果图】
二、设计师简介
【设计师】陈晓亮
【设计师职称】导师设计师
【从业年限】8年
【设计理念】设计就是为客户提升更高的生活品质
【设计师】李洁
【设计师职称】首席设计师
【从业年限】7年
【设计理念】以人为本,在满足功能的前提下,寻求艺术与个性的升华。
【设计师】石伟
【设计师职称】导师设计师
【从业年限】7年
【设计理念】更好的处理物与人的关系,在有限的空间中满足人们对物质和精神的追求,创造功能性与审美性为一体的室内环境。
三人强强联手,构筑了美的家装饰最强设计师组合之一。
三、获奖设计师其他作品
【案例作品名】复地花屿城
【案例风格】新古典
【案例作品名称】和弘四季
【案例风格】美式





