欢迎来到重庆装一网!| 登录免费注册 触屏版
您的位置:装一网>重庆站>重庆美的家装饰>促销活动>重庆装修公司全面解决方案-户型改造分析

www.zxdyw.com/shop/27600/

地址:重庆市 重庆市 江北区 北滨路金源世纪广场(灯巢)

在线报价在线预约

  • 一居室
  • 二居室
  • 三居室
  • 四居室
  • 复式
  • 别墅
  • 其他

联系我们

重庆美的家装饰工程有限公司

地  址:重庆市 重庆市 江北区 北滨路金源世纪广场(灯巢)

电  话:0371-58610011

联系人:程经理

促销活动

重庆装修公司全面解决方案-户型改造分析

内容提示:今日重庆装修公司重庆美的家装饰小编为业主分享一个本公司特有全面解决方案,独体的全方位户型分解,全面指导装修设计。



今日重庆装修公司重庆美的家装饰小编为业主分享一个本公司特有全面解决方案,独体的全方位户型分解,全面指导装修设计。

最便捷的装修办理流程

城立方装修流程



最专业的专属设计师


城立方专属设计团队


关于设计

B户型设计

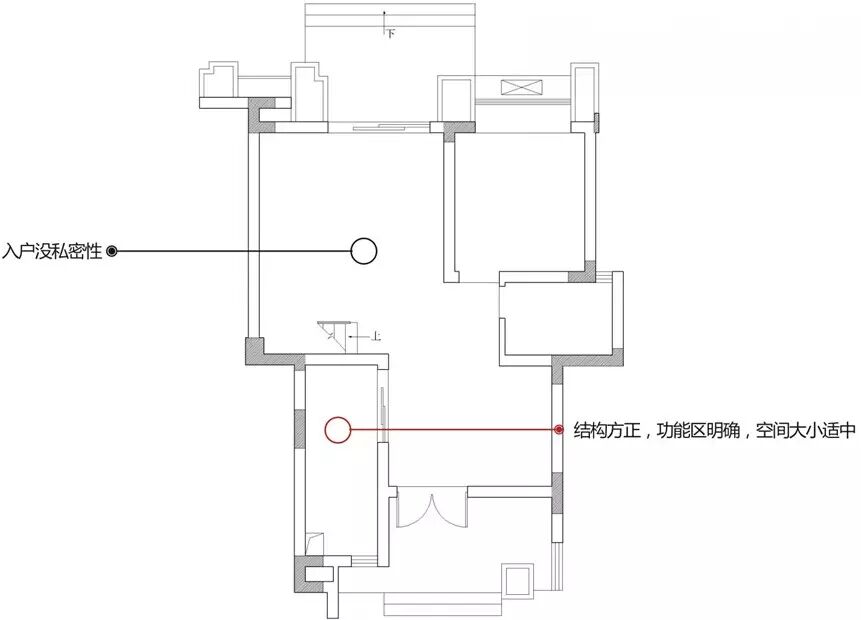
户型解析:一楼

优点:户型方正采光通好,该户型风格建议现代或者美式田园风格混搭。

缺点:入户即见餐厅,缺乏私密性,客厅沙发墙过短。

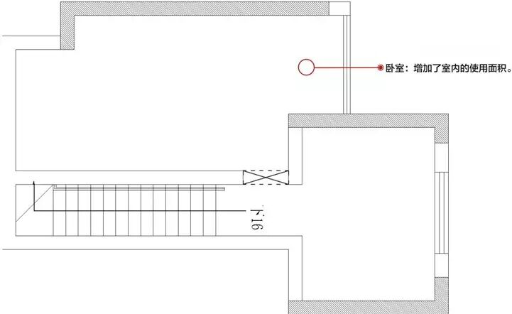
结构改造:一楼

户型改造说明:

二楼过道打通,增加收纳空间,扩大卫生间面积,干湿分区。

空间功能分析:一楼

户型解析:二楼

优点:户型方正采光通好,该户型风格建议现代或者美式田园风格混搭。

缺点:入户即见餐厅,缺乏私密性,客厅沙发墙过短。

功能分析:二楼


参考效果

乡村田园混搭

本案在设计手法上,突出了文化人温文尔雅、平和理性的特点,在设计风格上,以美式乡村田园风格为主,整个居住环境充满了罗曼蒂克色彩,田园式风格的最大特点是朴实

亲切、实在,所以成了人们最理想的生活方式。在客厅的的设计上,电视墙采用了田园典型的拱形,镶贴仿古砖,造型看似简单粗狂,但给人十分亲切,墙面纹路更自然朴素,与整个环境融为一体。

局部空间展示

乡村混搭│客厅

简欧│餐厅



F户型设计

户型解析

优点:户型方正,采光通风良好

缺点部分空间较小需改造

结构改造

户型改造说明:

整体改动相对较小。主要针对厨房、入户等比较容易使用到的空间来进行了局部改造。

空间功能分析

参考效果

新古典

新古典的主要特点是“形散神聚”,用现代的手法和材质还原古典气质,具备了古典与现代的双重审美效果,完美的结合也让人们在享受物质文明的同时得到了精神上的慰藉。

局部空间展示

新古典│客厅

新古典│卧室

新古典│餐厅

F顶跃户型设计

户型解析:一楼

优点:户型方正,厨房操作台多,大阳台

缺点一楼没有卫生间,主卧偏小

结构改造:一楼

户型改造说明:

把可变空间墙体去掉,使之可用面积增大,空间利用价值提高。

空间功能分析

户型解析:二楼

优点:户型方正,厨房操作台多,大阳台

缺点一楼没有卫生间,主卧偏小

空间功能分析

参考效果

中式

中式讲究对称性,具有中国传统的书画背景墙,搭配中式花格,电视背景墙采用墙纸及木雕花,提升空间通透感,前后相对称。石膏吊顶上的花格灯带,使空间具有延伸感,顶面简单,整体感觉舒服。

局部空间展示

中式│客厅

中式│门厅

底跃户型设计

户型解析:一楼

优点:户型方正,采光通风好

缺点卫生间厨房较小

结构改造:一楼

户型改造说明:

把可变空间墙体去掉,使之可用面积增大,空间利用价值提高。

空间功能分析

户型解析:二楼

优点:户型方正,采光通风好

缺点卫生间厨房较小

空间功能分析

参考效果

现代

本案力求在功能上体现方便实用,在风格上体现出变化,在感受中寻求舒适。如今浮华社会,五花八门的装饰风格不在少数,对于家来说,在装饰与功能中寻求平衡和谐才是最重要的。

局部空间展示

现代│客厅


城立方特别工艺

城立方特别工程

城立方工程保护标准


城立方特别工艺标准

全面解决方案

是美的家装饰为示范样板小区专属量身定制的装修方案,建立成为一种书面形式的标准。让业主一目了然(设计、工程、管理、服务团队书面承诺)按标准执行,精确到每一个人,每一件事情。实实在在的将服务标准呈现在业主面前,为客户提供个性化设计、超高标准施工、超高标准服务。是美的家装饰为示范样板小区专属量身定制的装修方案,建立成为一种书面形式的标准。让业主一目了然(设计、工程、管理、服务团队书面承诺)按标准执行,精确到每一个人,每一件事情。实实在在的将服务标准呈现在业主面前,为客户提供个性化设计、超高标准施工、超高标准服务。

重庆装饰公司重庆美的家装饰工程有限公司


手机版

小程序

公众号