欢迎来到西安装一网!| 登录免费注册 触屏版
您的位置:装一网>西安站>西安今朝装饰>促销活动>八水上筑丨236㎡现代风大平层,气质跟品质齐聚的效果,看

18821678672 黄轩

地址:陕西省 西安市 陕西西安市莲湖区劳动南路19号

在线报价在线预约

  • 一居室
  • 二居室
  • 三居室
  • 四居室
  • 复式
  • 别墅
  • 其他

联系我们

北京今朝装饰集团西安分公司

地  址:陕西省 西安市 陕西西安市莲湖区劳动南路19号

电  话:18821678672

联系人:黄轩

促销活动

八水上筑丨236㎡现代风大平层,气质跟品质齐聚的效果,看

内容提示:Hello,又到了更新文章的日子了,今天给大家介绍的是一套位于西安北二环未央路的毛坯房装修方案,【八水上筑】小区, 在这么一个看似有年头的老小区里竟然有一套藏了10年之久的毛坯房,房子现在正在施工中,附近需要看工地的朋友可随时过去!

Hello,又到了更新文章的日子了,今天给大家介绍的是一套位于西安北二环未央路的毛坯房装修方案,【八水上筑】小区, 在这么一个看似有年头的老小区里竟然有一套藏了10年之久的毛坯房,房子现在正在施工中,附近需要看工地的朋友可随时过去!






 ◢ 

 项  目  介  绍 


地址 | Address:西安 • 八水上筑 • 毛坯房装修

面积 | Square Meters:236㎡

户型 | Apartment :五室两厅两卫

风格|Style:现代简约

硬改|Construction:西安今朝装饰

设计丨Designer:郭文静


图片



 ◢ 

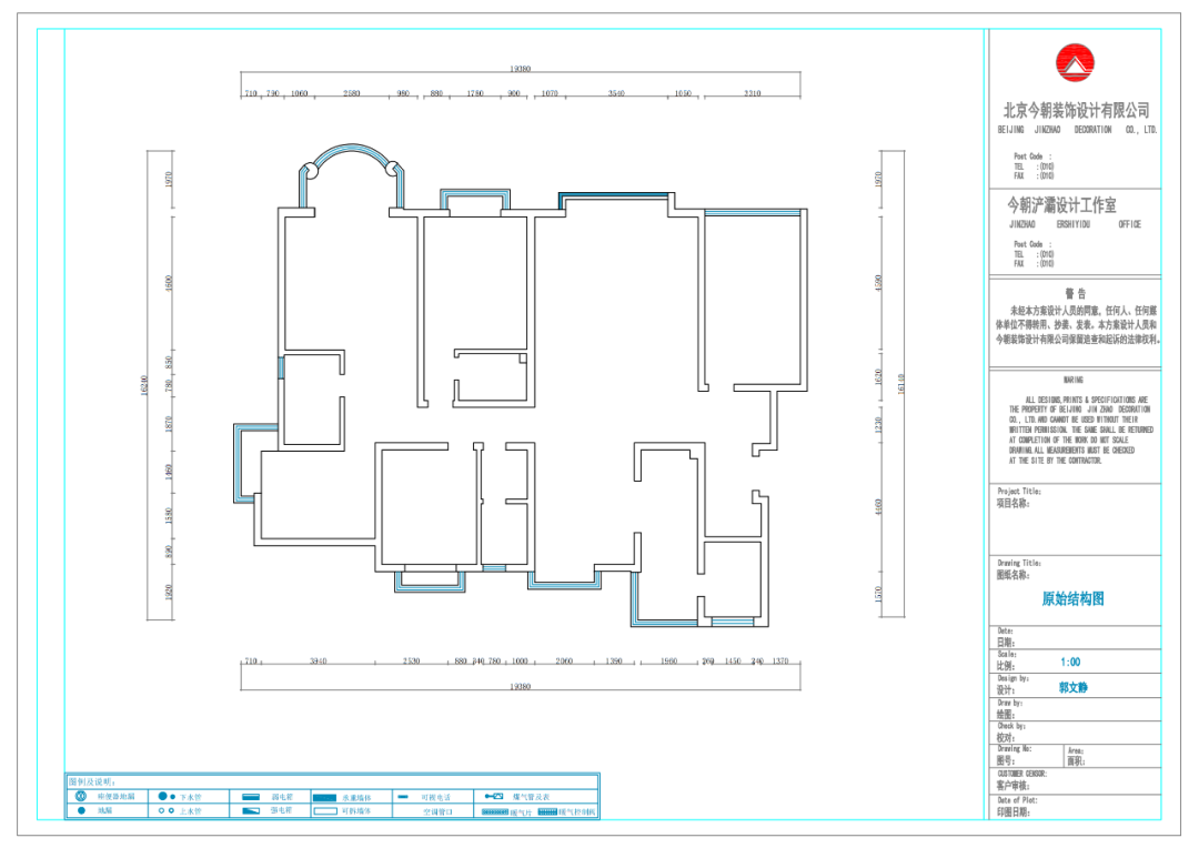
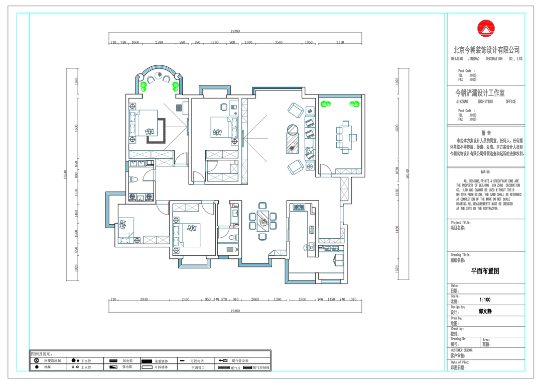
 平 面 规 划 


图片

 业主需求

❶ 三口之家,孩子已上高中;

❷ 男女主人都是事业有成,各自工作时间很满,没有太多时间精力放在装修上;

➌ 可接受前卫些的设计理念及优化改造,喜欢浪漫,有些仪式感的设计效果;

❹ 需要预留两个老人房,假期会接老人过来小住,尽量简单易打理;

❺ 对起居只有一个主卧的要求,其他卧室及书房不做强制性要求;

❻ 虽然不会在家做饭,但是要求厨房需要按照高标准的配置进行设计。


图片


 平面布局图改造要点

❶ 结合业主需求和设计构思,重新组合空间形式,将空间张力完全释放出来;

❷ 公共区域的储物集中在电视墙、入户花园处,留足够的多人共处的客餐厅空间;

➌ 让主卧的每一项配置和功能都做到极致,包括功能区域的面积。

❹三卫改两卫,将朝南次卧的卫生间改成衣帽间,主卫外移成第二个半共用式,三口之家实在无须这么多卫生间。



 ◢ 

 效 果 展 示 


【 客 厅 】

LIVING ROOM


图片

▲ DIANSHIQIANG

电视墙总归是要有的,效果也好储物也罢,都是【门面】区域里的重要参数。

将客厅的一切杂物都【藏起来】,把美好的装饰物展示出来,好看跟好用就达到了平衡。

图片

▲ SHAFAQIANG

进深允许的时候,造型是提升生活品质的点缀品。

同材质的设计在前后呼应时,设计的效果才有意义,灰调需要木色才能彰显质感。


【 餐 厨 】

DINING ROOM

图片

▲ CANTING

客厅复杂了,餐厅就【减法装修】吧。

让每个空间都有独立的收纳是保证家居住舒适的重要法则。

沿窗做餐边柜收纳边角太过硬朗,改成侧薄柜就会顺眼很多。

图片

▲ CHUFANG

中西式并存的厨房已经是现代家庭的标配。

厨房要【能藏】【易清理】才可以达到整洁有序的【梦中厨房】的标准。


【 主 卧 】

MASTER BEDROOM


图片

▲ ZHUWOSHI

符合年龄段的装修才能达到理想居所的目的。

主卧选的灰咖色,很适合40岁这个年龄段的群体,整个空间干净、宁静,创造安静入睡的睡眠环境。


【 孩 子 房 】

SON'S BEDROOM


图片

▲ NANHAIFANG

上中学的孩子房间要兼具收纳、学习、睡眠。

选择清爽的豆沙绿+白色组合,学习之余柔和的颜色护眼也有利放松心情。


【 书 房 】

SON'S BEDROOM

图片

▲ DULISHUFANG

多次的居家隔离让我们知道有个【独立书房】的重要性

书房要兼具学习、办公、收纳于一体,半隐藏式的墙面收纳柜会更适合。

朝南的书房同时也兼具了平时偶尔的晾晒(全屋就主卧一个阳台)。


 ◢ 

 本 案 设 计 师 



图片


郭 文 静


西安今朝装饰 • 首席设计师


从业年限:15年


毕业院校:西安建筑科技大学


经典案例:白鹿溪谷、金水湾、碧林湾、曲江龙邸、紫禁城、金辉城、大华公园世家、御景城、紫汀苑、梧桐苑、金地湖城大境、枫叶新都市、伊顿公馆、紫薇永和坊、杨凌农科大、陕师大家属院、西工代家属院、理工大家属院等


 设计师说:

 设计你的工作和生活,家只有先达到【好用】之后才能欣赏到美,你我互相配合、信任才能实现效果图=实景图!





图片

END

图片

本期未央路八水上筑236㎡现代简约的设计方案讲解到这里,如您想get同款设计享受同样优惠,请联系你身边的今朝装饰设计师或家装顾问即可!

手机版

小程序

公众号