欢迎来到嘉兴装一网!| 登录免费注册 触屏版
您的位置:装一网>嘉兴站>米卡装饰>促销活动>【米卡装饰】资深设计师王珅龑 倾力打造紫元·尚园四大空间风格

www.zxdyw.com/shop/29907/

地址:浙江省 嘉兴市 市辖区 南湖区富润路与富民路交叉口(嘉兴一中南大门正南200米富润路107号)

在线报价在线预约

  • 一居室
  • 二居室
  • 三居室
  • 四居室
  • 复式
  • 别墅
  • 其他

联系我们

嘉兴米卡装饰工程有限公司

地  址:浙江省 嘉兴市 市辖区 南湖区富润路与富民路交叉口(嘉兴一中南大门正南200米富润路107号)

电  话:0371-58610011

联系人:小王

促销活动

【米卡装饰】资深设计师王珅龑 倾力打造紫元·尚园四大空间风格

内容提示:舒适居家氛围的营造,需要根据实际户型的量身而定,更离不开专业的眼光和设计水准。

舒适居家氛围的营造,

需要根据实际户型的量身而定,

更离不开专业的眼光和设计水准。


姓名:王珅龑

公司:米卡装饰

职务:主任设计师

毕业院校:中国美术学院

从业时间:6年

设计理念艺术源于生活,细节成就品质。设计是一种追求完美的生活态度,设计是一种追求品位的生活态度。


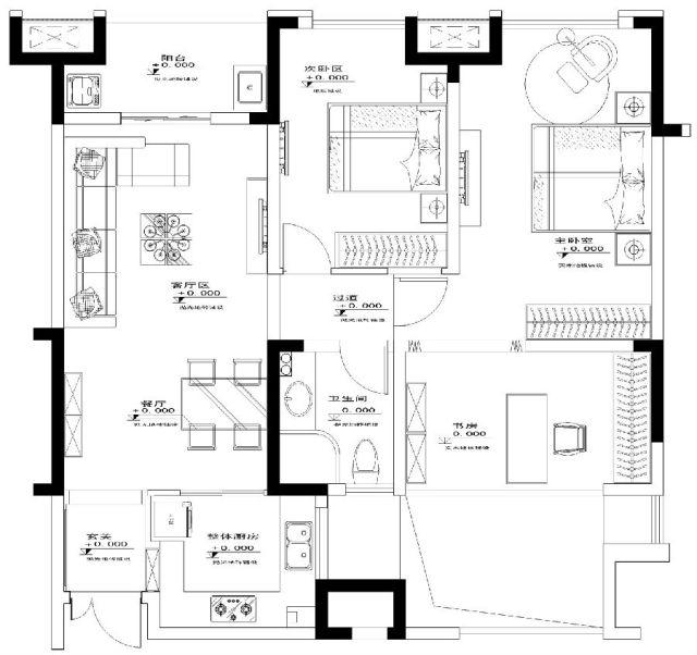
『紫元·尚园』D4户型

三房/两厅/一卫 面积:约89+14㎡


D4户型现代简约风格设计说明


本套方案完美的融合了空间与人文的和谐共处,凸显出居室主人的精神文化情怀和审美高度。在家具配置上,白亮光系列家具,独特的光泽使8家具倍感时尚,具有舒适与美观并存的享受。在配饰上,延续了黑白灰的主色调,以简洁的造型、完美的细节,营造出时尚前卫的感觉。各种不同造型的金属灯,都凸显了现代简约派的风格。

客厅效果图

主卧效果图


成本核算

玄关

抛光砖、现代简约墙纸、鞋柜

次卧

地板、现代简约墙纸

客厅

餐厅

过道

抛光砖、现代简约墙纸、灰镜、 不锈钢压条、大理石

书房

地板、现代简约墙纸

主卧

黄色乳胶漆、地板、拼花地板、不锈钢压条

厨房

抛光砖、墙砖、成品橱柜

次卧

地板、现代简约墙纸

卫生间

抛光砖、现代简约墙砖、浴室柜、淋浴房

阳台

抛光砖、吊柜、墙砖

*总硬装成本合约1100/㎡,此价格仅供参考,具体装修成本还需参照实际行情。


D4户型美式风格设计说明

本套方案将原有的厨房变成了敞开式的同时,设计了一个入户独立的玄关,利用原有的设备平台增加了一个书房和走入式衣柜,大大增加了收纳功能,精致的三房设计,空间利用率非常高。客厅餐厅一体,融合空间更享生活的融洽。选材方面,美式惯用的护墙板、彩色乳胶漆、墙纸等材料,以及柔和的奶白色的大量使用,给人以明快的、不造作之感。另外美式乡村风没有豪华的排场,喜选用精致的装饰品和摆设不用时期的家具来营造氛围,面部材料的沙发、抱枕及窗帘等饰品的运用突出了自然的舒适之感。

客厅效果图

主卧效果图



成本核算


厨房

仿古墙砖、仿古墙砖、成品橱柜

书房

拼花地板、美式墙纸

客厅

餐厅

过道

仿古墙砖、彩色乳胶漆、护墙板

主卧

美式墙纸、拼花地板、护墙板

走入式衣柜

拼花地板、美式墙纸

卫生间

仿古地砖、仿古墙砖、浴室柜、淋浴房

阳台

仿古地砖、吊柜、仿古墙砖

次卧

拼花地板、美式墙纸



*总硬装成本合约1200/㎡,此价格仅供参考,具体装修成本还需参照实际行情。



『紫元·尚园』E1户型

四房/两厅/两卫 面积:约118+17㎡



E1户型欧式风格设计说明

本方案为了突出舒适性,在布局上做了一定的取舍,蒋本可以做成四房的空间,“只”做成了三房。原有客厅和餐厅空间变大。把原有的设备平台改成了一个书房和一个独立的走入式衣帽间,大大增加了收纳功能,书房的门使用隐形门设计,在不破坏客厅电视背景墙造型的前提下,使得背景墙完整美观。选材方面,选用环保的实木护墙板,再配上无纺布墙纸点缀。还有具有造型的吊顶和灯饰辅助。配上古典的欧式家具,孕育着浓浓的贵族气息。通过装饰画,地毯,家具花纹的色彩加以零星的点缀与调配,舒缓了视觉效果,使空间出现层次的变化,更富灵动气韵。

客厅效果图

主卧效果图




成本核算

厨房

仿古墙砖、仿古墙砖、成品橱柜

书房

地板、欧式墙纸

客厅

餐厅

过道

仿古墙砖、欧式墙纸、护墙板、雕花板

主卧

欧式墙纸、仿古地砖、护墙板、欧式雕花板

主卫

仿古地砖、仿古墙砖、浴室柜、淋浴房

卫生间

仿古地砖、仿古墙砖、浴室柜、淋浴房

走入式衣柜

地板、欧式墙纸、衣柜

次卧

地板、欧式墙纸

阳台

仿古地砖、吊柜、仿古墙砖

*总硬装成本合约1300/㎡,此价格仅供参考,具体装修成本还需参照实际行情。


E1户型新中式风格设计说明

本方案在设计上,牢牢把握户型方正,南北通透,动静分区,私密性更好的特色,同样在舒适性上做足文章。独立的入户玄关更具仪式感,客厅和餐厅贯通小阳台,活动空间更加舒适。利用原有的设备平台增加了一个书房,利用地板抬高完美的将空间做了分割,敞开式的书房大大增加了视觉上的空间效果,电视背景左边的中式雕花隔断既起到了将空间风格的功能,有与右边的银镜磨花造型做到了相呼应。完美的呈现了中式的对称,雕花的中空使得空间有效的延伸,空间更朗阔舒适。选材方面,选用环保的实木护墙装饰,再配上无纺布墙纸点缀。还有具有造型的吊顶和灯饰辅助。配上中式的家具,孕育着浓浓的文化气息。通过荷花,中式花纹,地毯,家具花纹的色彩加以零星的点缀与调配,中国风得以浓郁彰显。

客厅效果图

主卧效果图



成本核算



厨房

抛光砖、墙砖、成品橱柜

书房

浅色地板、中式墙纸

客厅

餐厅

过道

抛光砖、中式墙纸、银镜磨花、雕花板

主卧

浅色地板、软包、银镜、中式墙纸、雕花板

主卫

抛光砖、墙砖、浴室柜、淋浴房

卫生间

抛光砖、墙砖、浴室柜、淋浴房

阳台

抛光砖

次卧

浅色地板、中式墙纸



*总硬装成本合约1200/㎡,此价格仅供参考,具体装修成本还需参照实际行情。



主任设计师王珅龑优秀作品集锦

设计师案例介绍--海棠苑

风 格:简欧
户型面积:164平方
主要用材:地面:抛光地砖
墙面:乳胶漆、壁纸、实木造型、安娜米黄大理石顶面:轻钢龙骨石膏板吊顶、造型PVC线条、乳胶漆。
设计说明:本案的设计风格为简约欧式,营造典雅、自然、高贵的气质、浪漫的情调是本案的主题


设计师案例介绍--龙胜蓝郡

风 格:简欧
户型面积:160平方
主要用材:地面:抛光地砖
墙面:乳胶漆、壁纸、实木造型、大理石顶面:轻钢龙骨石膏板吊顶、造型PVC线条、乳胶漆。

设计师案例介绍--澳洲花园
风 格:简欧
户型面积:164平方
主要用材:地面:抛光地砖
墙面:乳胶漆、壁纸、实木造型、安娜米黄大理石顶面:轻钢龙骨石膏板吊顶、造型PVC线条、乳胶漆。
设计说明:本案的设计风格为简约欧式,营造典雅、自然、高贵的气质、浪漫的情调是本案的主题。

设计师案例介绍-- 巴黎都市
风 格:新古典
户型面积:200平方
主要用材:地面:抛光地砖
墙面:乳胶漆、壁纸、实木造型、大理石顶面:轻钢龙骨石膏板吊顶、造型PVC线条、乳胶漆。

设计师案例介绍--临江景园

风 格:简欧
户型面积:380平方
主要用材:地面:抛光地砖
墙面:乳胶漆、壁纸、实木造型、大理石顶面:轻钢龙骨石膏板吊顶、造型PVC线条、乳胶漆。


手机版

小程序

公众号