欢迎来到嘉兴装一网!| 登录免费注册 触屏版
您的位置:装一网>嘉兴站>米卡装饰>促销活动>米卡出品 · 严龙华新作 境有素 · 墨成规

www.zxdyw.com/shop/29907/

地址:浙江省 嘉兴市 市辖区 南湖区富润路与富民路交叉口(嘉兴一中南大门正南200米富润路107号)

在线报价在线预约

  • 一居室
  • 二居室
  • 三居室
  • 四居室
  • 复式
  • 别墅
  • 其他

联系我们

嘉兴米卡装饰工程有限公司

地  址:浙江省 嘉兴市 市辖区 南湖区富润路与富民路交叉口(嘉兴一中南大门正南200米富润路107号)

电  话:0371-58610011

联系人:小王

促销活动

米卡出品 · 严龙华新作 境有素 · 墨成规

地址:金都·夏宫

面积:160㎡

风格:简中式




【本案说明】

  本案是位于金都夏宫的作品,单从整体的方案布局来看,设计师还是非常的花心思的,细节的构思非常到位。整体的面积比较大,所以看客厅来说还是比较小的,设计师借用了一些阳台的空间适当的增大的客厅的面积,这样就会显得非常舒适。对于本户型的内卫来说还是偏大,所以设计师缩小了一些厕所的面积,在主卧和主卫中间增加了一个敞开的衣帽间,在布局合理的同时也增加储物性。过道较长的单调,设计师在书房与过道的墙间改作了布纹玻璃大大增加了它的美观性。




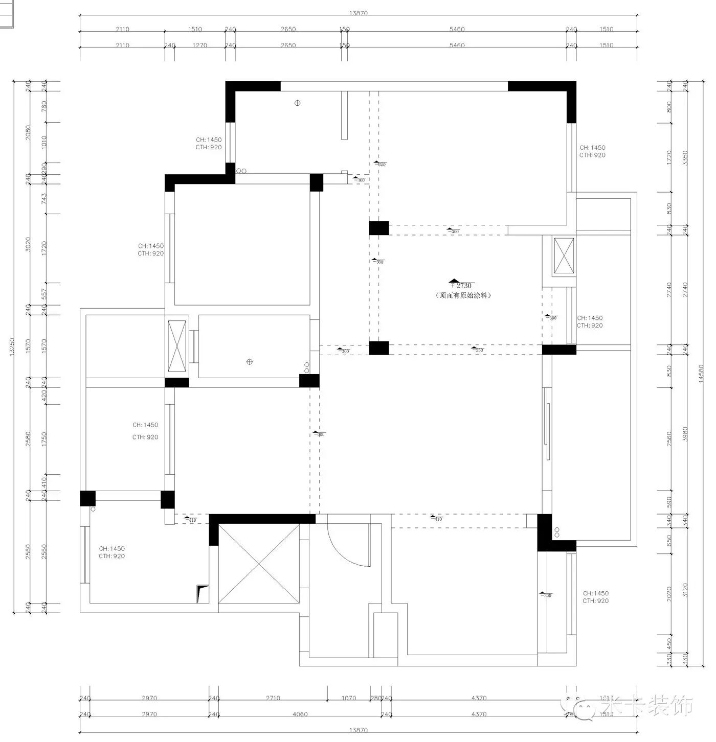
【原始结构图】

【平面布置方案】


【作品介绍】

    中式简约风格整体兼有传统中式风格和现代简约风格之间,不会有中式那种沉闷,也不会有简约那种飘逸。沉稳大方是,不奢华,又不失品味。每一个房间,甚至在每一个角落都在简单的中式元素运用中沉淀出中国传统文化的魅力。
  简约不等于简单,它是经过深思熟虑后经过创新得出的设计和思路的延展,不是简单的堆砌和平淡的摆放,不像有些设计师粗浅的理解的直白。它凝结着设计师的独具匠心,既美观又实用。

【效果图】



【本案设计师】  严龙华


手机版

小程序

公众号