欢迎来到嘉兴装一网!| 登录免费注册 触屏版
您的位置:装一网>嘉兴站>米卡装饰>促销活动>米卡出品 · 王伟新作 温婉的静谧无声

www.zxdyw.com/shop/29907/

地址:浙江省 嘉兴市 市辖区 南湖区富润路与富民路交叉口(嘉兴一中南大门正南200米富润路107号)

在线报价在线预约

  • 一居室
  • 二居室
  • 三居室
  • 四居室
  • 复式
  • 别墅
  • 其他

联系我们

嘉兴米卡装饰工程有限公司

地  址:浙江省 嘉兴市 市辖区 南湖区富润路与富民路交叉口(嘉兴一中南大门正南200米富润路107号)

电  话:0371-58610011

联系人:小王

促销活动

米卡出品 · 王伟新作 温婉的静谧无声

地址:格兰英郡

面积:100㎡

风格:美式简约




【本案说明】

因为这个户型的局限性和业主自身的需求使之一直都没有一个很好的想法来装修这个房子。在这里也非常感谢我们米卡装饰的签约客户在论坛上写的装修日记,也恰好是格兰英郡的小户型房子。业主才找到我们王伟设计师。当初业主感觉王伟设计师对与她类似的小户型处理的非常好,风格也是喜欢的类型。

业主是想要做三个房间,又觉得厨房、客厅和餐厅之间的空间关系一直处理不好。这是非常头痛的问题,经过一段时间的沟通,设计师为业主做了一个最佳的优化方案。业主表示也是非常的满意。



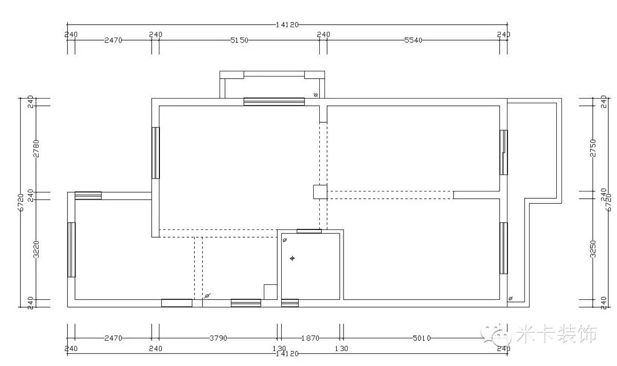
【原始结构图】

进门的房间做成一个小孩房,虽然是面朝北边,但是两扇窗户的采光完全遮盖了这个不是问题的问题。敞亮的视觉,清醒的空气,书写作业的烦恼似乎也会降低稍许。

客厅的宽度有着4米左右,完全不会觉得拥挤和狭小。电视机的背后才是餐桌的位置。这个地方本来也是一个比较尴尬的地方,承重柱的建立打乱了空间布局,使得其他的一些方案不能很好的得以运用。设计师在经过全方位考虑后做到的如下图方案。这样的餐区突然间仿佛浑然天成,不仅掩盖了承重柱原本带来的空间缺憾,更是增加了置物架,加大了储藏空间。


【平面布置方案】

【马克笔优化彩平方案】

【作品介绍】

设计师对于方案的布置,空间的规划能力从上述方案中就可见一斑。对于最后呈现的效果图,软装搭配也是非常的考究。动植物摆布点缀的艺术品,白黄相间的色彩平衡搭配比例,美式简约的布艺沙发无一不是设计师经过深思熟虑的选择。因此也有了今天的主题:温婉的静谧无声。没有多么明亮的灯光;没有太过辉煌的格调;没有都市纷扰的烦躁。推门一入,鞋子一放,随后沙发一憩。放松下紧绷了一天的身体,外界的一切都与之切断。我想,这应该是设计师对于该作品最美好的愿景吧。

【效果图赏析】



【本案设计师】 王伟


手机版

小程序

公众号