欢迎来到洛阳装一网!| 登录免费注册 触屏版
您的位置:装一网>洛阳站>天著壹品>促销活动>【天著壹品】精确量房的重要性,让你的装修预算做到心中有谱!

www.zxdyw.com/shop/33167/

地址:河南省 洛阳市 洛龙区 河南省洛阳市洛龙区王城大道与古城路交叉口盛唐至尊门面4-102

在线报价在线预约

  • 一居室
  • 二居室
  • 三居室
  • 四居室
  • 复式
  • 别墅
  • 其他

联系我们

天著壹品空间设计机构

地  址:河南省 洛阳市 洛龙区 河南省洛阳市洛龙区王城大道与古城路交叉口盛唐至尊门面4-102

电  话:0371-58610011

联系人:李经理

促销活动

【天著壹品】精确量房的重要性,让你的装修预算做到心中有谱!

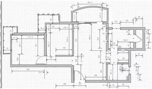
什么是量房?

量房是房屋装修的第一步,这个环节虽然细小,但却是非常必须和重要的。它是指设计师或者是业主自己对拟装修的居室进行现场勘测,并进行综合的考察的过程。
只有对房间各个地方的尺寸都了如指掌,才能更好地进行接下来的装修设计、制定预算方案等工作。


1装修量房的作用


1、了解房屋详细尺寸数据


通过量房准确的了解房屋内各房间的长、宽、高以及门、窗、空调、暖气等的位置,量房首先对装修的报价会产生直接影响。


2、了解房屋格局利弊情况

通过现场量房,设计师可以仔细观察房屋的位置和朝向。以及周围的环境状况、噪音是否过大、空气质量如何、采光如何等,这些问题都会直接影响后期的设计。如果存在先天房子格局不好等情况,就需要设计来弥补不足。


3、方便设计师与业主实地交流


量房时,设计师和业主一般都会到场,如果业主对房屋的设计有一定的想法,在现场测量的时候,就可以和设计师沟通看这些想法是否可行,交流起来比较有效果。此外,业主如果需要提前订购主材,也需要现场和设计师进行沟通后再做决定。


4、保证后期房屋装修质量



只有量房比较精确,才能做出准确的设计,不至于后期施工时,因为尺寸不对而无法实现,需要进行设计更改或者项目更改。一些项目如上下水管、暖气、煤气位置如果没有测量或者测量不准确,就有可能导致后期购买的坐便器、水盆等因尺寸不对无法安装而发生退货、换货的情况。

2量房前的准备


A、量房前记得携带好房屋图纸:在量房前记得携带房屋建筑水电图以及建筑结构图、户型图等。


B、了解所在物业对房屋装修的规定:量房前还一定要了解房屋所在的小区物业,对房屋装修的具体规定,例如在水电改造方面的具体要求,房屋外立面可否拆改,阳台窗能否封闭等等,以避免不必要的麻烦。

3量房的三种测量思路


定量测量:主要测量各个厅室内的长、宽、高,计算出每个用途不同的房间的面积。并根据业主喜好与日常生活习惯提出合理化的建议。


定位测量:在这个环节的测量中,主要标明门、窗、空调孔的位置,窗户需要标量数量。在厨卫的测量中,落水管的位置、孔距、马桶坑位孔距、离墙距离、烟管的位置、煤气管道位置、管下距离、地漏位置都需要做出准确的测量,以便在日后的设计中准确定位。


高度测量:正常情况下,房屋的高度应当是固定的。但由于各个房屋的建筑、构造不同,也可能会有一定的落差,在设计师进行高度测量中,要仔细查看房间的每个区域的高度是否出现落差,以便在日后的设计图纸中做到准确无误。

4量房的基本流程


  1. 第一先从门开始测量,测量一圈,最后再回到门的另一边,测量的时候最好把测量数据都标注在平面图上,便于以后装修用得到。

  2. 用卷尺量长度和高度时,长度要紧贴拐角处测量,高度一定要要紧贴地面测量。

  3. 把通向另一个房间的具体尺寸再测量后记录。

  4. 测量门本身的长、宽、高再测量这个门与所属墙体的左、右间隔尺寸,测量门与天花的间隔尺寸。

  5. 测量窗与地面的间隔尺寸。

  6. 按照门窗的测量方式把开关、插座、管子的尺寸记录。厨卫把马桶下水、地漏、面盆下水的位置在平面图中标记出来,马桶中心距墙的距离,这牵扯到买马桶的坑距问题;还有就是梁的位置。

  7. 测量时候如果有特殊之处用不同颜色的笔标清楚。

  8. 在全部测量完后,为了确保测量的准确精细,建议再复测一遍,为了避免漏侧。

5设计师们勘察什么?


1、光照
窗户的位置,日照时间是否过长或不足,如果窗户位置不合适将致室内昏暗或温度过热过冷。


2、噪音
观察房子周边现场和未来的噪音源,房子内可能产生噪音的位置与休息区的距离,决定解决方案。


3、气流
了解不同季节气流的变化,分析不同季节空气的质量、温度、湿气、气味,对可能产生的问题,通过特别的设计去避免。


4、数据
通过量房准确的了解房屋内各房间的长、宽、高以及门、窗、空调、暖气等的位置,不至于后期施工时,因为尺寸不对而无法实现,需要进行设计更改或者项目更改。


小贴士:为了给自己一个最好的居住环境和生活空间,所以,大家请不要拒绝设计师或家装顾问的量房请求哦!

欢迎关注【天著壹品】,微信号lytzyp!!!

关注我们,分享精彩!

公司地址:洛龙区盛唐至尊商铺4-102

天著壹品空间设计机构

联系电话:0379-63083266

QQ号:2755255508

公司网址:www.tianzhuyipin.com

手机版

小程序

公众号