欢迎来到宜昌装一网!| 登录免费注册 触屏版
您的位置:装一网>宜昌站>道池易家装饰>促销活动>这也许是最牛B的衣柜设计标准啦!速速get!√

www.zxdyw.com/shop/37964/

地址:湖北省 宜昌市 西陵区 金东山欧亚达家居馆B4-7-2

在线报价在线预约

  • 一居室
  • 二居室
  • 三居室
  • 四居室
  • 复式
  • 别墅
  • 其他

联系我们

宜昌道池易家装饰工程设计有限公司

地  址:湖北省 宜昌市 西陵区 金东山欧亚达家居馆B4-7-2

电  话:0371-58610011

联系人:明守稷

促销活动

这也许是最牛B的衣柜设计标准啦!速速get!√

内容提示:这也许是最牛B的衣柜设计标准啦!速速get!√

1、年轻夫妇的衣物,则是多样化。

一般将左右两边分别设置成男女方各自的储衣空间。柜体内的挂衣架通常分为长短两层分别储存大衣和上装,衬衫也可以放置于独立的小抽屉或搁板,不会因过多衣物挤压在一起而皱折难看。内衣、领带和袜子可用专用的小格子,既有利于衣物保养,取物也更直观方便;毛衣可放在较深的抽屉里;裤子则用专用的挂架存放。


2、由于老年人的叠放衣物多,挂件少。

老年人的衣柜在设计时建议多做层板和抽屉,常开启的抽屉位置不要设计的过低,以免老年人蹲下取物不方便。

3、儿童衣柜不要只考虑眼前

小孩子现在叠放的衣物肯定多过挂放的衣物,但是孩子的成长是很快的,应将5到10年内的变化因素考虑进去,所以叠放区和挂放区比例适当的搭配是很重要的。儿童衣柜一般都以多功能为主,玩具、书籍、衣物等儿童用品同事摆放,实现一柜多用。另外要考虑儿童的身高因素,儿童常用的物品要拿取方便,以免造成意外伤害;不要在儿童头部高度设计抽屉等可以拉出的配件,以免因没能及时收回发生碰撞意外。

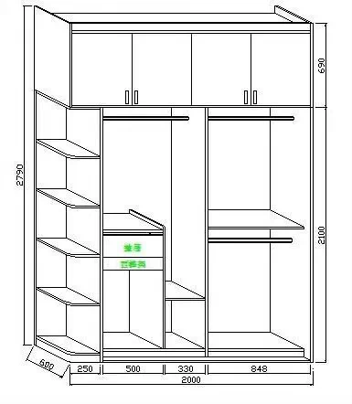
4、挂短衣或套装的柜体高度不低于800mm

挂长大衣的柜体高度不低于1300mm;

抽屉的高度不低于150mm~200mm;

至于叠放衣物的柜体,以衣物折叠后的宽度来看,柜体设计时宽度在330mm~400mm之间、高度不低于350mm;

整个衣柜上端通常会设置成放置棉被等不常用物件,高度也要不低于400mm。


衣柜横纵向面:

整体的尺寸案例:

衣柜内部结构:


详解衣柜安装全过程:

定制衣柜安装实在看似一个复杂的过程,只有你了解具体的安装步骤和方法后,你就会觉得定制衣柜安装也没有想象中的那么难,定制衣柜需“量体裁衣”,才能产生事半功倍的效果。

一、准备阶段:

①料到场

比较正规的家具厂商,板材运送到现场时一般都有纸板包装。拆开包装后验收一下各块板材和五金件。


②固定螺丝

板材上一般都按设计图留好了钉眼,在现场的工人用专用工具把螺丝固定好。


③量裁侧板

由于衣柜是贴墙放置的,所以侧板上要在踢脚线的位置锯掉一块。踞好后摆放看看是否贴合。


二、安装阶段:

①安放底板

衣柜底板放置的地面事先要打扫干净,因为等安装后再去清理的话会非常麻烦。


②固定框架

按照板材上的凹槽安装好衣柜的侧板和背板,调整各块板之间的位置。


③安装顶板

现场最好准备一个攀高用的凳子,顶板要举高了放置上去的,然后用铆钉固定。

④安装搁板

把搁板放置到事先敲好螺丝的地方,然后固定。注意调整搁板与背板、侧板的固定位置。


⑤固定门轨

在衣柜的顶边和底边都安装好门轨,门轨选合金的材料比较好,又轻又牢固。


⑥安装衣杆

在预留的位置打好固定铆钉,安装好衣杆。注意两边要平衡。


三、收尾阶段:

①安装门扇

两扇移门要贴和导轨的位置安装,先固定好门扇再把底边的导轨固定好,这样避免以后发生门扇脱落的现象。


②调整改良

全部安装完之后,对衣柜做个“全面检查”,有偏差的话及时调整。


四、完成验收

最后对衣柜做一下验收:摇晃下柜体看看是否牢固,细节是否到位。


公众微信订阅号ycdcyj

关注即可到店免费领取精美礼品一份!

业务服务范畴:别墅住宅、公寓、写字楼、宾馆、酒店会所、娱乐场所、商业空间。

服务宗旨:为追求高品味人群服务!

公司愿景:创建宜昌一流高端品味装饰公司!

地址:宜昌开发区金东山欧亚达4B4-7-2

电话0717-6320333

传真0717-6622238

手机版

小程序

公众号