欢迎来到佳木斯装一网!| 登录免费注册 触屏版
您的位置:装一网>佳木斯站>百邦装饰>促销活动>若干年后,农村都是这样的房子!牛啊!

www.zxdyw.com/shop/40678/

地址:黑龙江省 佳木斯市 向阳区 佳木斯市向阳区报业大厦西侧富贵公寓1#门市

在线报价在线预约

  • 一居室
  • 二居室
  • 三居室
  • 四居室
  • 复式
  • 别墅
  • 其他

联系我们

百邦室内外装饰工程有限公司

地  址:黑龙江省 佳木斯市 向阳区 佳木斯市向阳区报业大厦西侧富贵公寓1#门市

电  话:0371-58610011

联系人:候羿舟

促销活动

若干年后,农村都是这样的房子!牛啊!

若干年后,农村都是这样的房子!牛啊!

随着房价物价的迅速攀升,很多在外面打工的朋友感觉在城里买一套房子变得越来越艰难了,而且城市里住房面积小,空气质量越来越差;乡下就不一样了,乡下环境好,空气清新,手头有个二三十万就可以建一栋好点的房,再买辆车,生活也可以过得很潇洒。

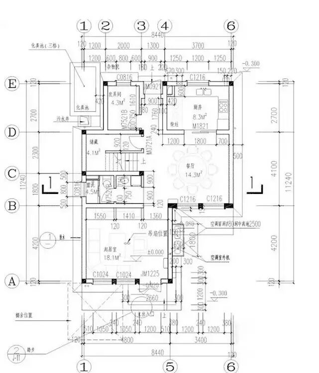
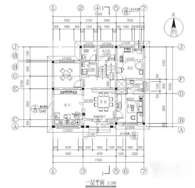
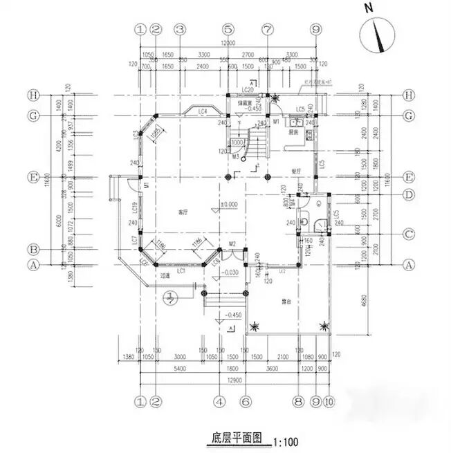
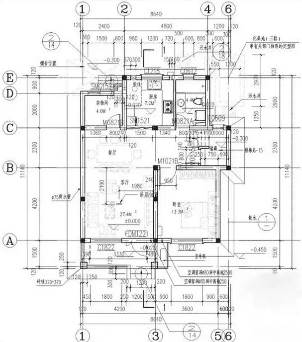
但目前绝大多数农村建房的师傅没有专业的施工图纸,建起来的房子千篇一律,感觉很土气,没有创新!下面我给大家介绍几款新农村户型图,先展示效果图和首层的平面图:

一、新农村住宅户型

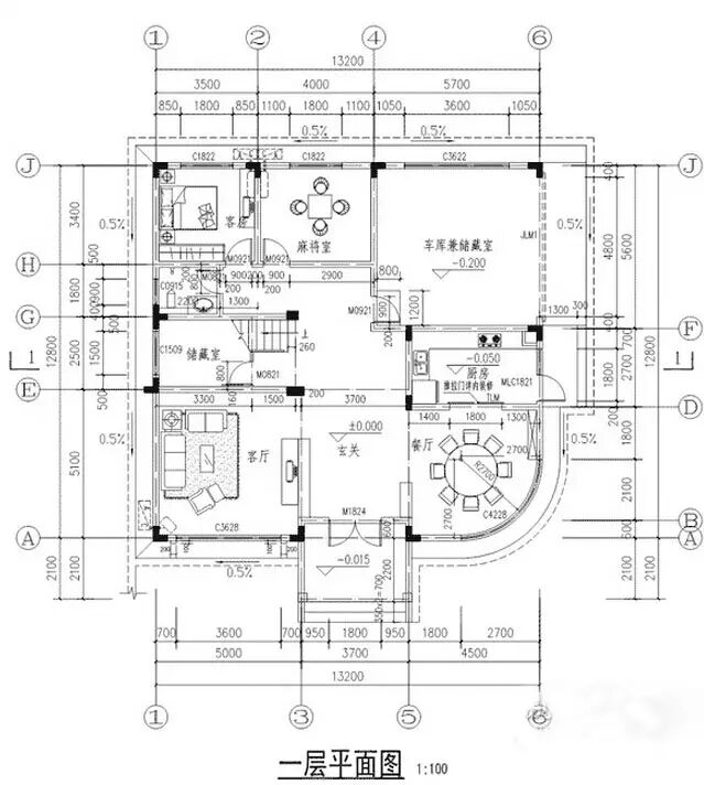
户型一:

地基:12m×12m

占地面积:116平米,总建筑面积:213.53平米;


户型二

地基:9m×13m

占地面积:76.60平米,总建筑面积:185.11平米;

三大材料用量估算:水泥44.64吨,钢筋6.932吨,多孔砖85.643立方米;


户型三

地基:9m×12m

占地面积:75.1平米,总建筑面积:119.7平米;

三大材料用量估算:水泥32.28吨,钢筋4.753吨,多孔砖74.179立方米


户型四:

地基:12m×10m

占地面积:109.68平米,总建筑面积:287.82平米;


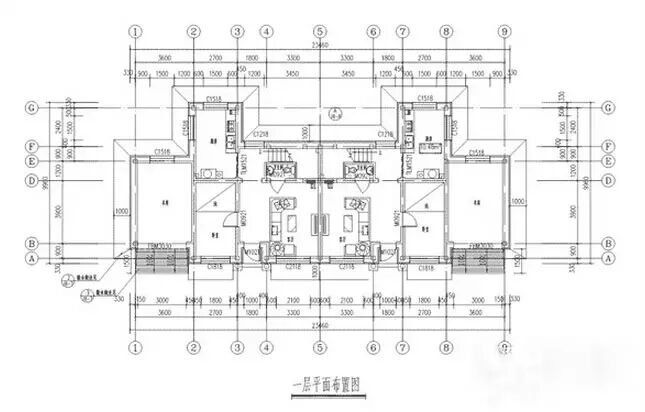
二、双拼户型

家里有两兄弟需要建房的可以考虑双拼的,一来兄弟间能有个照应,二来可以节省建筑成本。

户型一

地基:24m×10m

占地面积:178.46平米,总建筑面积:284.2平米;


户型二

地基:19m×12m

占地面积:123平米,总建筑面积:213.2平米;



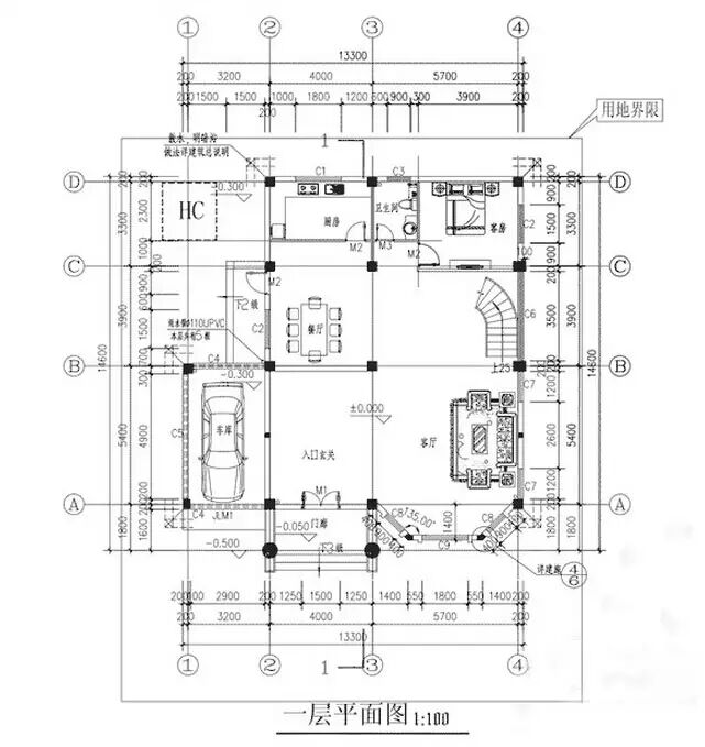
三、独栋别墅户型

独栋别墅即独门独院,上有独立空间,下有私家花园领地,是私密性很强的独立式住宅,表现为上下左右前后都属于独立空间,一般房屋周围都有面积不等的绿地、院落。这一类型是别墅历史最悠久的一种,也是别墅建筑的终极形式。在城市里花50万买一百平米,在农村却可以建这样的别墅:

户型一:

地基:14m×15m

占地面积:147.7平米,总建筑面积:366.4平米;



户型二:

地基:13m×16m

占地面积:130平方米,总建筑面积:310平方米;


户型三:

地基:14m×13m

占地面积:170.38平米,总建筑面积:412.72平米;




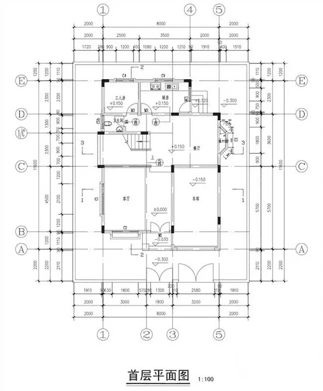
户型四:

地基:8m×12m

占地面积:88.7平米,总建筑面积:220.9平米;


若干年后,希望农村都住上这样的房子,为美好生活转一个

手机版

小程序

公众号