欢迎来到佳木斯装一网!| 登录免费注册 触屏版
您的位置:装一网>佳木斯站>百邦装饰>促销活动>【百邦美图】88平两房改三房 现代简约条纹控

www.zxdyw.com/shop/40678/

地址:黑龙江省 佳木斯市 向阳区 佳木斯市向阳区报业大厦西侧富贵公寓1#门市

在线报价在线预约

  • 一居室
  • 二居室
  • 三居室
  • 四居室
  • 复式
  • 别墅
  • 其他

联系我们

百邦室内外装饰工程有限公司

地  址:黑龙江省 佳木斯市 向阳区 佳木斯市向阳区报业大厦西侧富贵公寓1#门市

电  话:0371-58610011

联系人:候羿舟

促销活动

【百邦美图】88平两房改三房 现代简约条纹控

▲ 有两个孩子,所以房主还是决定把两房改成三房,预算有限,连电器家具总花费20万不到


▲ 牺牲客厅改成了暗厅,在儿童房墙面开了一个窗来借光


▲ 从这个角度可以看到餐厅边上的次卧墙面也是做成了玻璃隔断,引入光线,缓解暗厅的光线问题


▲ 除了条纹以外还用了不少颜色


▲ 所有家具和装饰基本都通过网购,以此来控制预算


▲ 进门之后转弯看到开放式厨房


▲ 蓝色橱柜不常见


▲ 从这个角度可以看到次卧的玻璃墙,电视墙两侧都是门


▲ 条纹格子控的世界


▲ 次卧壁纸、窗帘、床品都是条纹格子


▲ 主卧的壁纸、床品、窗帘同样也是条纹格子


▲ 衣柜移门都是波浪百叶(条纹)


▲ 粉色调的儿童房


▲ 采用绿色调的卫浴显得年轻,但质感有所下降


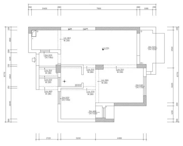
▲ 原始结构图


▲ 平面布置图

手机版

小程序

公众号