欢迎来到锦州装一网!| 登录免费注册 触屏版
您的位置:装一网>锦州站>业之峰装饰>促销活动>【业之峰主任设计师王阔作品鉴赏】夏日一抹蓝

www.zxdyw.com/shop/42468/

地址:辽宁省 锦州市 凌河区 锦州市凌河区洛阳路五段58-98号(恒升现代城北门或家乐汇西邻)

在线报价在线预约

  • 一居室
  • 二居室
  • 三居室
  • 四居室
  • 复式
  • 别墅
  • 其他

联系我们

锦州业之峰装饰有限公司

地  址:辽宁省 锦州市 凌河区 锦州市凌河区洛阳路五段58-98号(恒升现代城北门或家乐汇西邻)

电  话:0371-58610011

联系人:王小萌

促销活动

【业之峰主任设计师王阔作品鉴赏】夏日一抹蓝

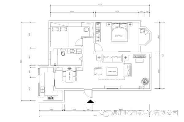
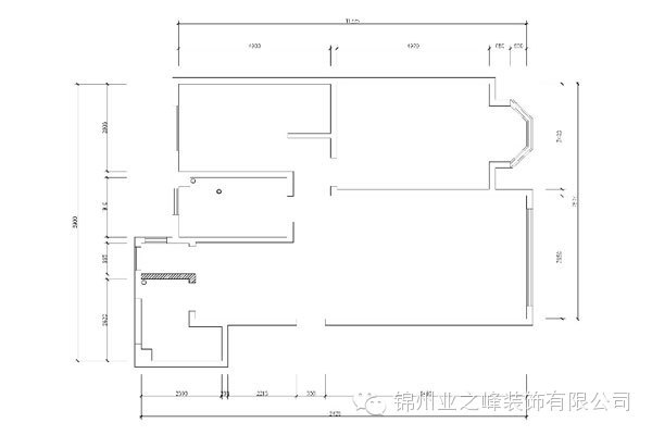
内容提示:作品名称: 夏日一抹蓝 项目名称: 天鹅堡小区 项目地址:天鹅堡小区 建筑面积:112平米 设 计 师:王阔 设计风格:地中海风格 设计机构:锦州业之峰—设计机构

作品名称: 夏日一抹蓝

项目名称: 天鹅堡小区

项目地址:天鹅堡小区

建筑面积:112平米

设 计 师:王阔

设计风格:地中海风格

设计机构:锦州业之峰—设计机构

主要用材:乳胶漆、瓷砖、石膏板、壁纸、实木线条

墙面材料:白色乳胶漆

设计说明:

空间布局功能的大幅度改造,讲究形态的美感与空间的流畅,加上自然质朴的装饰,散发出生活的浪漫与自然情调。可能没有比蓝色更让人感觉清爽的色彩了,不论是大面积的运用还是局部层次的点缀,只要有蓝色出现的地方,便能带来宁静致远的味道和诗意栖息的感觉,再与白色、咖啡色等其他自然色系搭配,带来视觉上的冲击。打造出清新宜人的家居氛围。用地中海的浪漫谱写一曲悠然时光,享受简单快乐,还原浪漫幸福的生活方式。自然、和谐地书写人生,品味现代生活追求的优雅与闲适!


天鹅堡小区原始平面图:

天鹅堡小区平面布置图:

天鹅堡小区效果图:


手机版

小程序

公众号