欢迎来到黄石装一网!| 登录免费注册 触屏版
您的位置:装一网>黄石站>黄石海天装饰>促销活动>113㎡住宅美式装修,看了你一定心动!

www.zxdyw.com/shop/42937/

地址:湖北省 黄石市 黄石港区 湖滨大道摩尔城

在线报价在线预约

  • 一居室
  • 二居室
  • 三居室
  • 四居室
  • 复式
  • 别墅
  • 其他

联系我们

北京海天环艺装饰黄石分公司

地  址:湖北省 黄石市 黄石港区 湖滨大道摩尔城

电  话:0371-58610011

联系人:占军

促销活动

113㎡住宅美式装修,看了你一定心动!

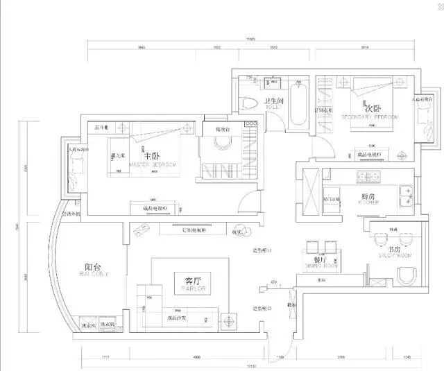
面 积: 113平

房 型:2房2厅2卫

楼 层: 11/17

设计风格:美式

从大学毕业到上海工作,已7年有余。在这个城市,买一套房真的是不容易,所以下决心一定要好好装修一下,家装修的有感觉,才能住的开心!

必竟家很重要!多余的不说,下面上图!


进门玄关这里,铁艺的拱门,我最喜欢了~~~




















手机版

小程序

公众号