其实是小编有个朋友,姑且叫他张三吧!
有一天张三要装修,问小编说:“我家房子小,怎么能通过装修改动让我家的房子看起来像130平。”
小编问张三:“你家房子多大。”
张三:“30平。”
滚犊子……30平的房子,变成130!靠装修是不行滴,只有阿拉丁能帮你!
开个玩笑,30平的房子虽然变不成130,但是98平的可以变成198的感觉哦!今天小编就晒一组图,告诉大家空间的利用是多么重要。
小区地址:颐园世家
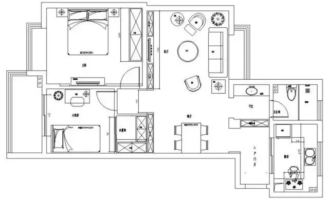
建筑面积: 98㎡
装修风格:现 代
客户是一对30岁左右的夫妻,有两个可爱的孩子,房型是两室两厅一卫的户型,由于家里居住人口相对比较多,所以收纳和储藏,以及空间隐形拓展成了房子最大的问题。
需要在每个空间进行最大化的储藏功能设计,同时通过色彩学和视觉特点,运用比价清新的色彩,用极度简化的线条,尽量把空间视角做到最大化。
这个入户玄关,是不是很像大户人家。
浅蓝色的壁纸映衬了现代感这一主题,挂画和玄关背景的花纹极为跳跃,符合年轻人的审美,同时让空间更加富有活力。最重要的是玄关不仅仅是装饰了,直接变成收纳柜,这隐形储藏老铁了!
你完全可以找一个200㎡房子的客餐厅来对比一下,不仅限于视觉空间感,还有整体的收纳功能,这种隐形拓展让家里的空间真的是放大不少!
为什么能做到如此的空间感,其实设计师还进行了一个特别的空间处理,就是把吊顶和地面进行了整体对称,让人觉得方正,从而把视角空间最大化 。
软装是本案的亮点,起到画龙点睛的神效。 挂画、灯饰、家具都是通过精挑细选,搭配的十分协调,让整个空间营造出一种舒适感,无形中给人一种愉悦的空间暗示,心情好了,自然而然的也就觉得一切豁然开朗!
什么?
你问多少钱?
就不告诉你!
本案例由合肥生活家装饰小伙伴提供!



