欢迎来到昆明装一网!| 登录免费注册 触屏版
您的位置:装一网>昆明站>昆明乾美装饰>促销活动>广福城装修|135m²户型3套设计、不同需求逐一讲解

www.zxdyw.com/shop/5196/

地址:云南省 昆明市 官渡区 广福路与官南大道交叉口邦盛万商城B区206

在线报价在线预约

  • 一居室
  • 二居室
  • 三居室
  • 四居室
  • 复式
  • 别墅
  • 其他

联系我们

云南乾美滔博装饰工程设计有限公司

地  址:云南省 昆明市 官渡区 广福路与官南大道交叉口邦盛万商城B区206

电  话:0371-58610011

联系人:宋经理

促销活动

广福城装修|135m²户型3套设计、不同需求逐一讲解

广福城135㎡现代案列 附设计方案!

乾美设计师谢龙

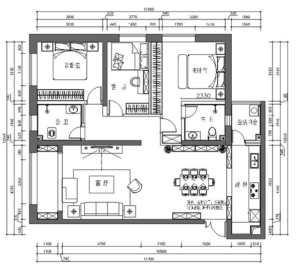
从原始平面图上可以看出,整个户型还是很规整的,客厅、餐厅、厨房、在一条线上,两个卫生间、过道、生活阳台在一条线上、三个卧室在一条线上。而且除了厨房其他每个房间都有窗户,拆改空间还是很大的,值得注意的是左右两个卧室几乎一样大而且都配备卫生间,这就给主卧的定位有了选择的空间,中间卧室的改造空间也挺不错。

方案上有一些改动,选择了右边的卧室做主卧,所以过道就要做隔墙和卧室门,这样不仅使卧室门后可以放置一个柜子而且也给餐厅的酒柜补充了空间。中间客房右边的墙壁向左移动了一些这样在不影响客房使用的基础上有使得主卧有了充足的空间安置一个大衣柜!


客厅效果图

电视背景墙没有做很清晰的轮廓,直接大地砖开槽上墙,这么做的好处是,比较方直的造型更经得住审美的考研,即使使用很久也不容易产生审美疲劳。背景墙两边的黑镜设计加上一个后现代风格的吊灯让客厅有了一丝丝后现代风格的味道,使用黑镜有这么两个有点:①可以跟普通镜面一样有拉伸空间的作用②可以规避开普通镜面的强光反射。吊顶很简单,石膏板走一圈轮廓,一个返光灯槽配上几个筒灯,简单实用!从客厅向厨房的方向看,两块密度板雕花设计既挡住了厨房的杂乱又不失美观。


餐厅效果图

餐厅的储物空间很充足,一个大酒柜、密度板雕花下面的地柜。的吊顶跟客厅一样简单的走了个轮廓,吊顶也是一个跟客厅搭调的现代风格吊灯。

广福城135㎡现代风格案列

设计师:乾美副主任设计师程璨

客厅效果图

这套案列设计师设计了两个客厅,效果不一样。先说第一种。这个客厅可谓把现代风格这种风格表达的淋漓尽致。电视背景墙直接上抛光砖,整体颜色搭调,两边的黑镜设计和直线条点缀了分割并不是很明显的背景墙见到你的吊顶,跟阳台的吊顶有明显的区别与隔断,黑白色调的现代风格家居搭配整个空间的色彩。


第二种客厅


设计的两个方案可能造价相当,关键是看用户自己的取舍,两个方案的最大不同在电视背景墙上,这个方案的电视背景墙并没有选择地砖上墙,而是用了较为便宜的墙纸、但是用墙纸也挺好看、搭配起两边的镜面雕花和壁灯,衔接处明显的石膏板、木质线条隔断。跟第一种设计有强烈的反差。


餐厅效果图


厨房的空间很足,推拉门的设计也使得油烟不会散发的到处都是,两边的地柜、加上顶部的酒柜填补了储物的功能,餐厅的吊灯是吸引眼球的点,吊顶跟客厅一样简单,但是过道吊顶隔断的变化让整个空间不显得很搭调。


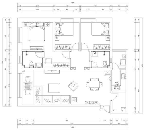
广福城135㎡现代风格案列


乾美设计师:徐有海

户型方案基本没有太大的改动,主卧按部就班的安置在左边所以导致上半部分的卧室和卫生间部分没有动,。把原本细长的厨房从中间做了隔断,这样即保证了厨房的空间够用,下方又多了一个储物间,储物间的出现可以很大程度上的改善整个家的杂物收纳功能,餐厅的收纳功能也得到了补充。


客厅效果图


客厅的电视背景墙区域划分明显,中线的部分用铺贴墙纸,美观实用,两边的部分使用了镜面雕花的设计,整个电视背景墙的档次瞬间就提升了,顶面的处理也很简单,石膏板做轮廓,安装反光灯槽和筒灯,一个现代化的雕花吊灯,跟电视背景墙的镜面雕花、地面的拼花搭配。


过道隔断


过道的隔断不失美观、又保证了实用性。这里详细讲解一下,这种柜子是怎么做的15mm“景谷”大芯板柜基层、水曲柳饰面板封面、九厘背板、水曲柳实木线收口。按照设计样式,此处的柜子为了保持整体的色调搭配一致可能要做油漆工程。


吊顶效果图


餐厅和客厅的隔断使用了不同形状的吊顶分割


广福城装修咨询热线:0871-67180336

手机版

小程序

公众号