欢迎来到泉州装一网!| 登录免费注册 触屏版
您的位置:装一网>泉州站>泉州华浔品味装饰>促销活动>【华浔】362m²现代轻奢别墅,享受面朝大海,春暖花开

www.zxdyw.com/shop/54723/

地址:福建省 泉州市 丰泽区 丰泽广场二楼(新华都旁)

在线报价在线预约

  • 一居室
  • 二居室
  • 三居室
  • 四居室
  • 复式
  • 别墅
  • 其他

联系我们

华浔品味装饰泉州公司

地  址:福建省 泉州市 丰泽区 丰泽广场二楼(新华都旁)

电  话:0371-58610011

联系人:陈经理

促销活动

【华浔】362m²现代轻奢别墅,享受面朝大海,春暖花开

内容提示:本案为360多平的三层复式,北面是一线海景。男主人是一家知名城市规划设计公司的掌舵人,风格定位主要以现代轻奢。因为主人对时尚前沿的设计潮流一直有所关注,再经过多次的和主人交流沟通,最终设计定位在现代轻奢。


一个好的空间设计首先是满足或是超越空间主人对空间功能的需求,其次是主人个性的彰显。



风格:现代轻奢

面积:362㎡

户型:别墅

材料:大理石、多层实木地板、鸡翅木贴皮、实木护墙板、钛合金、玻璃、电子壁炉



户型设计


原建户型问题:

1、入户玄关空间过道过于太窄。

2、原有厨房、餐厅空间过小,看起来太小气。

3、客厅阳台的窗户上下层不大气。

4、楼梯太小气体现不出大宅的气势。

5、二楼空间过于散。

6、三楼露台空间怎么用?


客户需求:

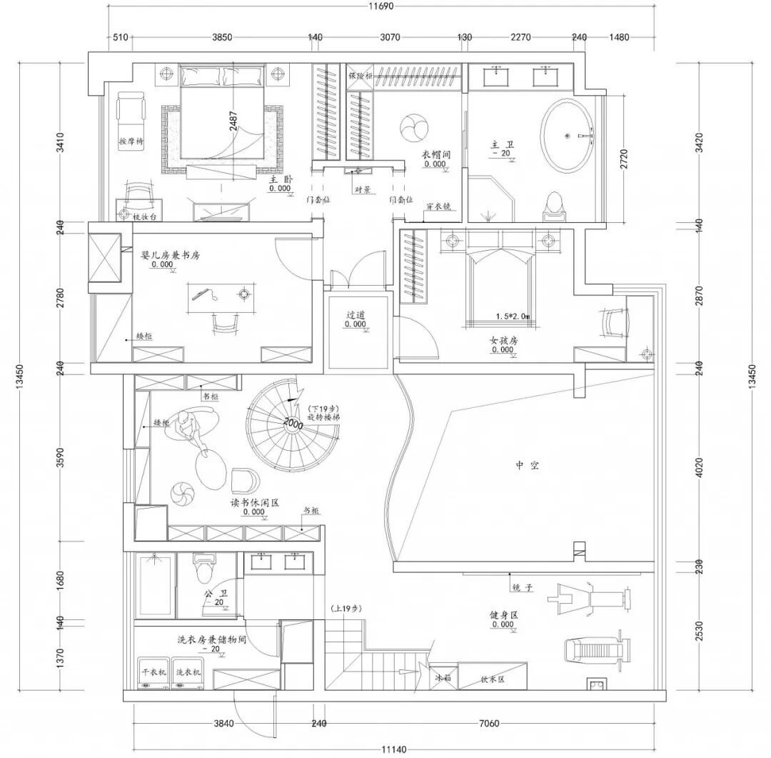
1、主人想入户有玄关和大的鞋帽间,有个大气的弧形楼梯。进门要给人一种大宅的气势。

2、女主人还希望有个大厨房和餐厅,在客厅里看海要有个大气的落地窗。

3、二楼要有个大的主卧套间。

4、三楼要有观海和家庭聚会的场所。





设计说明 


本案为360多平的三层复式,北面是一线海景。男主人是一家知名城市规划设计公司的掌舵人,风格定位主要以现代轻奢。因为主人对时尚前沿的设计潮流一直有所关注,再经过多次的和主人交流沟通,最终设计定位在现代轻奢。



-01-

玄关


入户采取了把右边空间和阳台空间合并,从新分隔了比例做出了大的玄关区、独立鞋帽间、保姆间,把原有大门改成双开的子母门,功能区分的恰到好处,大宅的气势一下就给展露在了眼前。




-02-

客厅


客厅北面看海的阳台原有上下层的窗户分隔很小,非常的影响观景的视野,设计师通过把窗户改成了一个落地的大玻璃窗,只在左右两侧开两扇小窗中间全部采用大的落地玻璃来拓宽看海的视野。


这个改造让客户非常意外,因为客户去看过楼上楼下很多家,都没有过这样的大胆处理。这个意外的惊喜让客户很快的对设计师的设计认可并签约。




-03-

餐厅


把原有的厨房墙体拆除做开放式厨房和原餐厅连成一体,瞬间让空间有强烈的共享感。在原有的餐厅做了个大气的弧形楼梯,再把原客卧与客厅中间的墙体打通改成大的中餐厅。


这个设计非常打动客户,不但解决了餐厅、楼梯空间的问题还满足了主人对大宅空间的相互对话需求。




-04-

楼梯


无论是客厅还是卫生间,黑色的应用都让平凡的空间变得不再平凡,简练硬朗的线条十分霸气,仿佛装置艺术一般。




-05-

公共空间


将空间具化为实用与美学交织相融的生命体,赋予空间雅致、轻奢而舒适的生活氛围。




-06-

主卧


二楼通过打破原有格局,从新规划出了一个大的主卧套间满足了客户的起居、更衣、沐浴、书写,特意的把主卫空间放在了北面,主人可以一边沐浴一边享受自然的海景、一边享受着生活带来的这份惬意。




手机版

小程序

公众号