欢迎来到泉州装一网!| 登录免费注册 触屏版
您的位置:装一网>泉州站>泉州华浔品味装饰>促销活动>千亿山庄世外园 | 411㎡欧式别墅,尽显气质奢感,浪漫

www.zxdyw.com/shop/54723/

地址:福建省 泉州市 丰泽区 丰泽广场二楼(新华都旁)

在线报价在线预约

  • 一居室
  • 二居室
  • 三居室
  • 四居室
  • 复式
  • 别墅
  • 其他

联系我们

华浔品味装饰泉州公司

地  址:福建省 泉州市 丰泽区 丰泽广场二楼(新华都旁)

电  话:0371-58610011

联系人:陈经理

促销活动

千亿山庄世外园 | 411㎡欧式别墅,尽显气质奢感,浪漫

内容提示:泉州千亿山庄世外园联排别墅,实际测量出的建筑面积是411㎡,业主是名工业领域的企业家,喜欢欧式的奢华大气,对风水有着特别的讲究。

图片


Huaxun’s Taste Design

泉州华浔品味装饰

| 做一个工程 | 树一个样板 |

Interior Decoration Design 

/



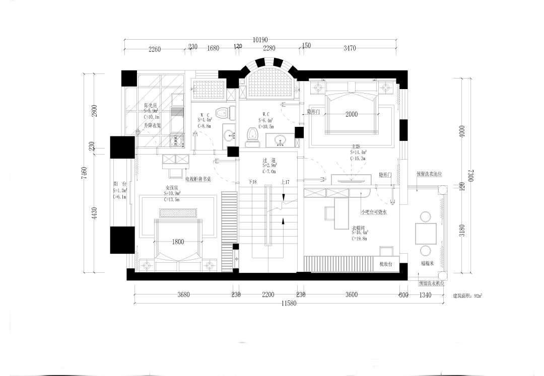
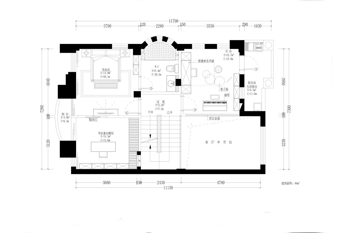
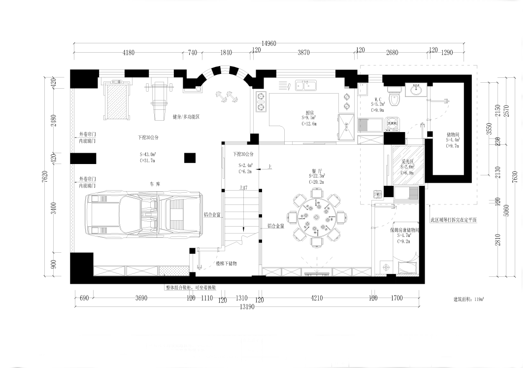
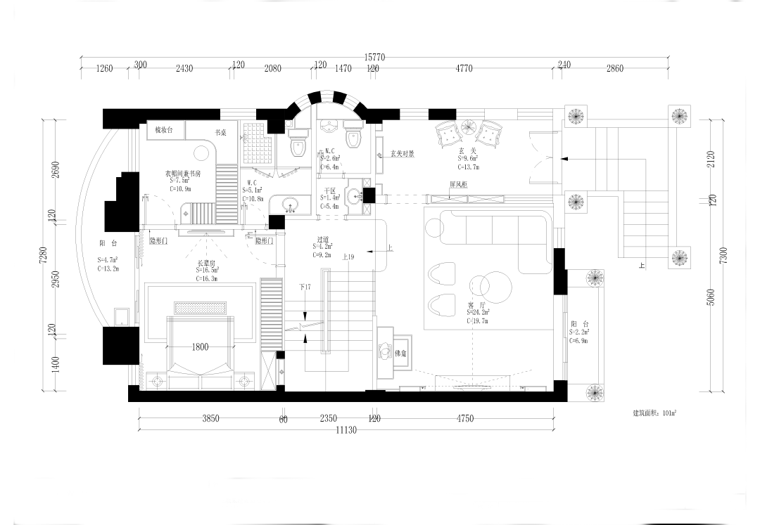
本案设计平面


图片图片图片图片




本案为泉州千亿山庄世外园联排别墅,实际测量出的建筑面积是411㎡,业主是名工业领域的企业家,喜欢欧式的奢华大气,对风水有着特别的讲究。今天按照每层的布局带大家参观(以下图片均为现场拍摄)




01 

一楼空间华屋翠云深,云外晚山千叠 


图片

图片

图片


入户第一眼便是拱形门罗马柱搭配大理石背景的组合,仿佛置身于传统欧洲皇室的宫殿之内,地面的欧式双色拼花线条奢雅大方,两只木象摆件在风水上可以起到吸取旺气加强座方之力量的作用。


图片

图片

图片



米黄色系的奥特曼大理石是经典欧式风格设计最为主要的石材之一,搭配暖色烛台吊灯更显优雅高贵,且不失时尚品味。古典宫廷风沙发以一袭裸色出席,不需要华丽装饰,只辅以精工雕饰的桂冠花纹足以让人沉迷,经久不息的浪漫情怀,是永不过时的品味彰显。


图片

图片

图片

图片

图片




02 

二楼空间万卷古今消永日,一窗昏晓送流年 


图片

图片

图片


主卧是面积近40平方的奢华套间,设计以白色欧式风为基调搭配温馨的浅色软装兼顾贵气与温馨感,电视背景墙两旁的两扇隐形门使卧室在感官上更有整体性。书房是男主人的沉浸式空间,每一个细节都是对优雅的诠释。


图片

图片


女孩房淡粉色的背景墙和软装与欧式的贵族气质竟如此协调,精致的雕花高脚床头柜很适合白欧卧室的轻奢属性,吊顶走一圈PU线丰富屋内层次感。阳光房的入口位于屋内,推开门便是无限风景,宛如现代公主的梦幻城堡。


图片

图片




03 

三楼空间鼓声悠扬天地间,鼓槌敲打不间断 


图片



三层是孩子的专属空间,试问哪个孩子不想拥有一间暗藏于隐形门后的超酷书房?斜对角摆放欧式书桌,满墙的定制柜给孩子尽情展示书籍和手办的空间。另一边是休闲室,平时主要是孩子练习架子鼓等乐器的地方,搭配上闪电图案的地毯少年感十足。


图片

图片

图片


04 

顶楼阁楼无丝竹之乱耳,无案牍之劳形 


图片

图片


顶楼阁楼以实用为主,以原有的天窗为分界线分为左右两个区域,共有近50平方的面积,主要用于当储藏间。纯白色木纹花瓶柱扶手能平衡奥特曼的色彩,打造干净温润的公共区域。


图片




05 

地下负一层且须饮美酒,乘月醉高台 


图片

图片


别墅负一层以“饮食”为主,包含了餐厨和开放式茗茶区以及待定的健身空间,餐厅在保持了轻奢感的同时摈弃了传统欧式较为繁复的造型,整个空间色彩纯粹,餐桌椅和地面纹理取自欧式宫廷雕花的灵感,简笔与繁笔,花纹与曲线在这个区域中和谐共处,互相辉映。


图片

| 别墅专属停车位


项目名称|泉州「千亿山庄世外园」
项目面积|411㎡

设计风格|欧式风格
主创设计|华浔品味装饰泉州总部公司·张宏昊
项目摄影|泉州华浔品味装饰总部·陈旭



手机版

小程序

公众号