欢迎来到杭州装一网!| 登录免费注册 触屏版
您的位置:装一网>杭州站>良工装饰>促销活动>【良工实景案例】风雅乐府90方玻璃婚房设计真的很“大胆”

www.zxdyw.com/shop/58320/

地址:浙江省 杭州市 秋涛北路313号聚落五号创意园

在线报价在线预约

  • 一居室
  • 二居室
  • 三居室
  • 四居室
  • 复式
  • 别墅
  • 其他

联系我们

州良工装饰好不好_杭州良工装饰评价-良工装饰电话

地  址:浙江省 杭州市 秋涛北路313号聚落五号创意园

电  话:0371-58610011

联系人:良工装饰

促销活动

【良工实景案例】风雅乐府90方玻璃婚房设计真的很“大胆”

内容提示:想了解装修设计、详细报价、优质施工,请关注微信公众号:杭州良工装饰 装修咨询电话:0571-56003878 洪女士,微信号:13456727387

『 最 初 的 故 事 

女主说:“小时候就有一个梦想,能住在一个有楼梯的房子里,不需要很大,不管身处哪个角落都能看见他。很庆幸,在我最美的年华我遇到了他,还实现了小时候的梦想。”

她的话语中或许没有华丽的辞藻,流行的土味情话,娓娓道来的都是嫁给爱情,理想生活的样子。



『 设 计 师 说 』

本案屋主是两个年轻人,加上两只宠物狗,做婚房,希望能简单又时尚。房子本身的结构,屋主觉得每个空间都比较小,承重墙太多不好变动,尤其希望客厅不要过于狭小。通过几次沟通,最终从楼梯位置调整,之后将每个空间做了最合理的设计。设计只是第一步,最重要是施工过程中遇到的一些难题。房子本身是二手房,拆旧结束墙体敲完后,发现开发商的的卫生间处理是沉降式结构,清理干净之后发现屋内楼上楼下的老水管破裂,感谢我们优秀有经验的工程施工项目经理林工,细心的将所有的水管更换,也对屋外重新做了修补,全屋的电路都做了重新布置,全免杜绝了后期的水电隐患。木工阶段,最大的问题是楼梯槽钢焊接及电动玻璃幕墙的问题。在这里我也要感谢我的客户,施工中遇到问题及时电话沟通,更加感谢林工,遇到施工问题总是积极想办法去完成,感谢所有人的配合与写作,整体设计与施工才能完成,最终有这样的一个效果呈现出来。      


良  工 | 2018 实景案例

楼  盘 |  风 雅 乐 府

面  积 |  90m² 

风  格 |  北 欧 风 格

设  计 |  郭 望


玄  关

玄关设计非常个性,花色小砖搭配木地板玄关背景及顶面,完全体现屋主的年轻张扬的审美。

客 厅

客厅将原顶打掉,做了通透的玻璃顶,这也是屋主心中一个梦想,做好了之后发现效果很不错,面积不大的客厅空间明显空旷了不少。

蓝色布艺沙发搭配黄色抱枕,墙上选的是屋主最喜欢的独角兽,整体色调以黑白灰为主,软装点缀跳色,营造出温馨舒适的感觉。

电视柜和楼梯采用的原木材质,给整个家注入一种温润感。房子面积不大,能利用到的空间都做了储物,好看的房子也要实用才适合居家。

餐 厅

餐厅很简单,原木色的餐桌椅,搭配屋主最爱的蓝色调墙面,空间不大却正好够用。

 楼  道

透过二楼玻璃看楼下,楼上楼下遥相呼应,而且也将这块空间很好的利用起来。

 主  卧

最爱的蓝色做床背景,原木榻榻米式床,卧室简单清爽没有过多的装饰,让人感觉放松舒适。

卫 生 间

卫生间蓝灰色花砖从地面沿到淋浴房墙面,整体黑白色搭配,空间不大却感觉并不拥挤。

次  卧

次卧设计在一楼,整体布置与主卧有着异曲同工之妙,隔墙去掉实体墙,直接采用玻璃隔墙,解决了客厅没有自然光的问题。

次  卧

设计师将外面阳台包进来做了长条形的厨房,空间不大却将屋主所想要的功能都设计进来了。

设计稿

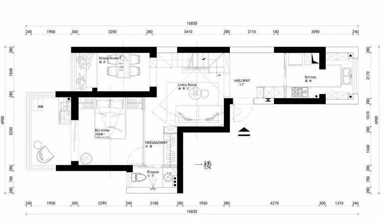
一楼平面布置图

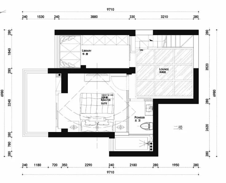
二楼平面布置图


查看更多小区案例

预约设计师:

13456727387(同微信)

手机版

小程序

公众号