欢迎来到杭州装一网!| 登录免费注册 触屏版
您的位置:装一网>杭州站>良工装饰>促销活动>【良工装饰实景案例】陌上花开,这里有个温暖的家 !

www.zxdyw.com/shop/58320/

地址:浙江省 杭州市 秋涛北路313号聚落五号创意园

在线报价在线预约

  • 一居室
  • 二居室
  • 三居室
  • 四居室
  • 复式
  • 别墅
  • 其他

联系我们

州良工装饰好不好_杭州良工装饰评价-良工装饰电话

地  址:浙江省 杭州市 秋涛北路313号聚落五号创意园

电  话:0371-58610011

联系人:良工装饰

促销活动

【良工装饰实景案例】陌上花开,这里有个温暖的家 !

内容提示:想了解装修设计、详细报价、优质施工,请关注微信公众号:杭州良工装饰 装修咨询电话:0571-56003878 洪女士,微信号:13456727387

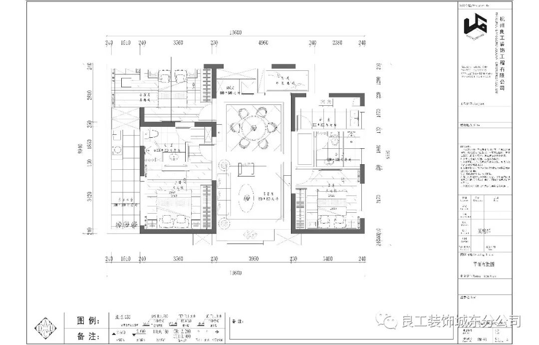
设计师:吴艳群

案例地址:金隅田员外11-1101

户型结构:三室两厅一厨两卫一阳台

装修风格:美式田园

户型面积:130m²

开工日期:2016年9月


回家时,能触及到他内心深处的温度

心动、温柔、贴心与永恒,嘻笑,欢乐,幸福的味道

行走过很多的地方,遇见过很多不一样的朋友

瞬间的驻足、转瞬即逝

只有“家”是回归的地方



平面布置图



  • 进门处用冷色调挂画与白色关柜做搭配,为整个门厅渲染一种素雅,轻奢的氛围。



  • 整个空间墙面以浅奶咖色为底色,辅助以青色等冷色点缀的多色彩搭配,结合现代美式家具,给人以优雅、舒适之感。花艺绿植穿插其中散发着清新的气息,让人从喧嚣的都市里获得片刻的安宁与清静,犹如清风徐来,让业主从入门的那一刻起,就能感受到属于家的温暖。



  • 巧妙搭配及皮质元素,给予色彩最大的礼赞。

    流光溢彩的水晶吊灯尽显奢华,恰如一个浪漫的音符,赋予空间生动轻灵的魅力。




  • 白色、浅奶咖色背景墙的简约柔和与深色茶几的稳重相得益彰,产生恰到好处的舒适度,蓝系适中的色彩调性散发优雅酷感的空间气质。



  • 闲来倚在沙发上,阳光透过窗子肆意的洒落在身上,微风拂过毛绒的抱枕,予你一场温柔的梦。一家人最温馨的时候莫过坐在一起聊聊天,喝喝茶,对着电视的节目笑作一团,跳跃的花艺为整个客厅增加活跃温暖的气氛。


  • 家庭装修做的不仅是表面,我们更想通过设计让你们感受到家庭生活的美好,去做出改变,而这些都是吴老师所擅长的。

    本案不同于传统美式的粗犷,没有太多繁复的修饰与约束,追求简单、轻松的家居生活氛围。



  • 睡得舒适,是对人生的基本尊重。卧室是一个可以完全放松的空间,布局简单实用,以白色调及简洁的饰品点缀,提升空间质地。而木质地板和床又显得稳重,整体风格明亮又不失厚重,天晴的时候,一抹阳光照射进来,一本书,一杯茶,一次小憩,闲情雅意,与这个空间融入得恰到好处。



  • 选用白色定制橱柜与米色台面结合,配合地面艺术瓷砖,丰富空间层次感,也让烹饪空间更为敞亮通透。


岁月静走  时光荏苒

陌上花开  缓缓归矣

老时细数白梅做羹粥

待回首  依旧轻柔

愿岁月静好  时光无恙

手机版

小程序

公众号