欢迎来到济南装一网!| 登录免费注册 触屏版
您的位置:装一网>济南站>济南生活家>促销活动>锦鲤装修记丨按此标准开工,可乘风破浪

0531-86095002 生活家家居

地址:山东省 济南市 历下区 泉城路322号惠尔商厦5层

在线报价在线预约

  • 一居室
  • 二居室
  • 三居室
  • 四居室
  • 复式
  • 别墅
  • 其他

联系我们

济南生活家装饰工程有限公司

地  址:山东省 济南市 历下区 泉城路322号惠尔商厦5层

电  话:0531-86095002

联系人:生活家家居

促销活动

锦鲤装修记丨按此标准开工,可乘风破浪

内容提示:方便、省时、省力是多数人选择装修时的不二法则,于是有了靠置办各式家具得来的“xx天爆改攻略”,也有一站式配齐的“精装房”。但老套、不能灵活选择的装修模式,也让家的使用场景变得局限,想要实现舒适、便利的生活,还得通过改造来实现。


图片




图片

还记得“生活家超级家装锦鲤”吗?

最近,锦鲤业主开工啦!

为了一探究竟

小编决定走进锦鲤小屋的施工现场

以装修小白的身份

边看边学✍

争取日后学以致用


面对装修如此浩大的工程,需要做足哪些准备,对于装修小白又要掌握哪些知识,才能更好地完成自己的家呢?


别急,到装修工地看看就知道了。


*以下施工流程遵照生活家装饰施工、验收标准


1


房屋介绍


房屋的业主是Z先生,也就是超级锦鲤本人。此次待装修的房屋是一套度假屋,主要是空闲时同家人一起过来休憩使用。


因为是度假屋,对于房屋的要求也主要以舒适为主:


·选择日式风格,追求雅静与简约,让身心得到放松;

·开放式厨房搭配吧台,可以让家人的交流变多,也可以作为亲子空间。

·装净水设备,从过滤泥沙的中央净水、软水机到可以直接喝的末端净水机一应俱全。


图片

▲本案效果图


-坐标:福州·贵安新天地贵邸苑

-面积:85m²

-户型:3室2厅1卫

-风格:日式

-设计:生活家装饰

-装修预算:硬装21W


该户型采光很好,针对需求做了如下改动:


·厨房拆掉外侧墙面后,改为开放式,并在一侧增加吧台与洗菜区。借助玄关的玻璃走廊,整个厨房在白天都能满足光照需求。

·北侧房间的飘窗改为榻榻米,增加一组收纳柜,作为多功能房。

·东南侧主卧的阳台墙面拆除,拓宽阳台面积。


图片

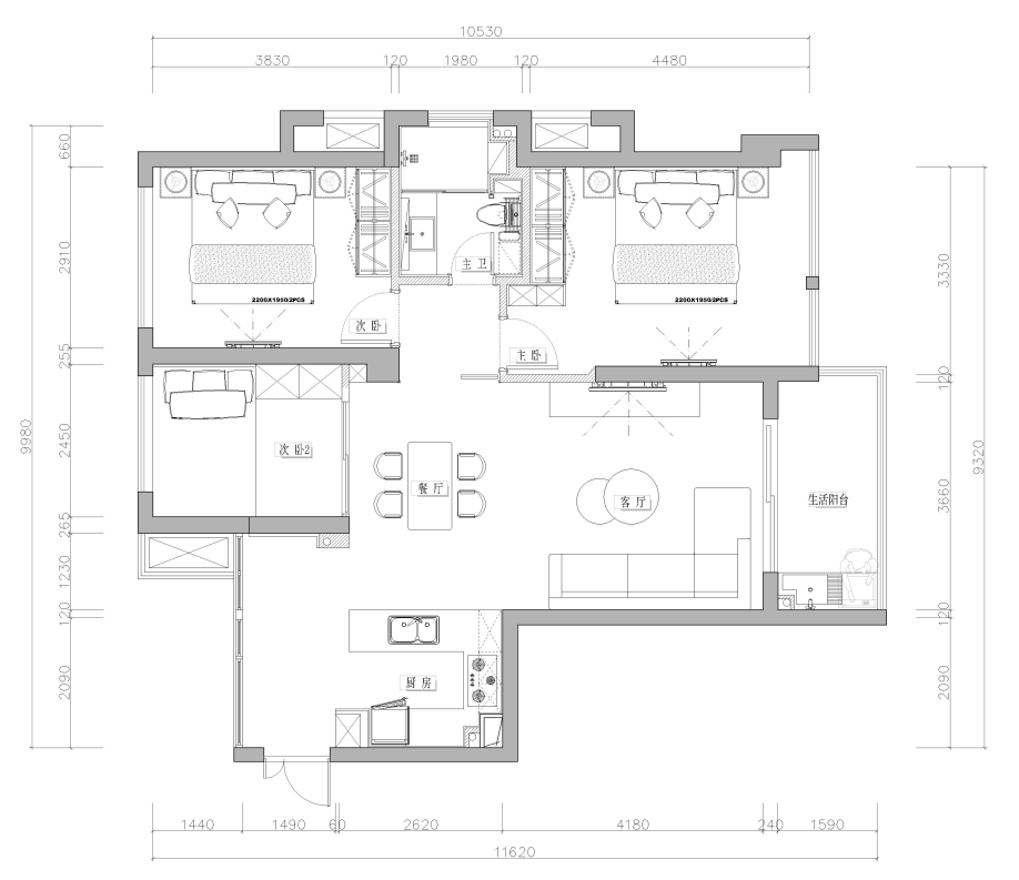
▲平面改造图

图片

▲平面布局图



2


保护工程


开工第一天,该做什么?


大多数人都不太清楚,毕竟没有几个业主愿意每天去到尘土飞扬的工地视察工作。


装修是一个长期的工程,动则数月,对于你的邻居来说,除了装修的噪音之外,每天运输的建渣和各种材料,难免会洒落在公共区域,还会有磕磕碰碰的情况发生,苦不堪言。


所以,开工前做好保护工程很重要。


图片

  电梯过道保护▲

图片

入户门保护▲


楼道保护:电梯门口到入户门口墙面使用高度为1000mm的专用墙砖保护膜;地面使用专用地砖保护膜,每幅搭接处用专用胶带固定。


入户门保护:将保护膜覆盖在入户门内外两面;门把手需要单独用保护膜进行包裹,使用专用胶带固定。


进门就被绊一脚的情况,不少业主一定遇上过,工地材料摆放不规范有一定的安全隐患,也容易让施工现场脏乱差。材料、建渣有序摆放在相应位置,便于使用与处理,避免现场杂乱。


图片

材料堆放标准▲

图片


地固、墙固施工也比较重要。


地固:装修初期水泥地面比较松散,有不少颗粒物,涂刷地固可以有效固化地面,防止跑沙现象,还能避免后期铺设地砖产生空鼓。


墙固:具有优异的渗透性,能充分浸润基材表面,使基层密实,提高光滑界面的附着力。


图片

  墙固▲


图片

地固▲


图片


3


砌墙工程


不少户型都存在一定的瑕疵,或需要根据业主的需求来进行改造,这时就需要拆墙和砌墙。


图片

▲原始结构


砌墙需要提前根据设计图纸,在地面、墙面、顶面弹线确定好位置,以确保砌墙时能准确无误。


图片


砌墙前需将墙砖提前湿水,自然晾干,增加吸附性,并在画线位置吊垂线、挂水平线,以保证砌墙时墙面垂直。


图片


砌墙完成后,要用水泥砂浆将墙体横缝、竖缝灰浆填充密实。


验收:新建墙体垂直度误差须≦5mm


图片


4


抹灰工程


待新砌墙体干燥稳固后,进入抹灰环节,主要分为以下5个步骤——


基层清理:抹灰前,清理基层的灰渍、疏松、油污等,并提前湿水;

挂钢丝网:新砌墙与原墙、砼、柱、梁交界处挂钢丝网,搭接宽度不小于100mm;


图片


抹灰:抹灰厚度10mm-15mm

找平:抹灰后使用长刮尺将抹灰表面刮平;

养护:高温天气需及时给墙面湿水养护


图片图片


验收:新建墙体抹灰平整度误差须≦5mm

5全景放线


全景放线,是根据设计图纸的要求,在现场用墨线将墙体、门洞口、家具等的实际位置画出来,以检查有无冲突或不实用的地方,将问题提前解决。


放线前,应确认放线施工图纸的一致性,根据统一的图纸进行放线。放线主要分为原结构拆除放线、水电点位放线、平面布置放线、阴阳角标准线、隔墙定位放线、墙面造型放线、吊顶放线。


图片

▲水平放线


水平放线的3个基本高度:


插座标准高度线应为300mm

墙面水平标准线高度为1000mm,全屋统一此标准,作为施工过程中的基准控制线

开关标准高度线应为1400mm


图片

▲平面布置放线


平面布置放线:依照平面布置图纸,将家具、电器、洁具在墙地面上按平面、立面两个方向投影放线。


图片

▲吊顶、阴阳角标准线


阴阳角放线:距离阴阳角300mm的两侧位置,放阴阳角标准线。

图片


开工4步要记牢


1

保护工程过道、入户门保护,材料堆放标准,墙固&地固。

2

砌墙工程

·在地面、墙面、顶面弹线确定好位置;

·墙砖提前湿水,自然晾干,增加吸附性;

·吊垂线、挂水平线,以保证砌墙时墙面垂直。

3

抹灰工程:

·清理基层的灰渍、疏松、油污等,并提前湿水;

·新砌墙与原墙、砼、柱、梁交界处挂钢丝网,宽度不小于100mm;

·抹灰厚度10mm-15mm;

·抹灰后使用长刮尺将抹灰表面刮平;

·高温天气需及时给墙面湿水养护。

4


全景放线:

·插座标准高度线应为300mm;

·墙面水平标准线高度为1000mm;

·开关标准高度线应为1400mm;

·距离阴阳角300mm的两侧位置,放阴阳角标准线。



 绿皮书


装修无小事,保护工程、砌墙、抹灰、墙固、地固、放线,看似基础,但却是施工质量的核心基础环节,是整个装饰装修工程的起点,只有做好了才能保障后期项目顺利进行。



图片

手机版

小程序

公众号