欢迎来到济南装一网!| 登录免费注册 触屏版
您的位置:装一网>济南站>济南生活家>促销活动>锦鲤装修记丨不可不看的11条水电施工标准

0531-86095002 生活家家居

地址:山东省 济南市 历下区 泉城路322号惠尔商厦5层

在线报价在线预约

  • 一居室
  • 二居室
  • 三居室
  • 四居室
  • 复式
  • 别墅
  • 其他

联系我们

济南生活家装饰工程有限公司

地  址:山东省 济南市 历下区 泉城路322号惠尔商厦5层

电  话:0531-86095002

联系人:生活家家居

促销活动

锦鲤装修记丨不可不看的11条水电施工标准

内容提示:所谓水电交底,就是在开工前,业主需要跟设计师确认好家里水路电路的走向,插座的数量、高度,下水口位置,以及对原水电布局需要做哪一些改动等等.


图片




图片

「锦鲤装修记」是记录

“超级锦鲤”案例装修实录的系列专题

上期我们说了开工的几个要点——

保护工程、砌墙工程、全景放线

本期我们正式进入水电施工阶段

这个阶段又分为两个部分:

水电交底+施工

什么是水电交底?为什么它十分重要?

我们一起往下看☟



所谓水电交底,就是在开工前,业主需要跟设计师确认好家里水路电路的走向,插座的数量、高度,下水口位置,以及对原水电布局需要做哪一些改动等等。


而设计师需要根据与业主确认好的水电布局在图纸上做标记,每一处的插座位置,水口位置,线路方向都需要标记好,最后施工师傅只要按照现场放样的线路开槽施工就好了。


*以下施工流程遵照生活家装饰施工、验收标准


图片

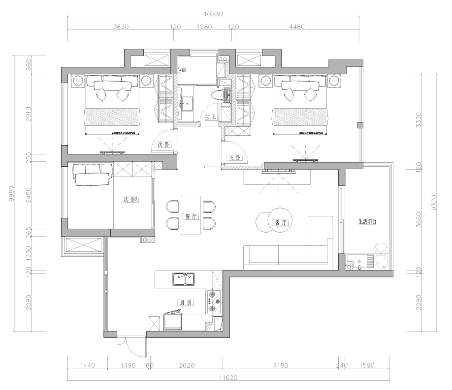
▲平面布局图


Z先生家使用面积85㎡,三室两厅一卫,厨房改成开放式,多功能房飘窗改榻榻米,该房主要作为度假屋使用,采用日式装修风格。



1


水电交底


水电交底主要确定三件事:开关、插座、水路。


在交底前,这几个点要好好考虑清楚:
·家具、家电的尺寸,和摆放位置

·是否要新增点位(水口、插座、网口)

·开关的控制功能(双控or单控)


至于如何保证最终方案的完整性,我们可以选择循序渐进,先把主要的列出来,再按需添加、修改。


Z先生家开关布局:


·玄关:双开双控开关1个,控制玄关与客厅。

·厨房:三开单控开关1个,控制厨房主灯,清洗配菜区顶灯和风扇。

·餐厅:三开双控开关2个,分别控制玄关、客厅、餐厅、筒灯。

·多功能房:单开双控开关2个,控制主灯。

·主卧:双开双控开关2个、单开双控开关1个,控制主灯与氛围灯。

·次卧:单开双控开关2个,控制主灯;单开单控开关1个,控制床头灯。

·走廊:三开双控1个,控制客厅、筒灯、走廊顶灯。
·阳台:单开单控开关1个,控制阳台灯。


为了更直观地体现开关布局,设计师可以在平面布置图上标出相应的点位,与业主一起对照检查,方便修改。


图片

▲开关点位布局图


开关种类的选择以便捷为主,像客厅、玄关、主卧、次卧、筒灯等,最好选用双控开关,避免走回头路。


Z先生家插座布局:


确定插座的位置和高度,其实就是确定家具、家电摆放的位置,点位的高度要合适且不能被挡住。


首先,对家里每一处的功能需求一定要跟设计师交待清楚,因为不同家电、家具所需的插座高度都是不同的,前期沟通明白,最后的施工才能到达预期效果。


图片

▲点位平面布局图


玄关:单联插座1个。

厨房:双联排插座2个,单联插座5个。

餐厅:餐边柜上方有1个。

客厅:沙发两侧各有2个插座,电视柜旁边有1个,电视下有1个四联排插座。

多功能房:书桌上方有1个双联排插座,床尾上方有1个空调挂机插座。

次卧:电视下方有1个双联排插座,右侧还有1个,床两侧分别有1个双联排插座。

主卧:电视下方有1个双联排插座,左侧还有1个,床两侧分别有1个双联排插座。
卫生间:洗漱台上方有1个双联排,浴室柜有2个。

阳台:洗衣机位置有1个插座,另外2个插座位于阳台两端。


Z先生家水路布局:


水路的规划比较简单,只需要搞清哪些地方需要热水就行。Z先生家的热水只涉及了厨房与卫生间,阳台只设置了冷水。这里要说一下,因为是度假房,不常住,所以也没考虑那么多。如果是常住,阳台也应考虑热水,不然冬天洗衣服可就难受了。


图片

▲水路平面布局图


2


水电改造


水电改造的施工顺序是先电后水,坚持电路在上,水路在下的原则。


①电路改造


第一步,根据确定好的灯具、开关、插座、网络光纤接口的位置与数量规划电路铺设路线,对该路线需要开槽的部分进行弹线,确定开槽线路。


各点位高度标准为:

·开关下口离地1300mm-1400mm

·空调插座下口离地1800mm

·厨房插座下口离地1000mm


图片图片

▲弹线


第二步,根据弹线的位置,使用电动切割机和冲击钻进行开槽,槽深度最好为30mm,水平方向的横槽长度不能超过500mm


图片

▲开槽


第三步,根据开槽的位置,铺设PVC电管及线盒,需要改变铺设方向的地方需要对PVC管进行弯折。


电管铺设原则是:厨房、卫生间的强弱电管应走墙面、顶面,不能走地面;客厅、餐厅、卧室、阳台的强弱电应走墙面、地面。


图片图片

▲电管铺设



第四步,电管固定。在潮湿环境中的电管槽需用水泥砂浆进行填补,干燥环境中的电管根据实际情况选择填补材料,可选用水泥砂浆或石膏。


图片图片

▲电管固定


第五步,根据铺设的线管及需要进行换线的部位,进行穿线(强电线及弱电线)。


穿线时用钢丝作为带线,牵引线缆在线管中穿梭,穿线前要根据施工图进行核对,并在导线两端标记记号。


图片图片

▲穿线器穿线


最后,穿线完毕后,进行导线连接,严禁线头裸露,应用绝缘胶带捆绑严密,并安装压线盖,以防安全事故发生。




②水路改造


水路改造采用进口纳米级PPR环保管材,第一步同样需要根据事先确定好的给排水口位置进行弹线、开槽。


第二步,对PPR管进行熔接处理,将管材接口与三通或弯头加热后,将接口端插入三通或弯头内,不能旋转,等待自然冷却。


图片

▲PPR管熔接


第三步,水路铺设。水路铺设优选走墙面、顶面,水路顶面布管每隔40cm固定管卡,保证水管布线横平竖直。布管遵循左热右冷原则,便于后期使用。


图片


若在地面布管,水路要在电路之下,严禁水电同槽。


图片图片


管道铺设完成后,需要做加压测试,压力值在0.6-0.8mpa之间,不出现漏水现象即为合格。


图片


3


水电验收


水电改造完成后,需要对水电路进行验收,验收合格后将用水泥砂浆或石膏对水电路线槽进行填补。


电路验收标准


1

开关底盒高度1300mm-1400mm

2

插座高度完成后离地面300mm

3

空调插座:下口离地1800mm-2200mm

4

厨房插座:下口离地1000mm

5

强弱电开槽间距:150mm


水路验收标准


1

水管铺设横平竖直,左热右冷,上热下冷

2

给水管与强电间距不小于150mm

3

给水管交叉处理:过桥处理

4

5

6


冷热水管间距:不小于150mm

冷热水管出水口间距:150mm,且水平

加压测试:压力值0.6-0.8mpa不泄露




“锦鲤装修记”还在继续,下期,我们不见不散。


图片

手机版

小程序

公众号