欢迎来到济南装一网!| 登录免费注册 触屏版
您的位置:装一网>济南站>济南生活家>促销活动>锦鲤装修记丨瓷砖啪啪掉,楼下天天吵,只需15步解决

0531-86095002 生活家家居

地址:山东省 济南市 历下区 泉城路322号惠尔商厦5层

在线报价在线预约

  • 一居室
  • 二居室
  • 三居室
  • 四居室
  • 复式
  • 别墅
  • 其他

联系我们

济南生活家装饰工程有限公司

地  址:山东省 济南市 历下区 泉城路322号惠尔商厦5层

电  话:0531-86095002

联系人:生活家家居

促销活动

锦鲤装修记丨瓷砖啪啪掉,楼下天天吵,只需15步解决

内容提示:本期是锦鲤装修记的第3期,也是实际工期的第37天,目前已经完成水电施工、吊顶安装、找平、防水施工、瓷砖铺贴。因为楼上住户发生漏水现象,在等待处理,所以工期有所延迟,大约在8月底竣工。


图片




图片

上期我们介绍了水电施工的标准流程——

水电交底、水电改造、水电验收

水电施工结束后

整个工程也完成了一大半

这次,我们将介绍防水施工与瓷砖铺贴

瓷砖怎么铺才不会掉?

防水刷几次,怎么刷?

我们一起往下看☟



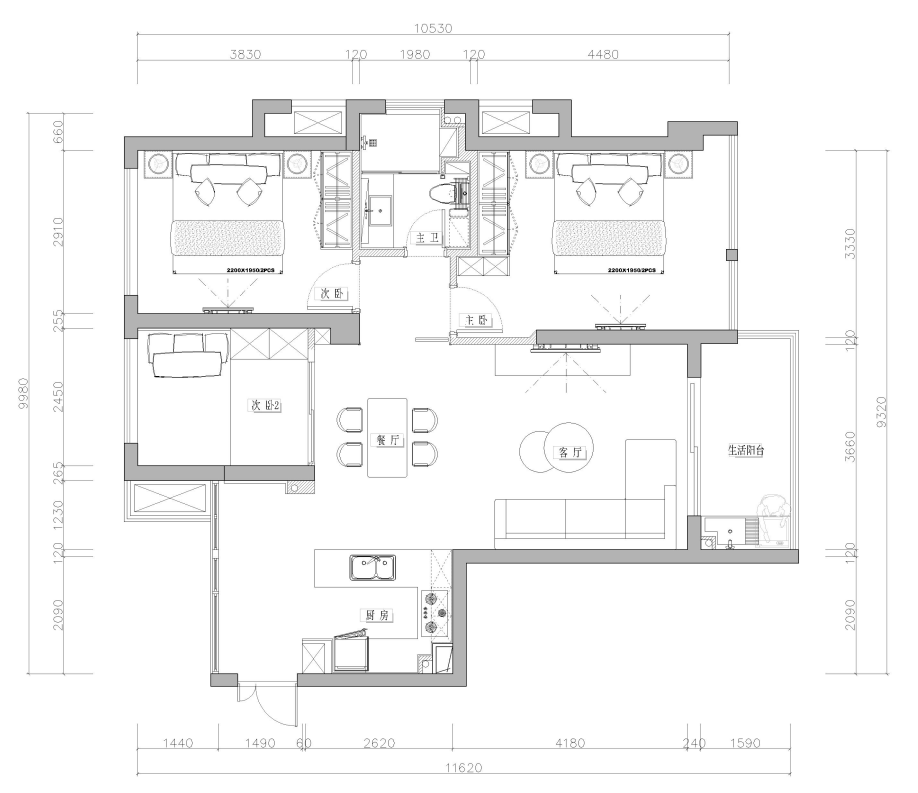
Z先生家使用面积85㎡,三室两厅一卫,厨房改成开放式,多功能房飘窗改榻榻米,该房主要作为度假屋使用,采用日式装修风格。


图片

▲平面布局图


上期我们讲到,在水电验收结束后,需要对开槽部分进行处理,先浇水湿润,再用1:2的水泥砂浆进行填补、抹平。之后需要在水泥砂浆完全干燥后才能进行防水施工。厨卫空间需要在防水施工完成后,才可以进行瓷砖铺贴。


图片


*以下施工流程遵照生活家装饰施工、验收标准



1


防水施工


生活家装饰的防水施工分为6个步骤,分别是:


基层清理;

阴角、管根、地漏加强处理;

墙固滚涂;

十字交叉涂刷;

丙纶加强层;

闭水实验。


基层清理:基层必须保证它牢固、平整,无大于0.3mm的裂缝。无油脂、霜冻、灰层及其他疏松附着物。


图片


阴角、管根、地漏加强处理:阴阳角,管根部均要抹成半径为100mm的小圆角。凡是靠墙的管根处,均要用抹出5%的坡度,防止积水,并且在此处贴一层无纺布,并用防水液料多遍涂抹,做防水加强处理。


图片


接下来就可以进行全面的防水施工了。首先用弹线标出防水标高,一般来说,厨房的防水高度为500mm,卫生间为1800mm。


图片


墙固滚涂:墙固具有优异的渗透性,能充分浸润基材表面,使基层密实,提高光滑界面的附着力,提升防水涂料与基层的粘结力。


十字交叉涂刷:第一遍,从上到下涂刷防水液,第二遍,从左到右涂刷,形成十字交叉。两次涂刷,形成完整的防水层。


图片


丙纶保护:厨房地面丙纶加强层上翻墙面返高≥300mm,有出水口的,高过出水口≥200mm;门套处由地面上翻返高300mm涂刷;冷热水管口也要用丙纶进行加固处理。


图片


卫生间门槛石必须留1-2cm的高度差,用丙纶进行处理,防止门槛石渗水。


图片


闭水实验:施工完48小时后可以进行闭水实验,水深度在3-5cm为最佳。闭水48小时以上水面没有下降、楼下无渗漏为合格。


图片



2


墙砖铺贴


瓷砖掉落的原因有很多,比如高吸水率的瓷砖没有提前浸泡,就容易吸收水泥砂浆的水分,造成砂浆的粘结力不足。还是基层未处理干净,产生空鼓,也容易脱落。


生活家装饰采用薄贴法铺贴,使用的是瓷砖胶,它通过添加各种添加剂,大大地改善了界面的融合度,提高粘结力,同时也解决了水泥砂浆的“高干缩性”,适用于各类瓷砖。


滚涂背胶:用干毛巾擦拭瓷砖背面,清理灰尘;使用长毛滚筒将背胶均匀涂抹在瓷砖背面;将涂刷完成后的瓷砖养护至背胶干燥。


图片


墙面瓷砖胶找平:用齿形刮板将瓷砖胶批刮于墙面基层,梳理成饱满均匀的齿状,瓷砖胶找平厚度为10mm;基层涂布好的瓷砖胶在20分钟内完成贴砖;墙面基层瓷砖胶齿形为竖向纹路。


图片


瓷砖背面涂刷瓷砖胶:用齿形刮板将瓷砖胶批刮于瓷砖背面,梳理程饱满均匀的齿状;基层涂布好的瓷砖胶在20分钟内完成贴砖;瓷砖背面的瓷砖胶齿形为横向纹路;瓷砖表面瓷砖胶应饱满。


铺贴瓷砖:墙面基层和瓷砖背面的瓷砖胶齿形在铺贴时应纵横交错、十字交叉;使用吸盘将瓷砖进行揉压、调平;保证瓷砖背面与墙面基层的瓷砖胶饱满、紧实,避免空鼓;用1m的水平尺进行平整度检查。


瓷砖检查/养护:留缝有助于排走空气,提高贴砖满浆率,减少空鼓和瓷砖挤压翘起;铺砖完成后,须待胶浆完全干固后(约24小时)才可进行下一步的填缝工序;瓷砖胶总厚度不大于15mm;瓷砖之间必须留缝,2-3mm为宜。


图片图片



3


地面找平


生活家装饰地面找平分为水泥砂浆找平和自流平找平,本次案例采用的是水泥砂浆找平,分为6个步骤,分别是:


基层处理;

打点冲筋;

摊铺砂浆;

杠尺刮平;

地面压光;

养护。


基层处理:检查地面有无空鼓、开裂的地方,进行修复,清扫干净基层的灰尘,铲除灰浆皮、灰渣层。


图片


用投线仪校准找平标高,接着用滚筒或水壶对地面进行湿润。


打点冲筋:地面找平厚度≥20mm,先在地面四周打点定找平面,宽度为50mm-60mm,每个房间不少于6-12个,每个点之间间隔≤1500mm,并架设冲筋带。


图片图片


摊铺砂浆:砂浆水灰比为1:2,摊铺前先用在地面扫一遍素浆,之后将砂浆按冲筋带方向均匀摊铺,稍高于冲筋面。


杠尺刮平:用杠尺沿冲筋刮平砂浆面。


地面压光:待砂浆初次凝固后,用找平器搓平压实砂浆,让表面光滑。


图片


养护:地面压光24小时后洒水进行养护,一般7天后便可以上人,如果没有脚印便合格。



4


总结


防水标准


1

基层处理:检查地面有无空鼓、开裂的地方,进行修复,清扫干净基层的灰尘,铲除灰浆皮、灰渣层。

2

防水高度:厨房的防水高度为500mm,卫生间为1800mm。

3

防水次数:第一遍,从上到下涂刷防水液,第二遍,从左到右涂刷,形成十字交叉。两次涂刷,形成完整的防水层

4


丙纶保护:厨房地面丙纶加强层上翻墙面返高≥300mm,有出水口的,高过出水口≥200mm;门套处由地面上翻返高300mm涂刷;冷热水管口也要用丙纶进行加固处理。


卫生间门槛石必须留1-2cm的高度差,用丙纶进行处理,防止门槛石渗水。

5


闭水实验:施工完48小时后可以进行闭水实验,水深度在3-5cm为最佳。闭水48小时以上水面没有下降、楼下无渗漏为合格。

瓷砖薄贴法


1

滚涂背胶:用干毛巾擦拭瓷砖背面,清理灰尘;使用长毛滚筒将背胶均匀涂抹在瓷砖背面;将涂刷完成后的瓷砖养护至背胶干燥。

2

墙面瓷砖胶找平:瓷砖胶找平厚度为10mm;基层涂布好的瓷砖胶在20分钟内完成贴砖;墙面基层瓷砖胶齿形为竖向纹路。

3

铺贴瓷砖:墙面基层和瓷砖背面的瓷砖胶齿形在铺贴时应纵横交错、十字交叉;保证瓷砖背面与墙面基层的瓷砖胶饱满、紧实,避免空鼓。

4


瓷砖检查/养护:留缝有助于排走空气,提高贴砖满浆率,减少空鼓和瓷砖挤压翘起;铺砖完成后,须待胶浆完全干固后(约24小时)才可进行下一步的填缝工序;瓷砖胶总厚度不大于15mm;瓷砖之间必须留缝,2-3mm为宜。

地面找平


1

滚涂背胶:用干毛巾擦拭瓷砖背面,清理灰尘;使用长毛滚筒将背胶均匀涂抹在瓷砖背面;将涂刷完成后的瓷砖养护至背胶干燥。

2

打点冲筋:地面找平厚度≥20mm,每个点宽度为50mm~60mm,每个房间不少于6-12个点,每个点之间间隔≤1500mm。

3

摊铺砂浆:砂浆水灰比为1:2,将砂浆按冲筋带方向均匀摊铺,稍高于冲筋面。

4


杠尺刮平:用杆尺沿冲筋刮平砂浆面。

5


地面压光:待砂浆初次凝固后,用找平器搓平压实砂浆,让表面光滑。

6


养护:地面压光24小时后洒水进行养护,保持7天。


图片



图片

手机版

小程序

公众号