欢迎来到济南装一网!| 登录免费注册 触屏版
您的位置:装一网>济南站>济南生活家>促销活动>想把生活装出仪式感,只需做到这些元素

0531-86095002 生活家家居

地址:山东省 济南市 历下区 泉城路322号惠尔商厦5层

在线报价在线预约

  • 一居室
  • 二居室
  • 三居室
  • 四居室
  • 复式
  • 别墅
  • 其他

联系我们

济南生活家装饰工程有限公司

地  址:山东省 济南市 历下区 泉城路322号惠尔商厦5层

电  话:0531-86095002

联系人:生活家家居

促销活动

想把生活装出仪式感,只需做到这些元素

内容提示:那些不解风情的人眼中的“虚头八脑”,才是让日复一日不再枯燥的原因。以为这是矫情的人不懂的是,每天喝水要用好看的杯子,床单要有可爱的卷边的你,每一天都在闪闪发亮。

想把生活装出仪式感,只需做到这些元素

图片

电影《蒂凡尼的早餐》中,霍莉因为深爱蒂凡尼,每个清晨都会穿上漂亮的礼服来到这家奢侈品店的橱窗前,一边吃早餐,一边心满意足地看着玻璃后的珠宝。


用最精心打扮的姿态去见心爱之物,其中由仪式感带来的小幸福,内心精致的人都有感触。


我们今天的屋主,便是两个如此细腻之人。


图片


这对小夫妻是在大学便相识的同学,毕业后在同一座城市奋斗,如今不仅购置了新房,还在新房装修竣工之际迎来了可爱的宝宝。


女主人是一名绘画老师,也是一位新晋妈咪,宝宝刚满2个月,虽然已荣登妈妈殿堂,但依然不改萌噗噗的粉嫩少女心。


不仅对自己的穿衣打扮讲究非常,还画得一手好画,是个内外兼修的才女。


男主人是一位热爱健身、崇尚功夫的热血小伙儿,即使工作再忙,也对家里琐事细心无二。


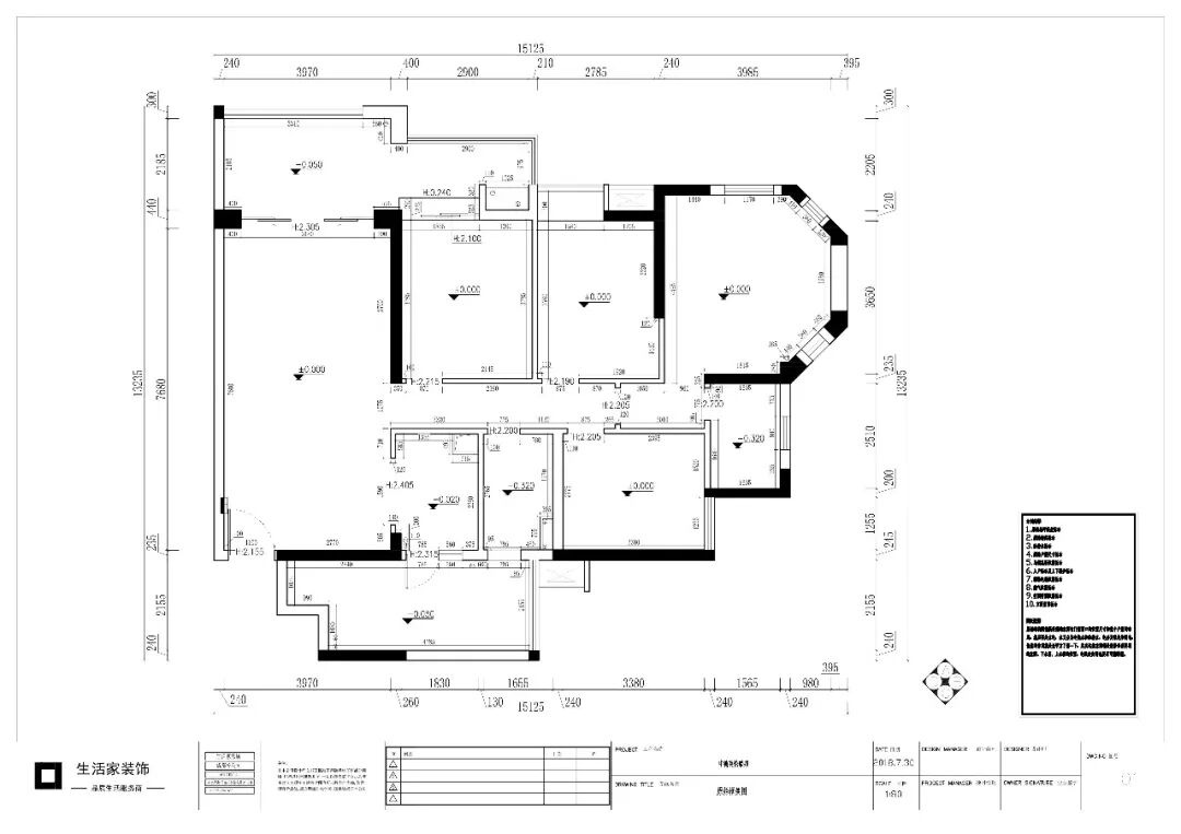
房屋概况


户型:四室两厅+大阳台

装修风格:北欧混搭

设计面积(建面):150平方米


设计师


杨涌

从业经验:8年

擅长风格:美式 新中式 北欧 现代简约

设计理念:不变的是它永远在变。


设计亮点


应女主角的要求,本案将设计要点定位于 “不想千篇一律,想让这个房子有艺术的气息,也有生活的味道。”



艺术是云朵,生活是烟火。要想把两者合二为一,需要为这套房子造出“仪式感”。


设计师杨涌说,当他拿到这套房屋的户型图时,脑子里首先迸发的思路是:对房子各个区域进行改造和重新规划,是拿下“仪式感”的第一步。


在房子变美之前,它需要经历这样赤裸裸的改造过程……



改造前


图片


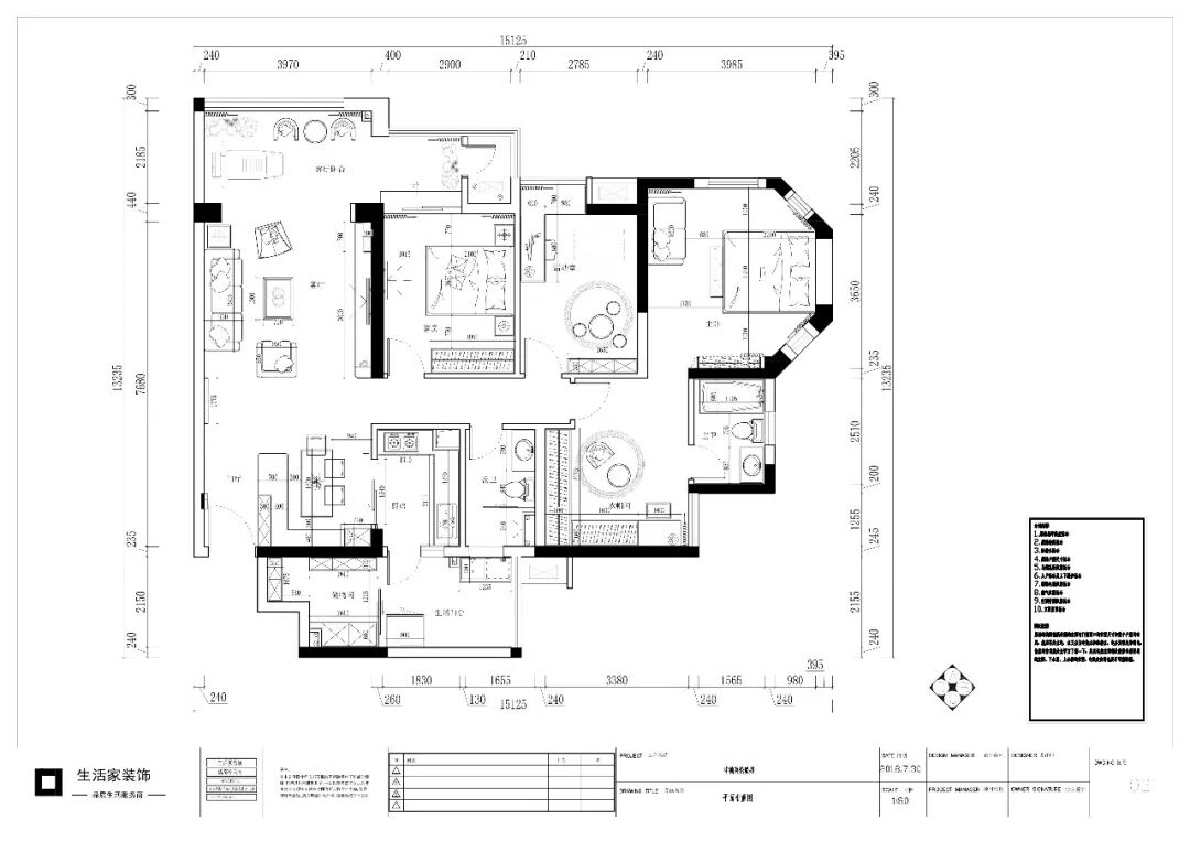
改造后


图片


- 私密区改造 -

房子本身是套四,但平时只有屋主两人居住,空间利用过于浪费。


图片


设计师将较大的主卧和次卧保留,将另外两间次卧改造成了“书房”和“衣帽间”。


书房用于阅读、办公、放置健身器材。


图片图片


衣帽间用于归置衣物、收纳杂物、放置梳妆台。


图片


这样一来,既满足了男主人的健身爱好和女主人大量衣物的收纳,同时也将有限的房间数量发挥出更大的利用空间,极大提升了空间使用率。


- 公共区改造 -

这套房屋的户型很周正,但唯一的缺憾在于玄关——没有放置鞋柜的空间。


如果做成顶天立地式的鞋柜,势必占据餐厅的空间,使就餐区域变得狭小拥挤。可是如不设立,进门后的鞋子无法归放,显得门口杂乱无章。


在这里,设计师巧妙地将鞋柜、收纳箱和餐厅桌椅合体。


图片


柜体靠门侧为鞋柜,靠餐厅则是餐椅。

餐椅下方有收纳空间,可容纳各类生活杂物,上面铺上软垫,美观又舒适。


图片

图片


这样既保全了餐厅的就餐区域,将玄关和餐厅进行功能隔断,又完成了收纳功能的实现,甚至增加收纳面积,可谓两全其美。


区域合理化之后,提升“仪式感”最重要的法门,就是软装了。


仪式感之——我是童话里的小公举

关键词:窗帘、有色漆

对于房屋的整体风格,是女主人说了算的。不折不扣的小女生主义,自然是各种粉色系控。


图片


主卧,用浅淡的樱花粉铺墙,辅以梦幻的薄荷绿窗帘。


图片


搭配女主人亲自选购的“莎士比亚”款双人床,公主风的主卧就这样诞生了。


图片


要问衣柜在哪里?傻瓜,在衣帽间里呀~


仪式感之——小清新的执着追求

关键词:挂画

掌握话语权的女主人是位森女系小姐姐,一手好画艺自然不会被浪费掉。


图片


漂亮的挂画是提升家居调性的一大神器。


图片


设计师将女主人的日常绘作精表成框,挂置在走廊、客厅、卧室以及玄关等处,让画中弥漫的爱意包裹全屋。


图片

图片


关键词:文化石

客厅背景墙使用局部文化石贴墙,增加墙面立体感,使房屋艺术气息更加浓厚,逼格颜值面面俱到。


图片


仪式感之——仙女儿的家里一定要bling bling的

关键词:灯

增加房屋温馨感和家居生活舒适感,灯具造型的选择和灯光的运用,起着至关重要的作用。


客餐厅主灯,选用同系列的暖色系树枝状气泡玻璃灯,艺术气息浓厚,占据整个公共区域的灯源采光,明亮有型。


图片

图片


玄关文化石墙上的纸鹤灯,不论是开灯或关灯,都是一处亮眼的风景。


图片


衣帽间的羽毛灯,把女主人温柔爱美的空间衬托得柔软私密,羽毛轻盈但厚重的质感更能让女主人感到恰合心意的公主范儿。

仪式感之——这房子得要百看不厌

关键词:色彩运用

在房屋摆件的选择上,设计在局部运用明度和饱和度高的小元素,散落在房屋各处,使目之所及凹凸有致,有棱有角。


图片


鲜亮的花朵。


图片


彩色的挂件。


图片


五颜六色的摆件。


图片


明黄色的挂钟。


图片


橘色的桌垫。


图片

些许的亮色点缀,即可提升整个房间视觉的层次质感。


图片


当一套房子承载了人们对未来的想象与期待,它便不再仅是一个钢筋水泥的框架,融为人们生命力一部分的它,被叫做“家”。


那些能让自己的生活日日如新的人,一定会告诉你,他们在描绘未来的时候,其中一定有某个段落关乎“家”的模样。


精致的生活是需要雕琢的,一如一个更懂你的家,需要的,是一项好设计。


图片

手机版

小程序

公众号