欢迎来到济南装一网!| 登录免费注册 触屏版
您的位置:装一网>济南站>济南生活家>促销活动>案例 | 你需要来点中式洗洗眼睛啦

0531-86095002 生活家家居

地址:山东省 济南市 历下区 泉城路322号惠尔商厦5层

在线报价在线预约

  • 一居室
  • 二居室
  • 三居室
  • 四居室
  • 复式
  • 别墅
  • 其他

联系我们

济南生活家装饰工程有限公司

地  址:山东省 济南市 历下区 泉城路322号惠尔商厦5层

电  话:0531-86095002

联系人:生活家家居

促销活动

案例 | 你需要来点中式洗洗眼睛啦

内容提示:冷淡风的清清爽爽让人乐得安静,时不时出现的繁欧或中式正好成了精致的点心,不光能洗眼,还能让人学会赏析独特。


图片


那就一起来看看今日份甜点:中式。


图片


这是一个211㎡跃层的户型,有上下两层楼面,日常使用的空间面积比较大,布局也很紧凑。各种功能性空间应有尽有,跃层还有较大的采光面,透风好,功能性也强。

   

居住其间的,是一个三口之家。按照客户的要求,整体风格追求端庄、高雅、对称。家具的选择上也是以古典木质为主。门、窗套均为实木线条。各种传统中式元素的使用,组合出这个华丽也温馨,大方又温暖的家。


案例档案


装修造价:34万

案例风格:新中式

装修面积:211平方米



图片

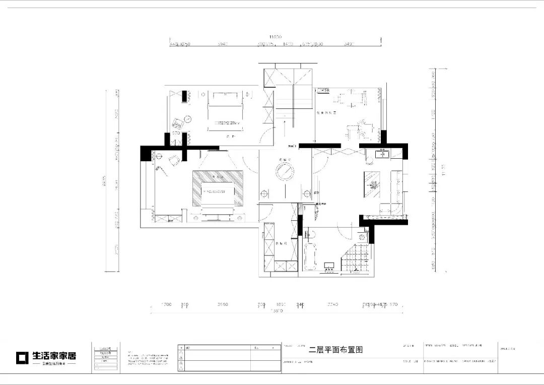
▲二层平面图


客厅


客厅以深色家具为主,整体色调朴素稳重,背景墙以一幅水墨山水画卷铺开,底蕴感油然而生。深色木质家具是中式风的要点,而空间中的特别之处,则应属背景墙上两侧的质朴窗框设计。  


图片


餐厅


餐厅里这面青花瓷的背景墙是平衡整体氛围的妙笔,而且还点缀出了一些神秘的历史感。明亮的光源则使整体空间更加宽阔亮丽,桌上的刺绣桌旗更让这一方空间生动了许多。



图片


主卧


中国传统家具讲究一个“润”,在这个案例的整体韵味上,设计师就非常注重这一点。比如在主人的休憩空间,主要采用了暖色系。淡淡的米色硬包电视背景墙,加上金属线条和胡桃木色的搭配,温润从图片里就已经浸透了出来。


金属质感灯饰是烘托高级感的要点。深色木地板以及胡桃木家具等材质结合在一起,在保留房间的舒适之余还增添了一丝厚重宁静的质感。


图片


次卧


二楼是儿子的卧室,采用了明亮的绿色配以淡淡的米色硬包背景墙,打造成书架形式,实用又不失美感,搭配金属质感装饰画,让高级感升了一个level。深色木地板以及铁艺家具等材质的结合,则使房间有了恰到好处的活泛。


图片


起居室


二楼的起居室,背景墙采用了“圆”形的金属山水挂画。整个空间中圆与方的层叠,讲述的应是“天收中,地作围,人是天地人”的完满释义,由此可见,主人对中式的喜爱,并非空穴来风,而是深植于价值上的契合。


图片

图片


主人对中国传统文化的感悟无处不散落在此次案例的各个角落,而客户的细腻情怀,往往是使一位优秀设计师做出精致作品的又一个关键。   


图片


由内而外,由浅入深,将传统中国文化精髓一一展现,又把现代时尚元素紧密结合到其中,却丝毫没有流露出生硬唐突之感,这样的融洽,展现出的是设计师糅合的功力,更是中国传统文化圆润和谐之美。

////////// 

手机版

小程序

公众号