欢迎来到济南装一网!| 登录免费注册 触屏版
您的位置:装一网>济南站>济南生活家>促销活动>你多舍得抛弃,就多容易拥有

0531-86095002 生活家家居

地址:山东省 济南市 历下区 泉城路322号惠尔商厦5层

在线报价在线预约

  • 一居室
  • 二居室
  • 三居室
  • 四居室
  • 复式
  • 别墅
  • 其他

联系我们

济南生活家装饰工程有限公司

地  址:山东省 济南市 历下区 泉城路322号惠尔商厦5层

电  话:0531-86095002

联系人:生活家家居

促销活动

你多舍得抛弃,就多容易拥有

内容提示:很多时候,你有多舍得,便暗含着你有多大的能力去拥有。我们不断给周遭做减法,才能为真正珍贵的事和物腾出空间。这个动作,心里需要,生活需要,家里同样需要。

图片


那些被日用杂物填得满满当当的家,就算拾掇得再整洁,似乎也再难装进新事物。而那些目之所及的敞亮,却仿佛能让空气都变得轻快。


为家未来的生长预留空间,将这种对生活的智慧在家装设计之初便体现出来,个人觉得是设计师,也是居住者的聪明之处。


懂生活的人会知道,应该为生活留白。今天的案例,便是这样一个聪慧之所。


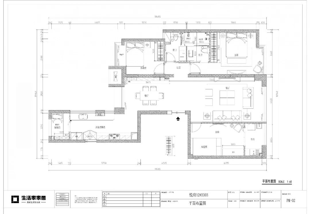
案例档案


案例风格:现代简约

装修面积:110平方米(建面)

户型:3室2厅2卫


图片


黑白灰在现代简约风里永远那么受欢迎。本案中,设计师则将灰调子的魅力在居家场景中发挥到了极致。


图片


客厅

亚光感是简约风最好的搭档。不高调,不张扬,尤其是这一款仿古砖的微肌理,尤其优雅。


图片

图片


黑白灰主题中,些许鲜亮色是必不可少的。


图片

图片


餐厅

冷淡的墙面容易感觉冰冷,除了暖光源的加入,餐厅的餐边柜也以原木与烤漆面搭配的方式,为灰色的冷调增添了温度。


图片


卧室

黑白灰如何在卧室搭配,这个案例的做法很值得参考。不同灰度的跳跃性出现是要点。深灰的硬包背景、同等灰度的窗帘、浅灰色床、纯白纱帘,再加上无拉手的时尚衣柜和床头点缀的金属色,不同色度的出现间隔得刚刚好,不突兀,不过淡。


图片


厨房

厨房里,白色柜门和灰色台面将眼下盛行的轻食主义体现得很到位,深灰仿古砖墙面的再次出现则将整个家中的主题一直统一到了这个角落。


图片


卫生间

卫生间里,镜前灯是必不可少的,但往往纠结之处在于当你盯着镜子的时候,眼晴常会被镜前灯照得不舒服。这次设计师则将灯放在了柜子的背面,让光源刚好能柔和地出现,又不至于在照镜子时看不清脸上的细节。


图片


利落,放松,随时游刃有余,这是极简生活的魅力,它让我们在面对偶尔出现的急促时依然保留有足够张弛的能力。而这种张弛感,常常被忙碌的你我忽视,但一个干净简洁的家,可以提醒你:你其实能够慢下来的。 


///////

手机版

小程序

公众号