欢迎来到济南装一网!| 登录免费注册 触屏版
您的位置:装一网>济南站>济南生活家>促销活动>140m²三室,没有玄关的房子怎么办

0531-86095002 生活家家居

地址:山东省 济南市 历下区 泉城路322号惠尔商厦5层

在线报价在线预约

  • 一居室
  • 二居室
  • 三居室
  • 四居室
  • 复式
  • 别墅
  • 其他

联系我们

济南生活家装饰工程有限公司

地  址:山东省 济南市 历下区 泉城路322号惠尔商厦5层

电  话:0531-86095002

联系人:生活家家居

促销活动

140m²三室,没有玄关的房子怎么办

内容提示:本案屋主喜欢灰白色调的现代简约风格,简单线条勾勒足矣。对于设计的要求,就是有尽可能多的储物柜和书柜,将空间利用最大化。因为随着生活的变化,要为未来的各种可能性预留足够的储物空间。


图片


设计师为屋主设计了好几个超大储物柜,甚至可以说,没有超大储物柜,就没有玄关。我们一起来看看吧!


房屋布局

— House layout


【面积】:140m²

【户型】:3室2厅2卫

【风格】:现代简约

【设计】:生活家装饰

【装修预算】:30W



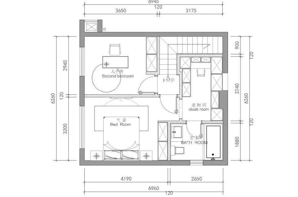
户型改造

— House modification


图片

△ 一楼户型图


图片

△ 二楼户型图


图片




图片


图片△ 玄关改造户型图(一排通天柜隔开了玄关和厨房)
图片图片


原格局的入户区域与现厨房区之间没有隔断,也就是说没有单独的玄关空间。于是设计师安设了一排玄关柜,增加储物空间的同时,也隔出了独立的玄关,更使得客厅、餐厅、厨房三个空间的格局清晰许多。





图片


图片图片


客厅以现代感为基调,使用了无主灯的设计,采用灰白色调的墙面,硬朗又简单。为了满足屋主想要更多储物空间的需求,设计师将电视墙直接做成了一面超大柜子,储物功能升级。透过透明的玻璃柜门看见书籍整齐地摆放在柜内,方便日常看的时候拿取,美观又实用。


图片


为了搭配电视背景墙,天花板上还做了黑色线灯的处理,看起来整个空间不会呆板,让空间的层次感和质感油然而生。


电视柜的上方墙内,藏着一个电动投影幕布,想看电影的时候就徐徐放下幕布,幸福感猛增。




图片


图片图片


餐厅舍弃了一般的餐边柜形式,依旧采用了一面顶天立地的柜子,既增大了储存空间也代替了餐边柜的功能,与屋主喜欢的简约轻奢的质感契合。


图片


设计师在楼梯踏步的位置增加了一些感应灯,让屋主及家人在上下楼时,不会因为光线的原因看不清,避免意外,确保居家安全性,也为楼梯增加了美感。




图片


图片


在这个家中,设计师可谓是把安设储物柜做到了极致。步入卧室,映入眼帘的又是一个高大的柜体。由于家中已经有衣帽间,所以卧室的柜子并不是作为衣柜来使用,而是展示和收纳小物件。


图片


玻璃的柜门搭配灯光带,让整个柜体显得通透大气,即使柜门高大也不会逼仄。


图片


图片

手机版

小程序

公众号