欢迎来到济南装一网!| 登录免费注册 触屏版
您的位置:装一网>济南站>济南生活家>促销活动>精品案例丨典雅140㎡,复古的时尚之家

0531-86095002 生活家家居

地址:山东省 济南市 历下区 泉城路322号惠尔商厦5层

在线报价在线预约

  • 一居室
  • 二居室
  • 三居室
  • 四居室
  • 复式
  • 别墅
  • 其他

联系我们

济南生活家装饰工程有限公司

地  址:山东省 济南市 历下区 泉城路322号惠尔商厦5层

电  话:0531-86095002

联系人:生活家家居

促销活动

精品案例丨典雅140㎡,复古的时尚之家

内容提示:本案例在空间布局上动静区的划分十分明显,整个空间点缀的元素很多,但都不累赘,空间的联通性也很好,使生活空间都紧密地联系在一起。大理石、真皮、烫金元素,看似old的选择背后,却透露着对细节的苛求。



图片


图片


-面积:140m²(两层)

-户型:4室2厅2卫

-风格:现代简约

-设计:生活家家居


图片

△本案平面图-一楼

图片

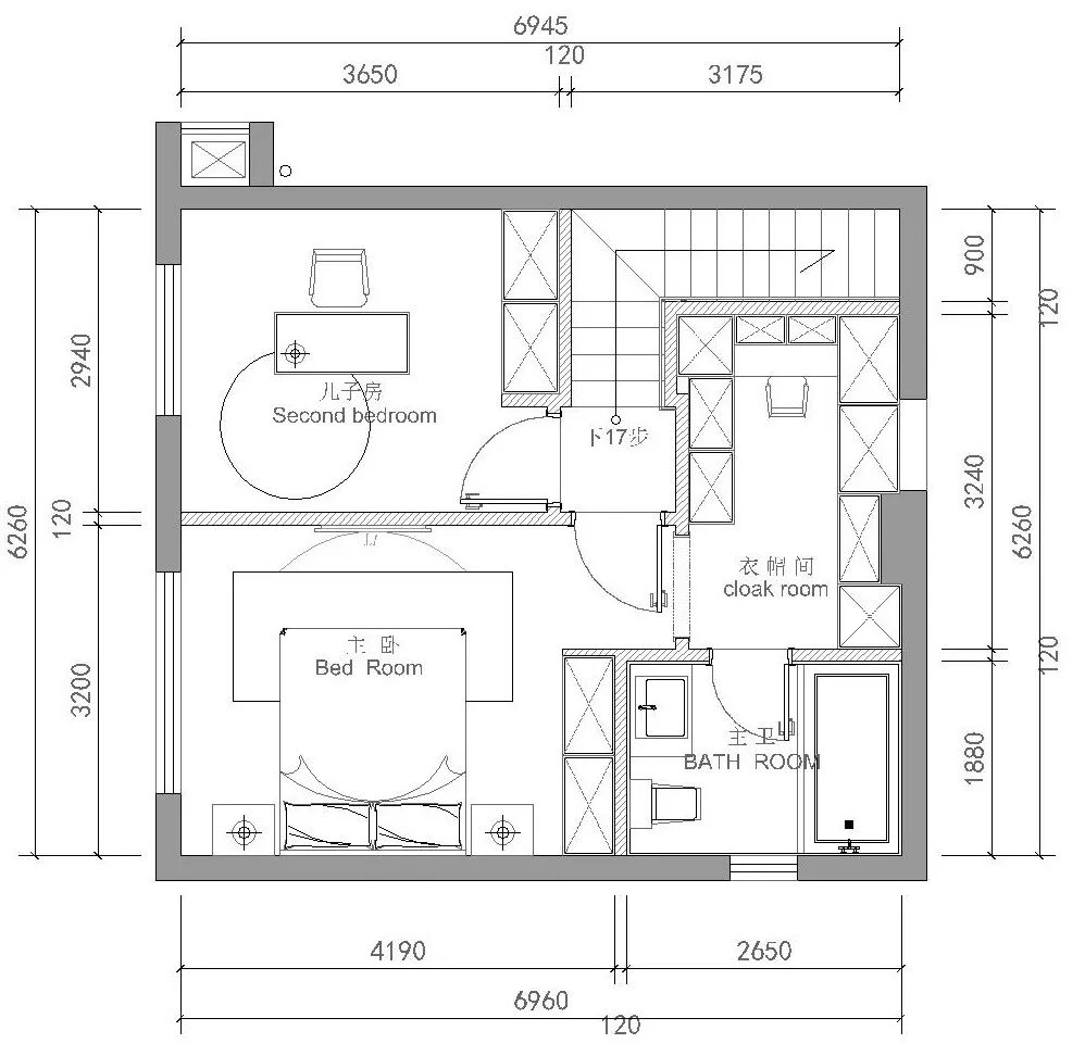
△本案平面图-二楼


图片


入户右侧嵌入了一组通天柜,并且采用了挂、座、放三种设计,让其功能性增强。延伸的通天柜大大地增加了玄关的长度,让客餐厅有了一个很好的过渡。


图片图片图片


图片


客厅以灰白色调为主,背景墙采用了一面柜子来处理,既美观又满足了业主对书柜和收纳柜的需求。


图片


客厅的茶几采用了拼接的设计,圆形大理石边几与茶几形成高低错落,让空间不那么乏味,金色的柜面看似高调,但搭配一旁的橘色椅子,互相平衡了突兀感。


图片图片


图片


餐厅与客厅之间通过一组装饰柜进行过渡,同时也联通了两个空间,增加了社交属性。餐柜一直延伸到窗边,收纳能力MAX。


图片图片


大理石桌面搭配穿插的金线,不用餐的时候也极具欣赏性。


图片

厨房就在餐厅一侧,玻璃门的设计增加了厨房的通透性,也让上菜变得十分方便。


图片

图片


主卧色调以蓝色为主,与灰白色相比,显得更温馨。衣柜左右分区,左侧存放换季衣物,右侧存放当季衣物,玻璃门的设计一目了然,衣橱灯让夜间存取衣物十分方便。


图片图片


衣帽间在进门左侧,与主卫相邻,方便换洗。同时还配备了梳妆桌,满足女主人的起居需求。


图片

生活家家居案例《夜幕》, 以“简约”为核心的整屋设计,充分体现了生活之美即美学。


图片


图片


图片

手机版

小程序

公众号